远山


作品说明
- 项目类型:休闲娱乐
- 项目地点:重庆市
- 建筑面积:334.0000㎡
- 项目造价:600000.0000万元
- 主案设计师: 姚思萌
- 竣工时间:2019-10-01
- 设计机构:重庆摩町设计
-
项目定位:本案为经营浴足、SPA精油按摩的美业项目,设计以灯光、香气、音乐为载体,从视觉、嗅觉、听觉三方面共同打造一个让人身心放松的静谧空间,并通过“水墨”艺术装置和模仿太阳光照在自然界中的感觉,把自然、松弛的空间气质与中国传统文化相结合,通过天棚、灯光、大地色系涂料等,打造具有中式韵味及文化的空间,强调“天、地、人”的融合,突出品牌本土化特点,让顾客纵然置身喧闹的商场内,也能享受片刻舒缓与宁静。
-
空间意境:在传统足浴空间的舒适感、自然感的基础上,增加了一种暗调风格的探索性与沉浸式感,通过模仿天光撒落的吊顶,大地色系涂料及仿古地砖,可调节灯光等设计元素,引领顾客从开阔的大厅一步步进入房间,并在过程中产生不同的心理变化及感受。
-
空间布局:通过走廊通道的步入设计给予客户引导。搭配可调节线条灯模拟远山轮廓,深灰色墙面模糊室内外边界感,凸显灯光的引导,指引顾客步入房间。途中聆听佛音,细嗅淡淡檀香,灯光暗一层,心便静一分。
-
设计选材:质感涂料,仿古地砖,智能灯光等,均选择环保无污染材料。
-
用户体验:具有沉浸式体验感
本案通过“水墨”艺术装置和模仿太阳光照在自然界中的感觉,把自然、松弛的空间气质与中国传统文化相结合,通过天棚、灯光、大地色系涂料等,打造具有中式韵味及文化的空间,强调“天、地、人”的融合,突出品牌本土化特点。
大型线形装置艺术抽象地展现远山景,柔软尼龙线的运用使山景多了一份悠远的柔和感,与整体空间氛围相辅。
天棚处模仿自然光从格栅散落,墙面配合运用具有大地质感肌理的深色质感涂料,给予顾客极具自然感的第一印象。
- 走廊 可调节线条灯模拟远山轮廓,深灰色墙面模糊室内外边界感,凸显灯光的引导,指引顾客步入房间。
途中聆听佛音,细嗅淡淡檀香,灯光暗一层,心便静一分。
走廊
走廊
- 按摩室 该灯光可根据户外天气调节室内走廊亮度,使空间更贴近自然。
- 按摩室 对于有限的面积,设计师运用均匀且干净的灯光包裹整个空间,模糊墙体边界,从视觉上开阔空间,去除紧凑空间的压迫感,并让人不自觉得沉静下来。此外,房内所有灯光均为2700K-7000K可调节智能灯光,可随天气变化调节相应光感及色温。
按摩室
原始结构图
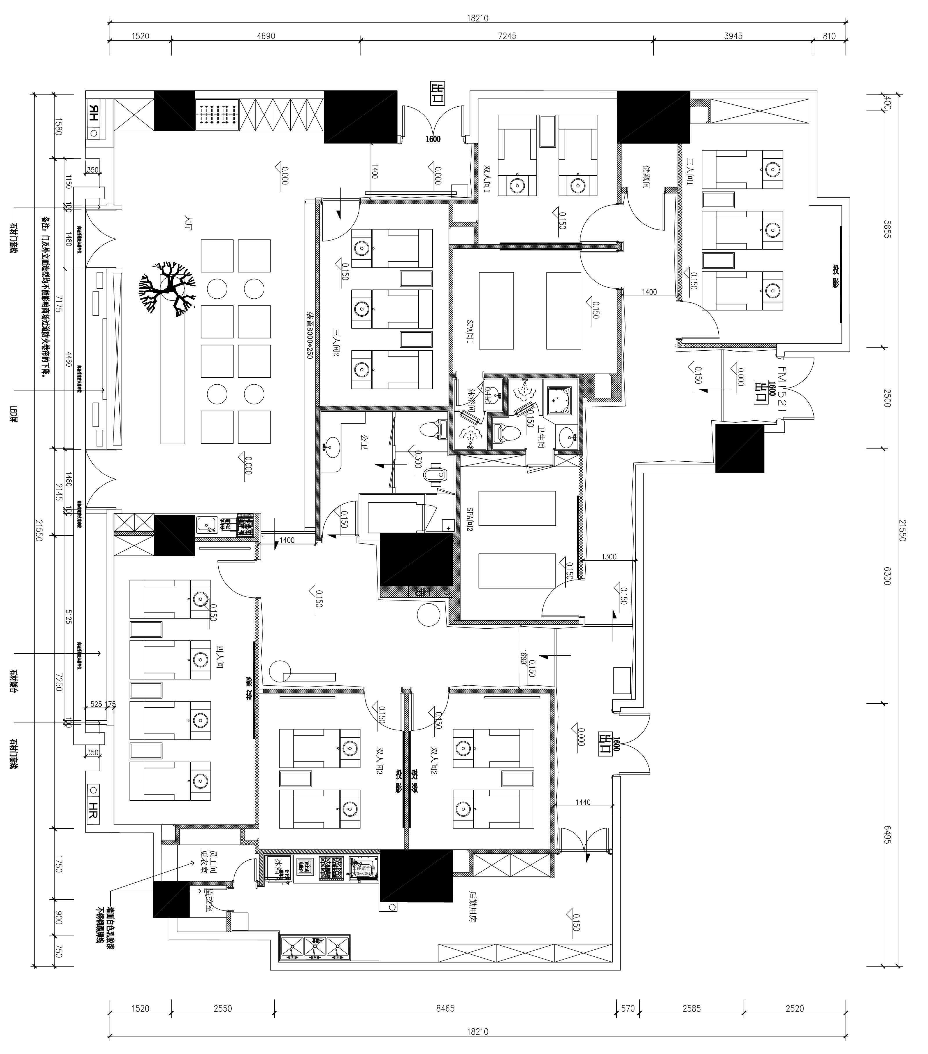
平面布置图

