后浪·家宅X定义



作品说明
- 项目类型:住宅公寓
- 项目地点:重庆市
- 建筑面积:200.0000㎡
- 项目造价:2000000.0000万元
- 主案设计师: 姚思萌
- 竣工时间:2020-02-01
- 设计机构:重庆摩町设计
-
项目定位:我们的灵感来自业主自身独特的个性,对生活的热情,以及对自由前卫理念的追求。如今,房子不仅是居住的地方,更是许多个人表达自我个性的载体,而本案业主正是一对极具个性的90后时尚潮人夫妻。业主二人从事营销公关工作,喜爱一切美与时尚的物品。在他们身上,我们看到了当今中国年轻人勇于打破传统的精神追求--不拘泥于固有传统,努力把生活过成自己喜爱的样子。让住宅符合业主气质,展现他们无所畏惧、勇于追求的生活状态,是我们设计的初衷。因此,我们打破了传统住宅所喜爱的多房式设计,打造了一个200㎡的一室一厅的住宅,赋予住宅新定义,让家不仅仅是居住,更能展现自我个性,给空间更多想象。
-
空间意境:通过现代简约的硬装造型,搭配复古前卫的软装设计,体现设计的融合性与碰撞感。
-
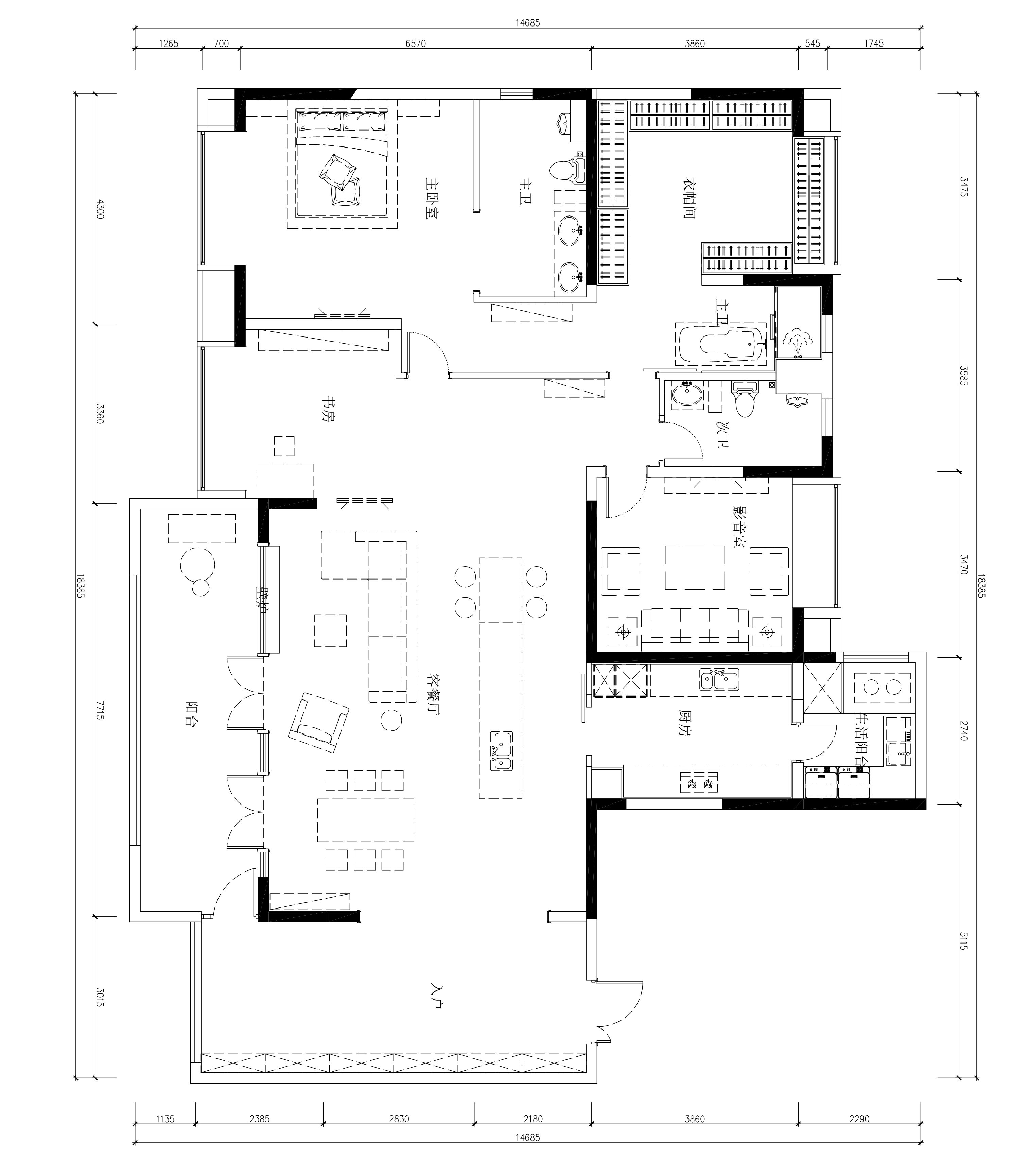
空间布局:200平一室一厅.将客厅、西厨、玄关、书房融为一体,且卧室、衣帽间、卫生间、浴室均为无门开敞式。
-
设计选材:选择环保白胶、环保强力胶、除甲醛健康涂料等环保材料,让屋主住的安心。
-
用户体验:非常喜欢.除开作品本身的呈现效果,设计师对于作品的整体把控非常好,我们本身比较追求时尚新潮,且对空间的储存功能和休闲功能十分注重,当整个作品呈现并入住体验后,这种无拘无束的感觉还原了我们对住宅的最初构想。
本案业主是一对从事营销推广的90后时尚潮人夫妇。“衣多,鞋多,玩具多;时尚,前卫,有品质”是这个家庭的标签与气质。家中常爱放置各类时尚单品。因此,设计师打破传统住宅的空间布局,将200㎡的空间设计成一室一厅结构,重塑空间功能性。
客厅
入户鞋柜采用整面镜面柜门,既满足了业主超多鞋靴的储放需求,也通过镜面反射去除了超长鞋柜可能存在的压抑感,让房间更加通透。
空间整体线条简约流畅,实木鱼骨拼接地板搭配颜色鲜艳的小椅凳、储物柜,都使得整体空间腔调即复古,又时尚。
大扇玻璃窗面对西厨岛台,同侧半透明设计的壁炉与室外相连。每天清晨,阳光透过阳台洒进房间,将室内外融为一体,打破固有空间的死板,让自然流入生活。
客厅
客厅
多余的空间并未被浪费,其余房间全部重新布局,改成配套衣帽间、游戏室等符合二人休闲爱好的空间。电视墙背后只占一席之地的工作空间,开放无拘束地让工作也多了一份欢愉。
开放式书房
青花砖,绿植被,阳台作为室内空间的延续,无论是品味精致的下午茶点,还是欣赏星空下的夜景,都是极佳的选择。
没有什么比一场好梦更让人轻松。 开放无门式的卧卫设计,给予空间更多的灵活便捷,而仅仅只摆放一张床与床头柜的“留白”,也让睡眠回归纯粹。
浴室、卧室与主卫均在一个开放的空间内,这是空间的设计,也是自由生活态度的展现。
以蓝紫色为主调的复古小花砖,给予休息区更多宁静。
浴室区
平面布置图
原始结构图

