极 简
675
作品说明
- 项目类型:住宅公寓
- 项目地点:银川市
- 建筑面积:300㎡
- 项目造价:120万元
- 主案设计师: 王大宇
- 竣工时间:2019-11-15
-
项目定位:稀缺大平层,打造舒适住宅
-
空间意境:现代极简,顾名思义,就是让所有的细节看上去都是非常简洁的。装修中极简便是让空间看上去非常简洁,大气。装饰的部位要少,但是在颜色和布局上,在装修材料的选择配搭上需要费很大的劲,这是一种境界,不是普通设计师能够设计出来的,需要有一定的经验,现代简约风格的装修风格迎合了年轻人的喜爱,都市忙碌生活,早已经让我们烦腻了花天酒地,灯红酒绿,我们更喜欢的一个安静,祥和,看上去明朗宽敞舒适的家,来消除工作的疲惫,忘却都市的喧闹。这也是现在流行的装修风格之一:现代简约风格。
-
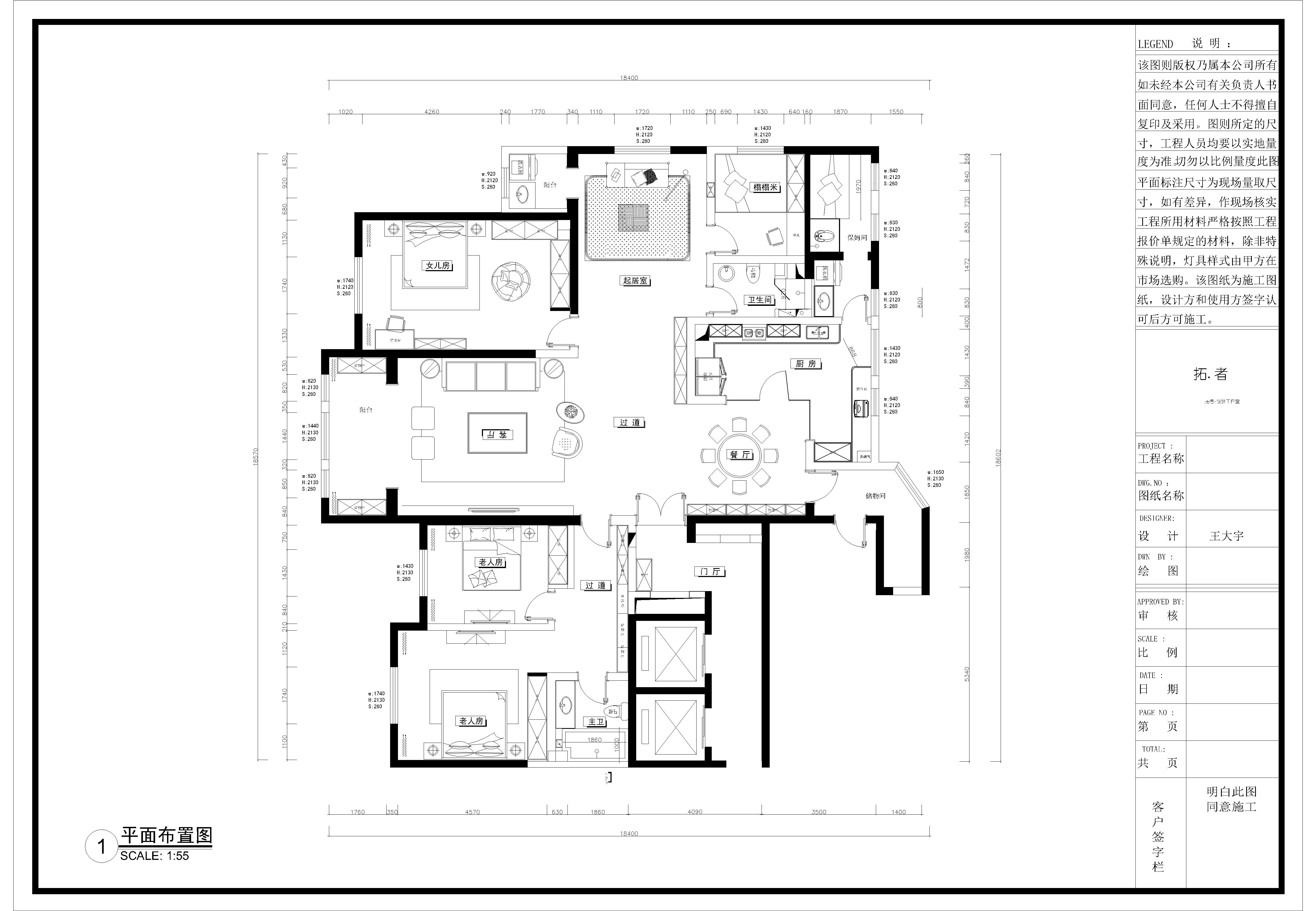
空间布局:本案建筑面积300平米,属稀缺奢华大平层,改造完成实际套内面积245平米,户型合理,南北都有观景阳台,采光充足,但北阳台浪费很大,厨房、卫生间、保姆间动线重叠,通过拆改使动线更加合理,空间布置更加实用,一开门西面观景阳台呈现在眼前,大宅气势充分体现。
-
设计选材:简洁并不是缺乏设计要素,它是一种更高层次的创作境界。在室内设计方面,不是要放弃原有建筑空间的规矩和朴实,去对建筑载体进行任意装饰。而是在设计上更加强 调功能,强调结构和形式的完整,更追求材料、技术、空间的表现深度与精确。用简约的手法进行室内创造,它更需要设计师具有较高的设计素养与实践经验。需要设计师深 入生活、反复思考、仔细推敲、精心提炼,运用最少的设计语言,表达出最深的设计内 涵。删繁就简,去伪存真,以色彩的高度凝练和造型的极度简洁,在满足功能需要的前提下,将空间、人及物进行合理精致的组合,用最洗练的笔
-
用户体验:好评
0
0

认证 · 让您身份增值