-
项目定位:生活无需假装,时尚要有态度。轻奢,一种不让人有压力但又追求品质和精致生活的状态,切实的骚到了我们的痒点。至精至雅、时尚大方,轻奢风袭来,开启优雅好生活。
-
空间意境:整体风格定义为现代轻奢风格,活动家具稳重又清爽,硬装整体匹配;灯具及软饰的点缀更是增添轻奢元素。
整体的灰白色的地砖,淡雅蓝色系软装局部点缀客餐厅。采用的家具休闲雅致,卡其色皮艺沙发和金属色艺术装置造就了空间放松高雅的气质。 -
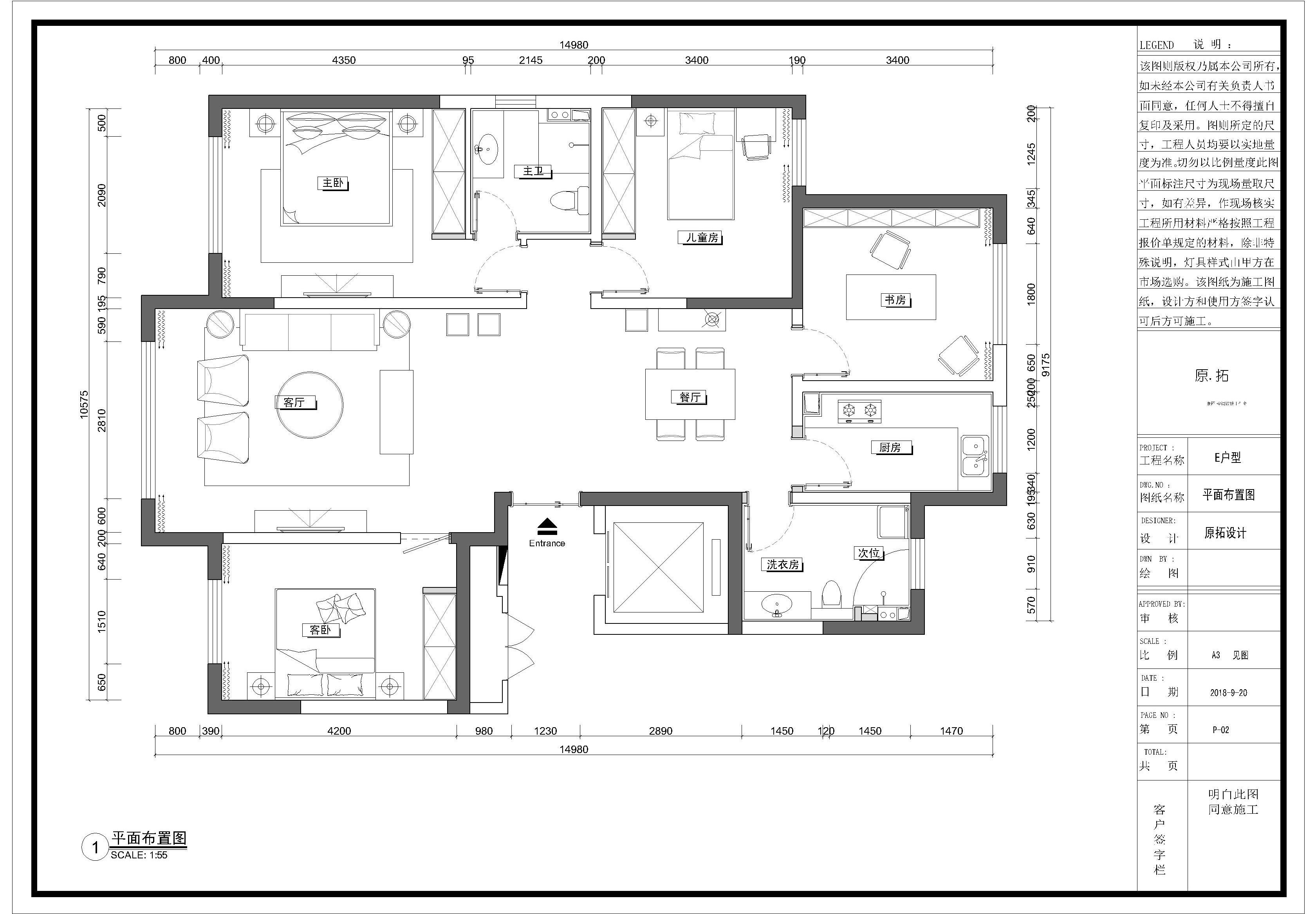
空间布局:户型方正常见,白色木作墙面调性高,与餐厅区域共享规觉空间,将展示空 间呈现出最大化效果,白色墙板上配上金属线条更加独特,更强调了空间区域性。
-
设计选材:轻奢风格注重设计手法上的简洁、大气,但并非忽视品质和设计感,而是通过材质上的奢华,不着痕迹地透露 出对于精致、考究生活的追求。灰色大理石纹路、黄铜元素、丝绒、皮饰、瓷砖乃至木饰面等,都可以经过巧妙的混 搭与组合,让空间的奢华感上升到一个新的高度,打造出深受年轻人喜爱的现代家居。
-
用户体验:满意
0
0

认证 · 让您身份增值
653