-
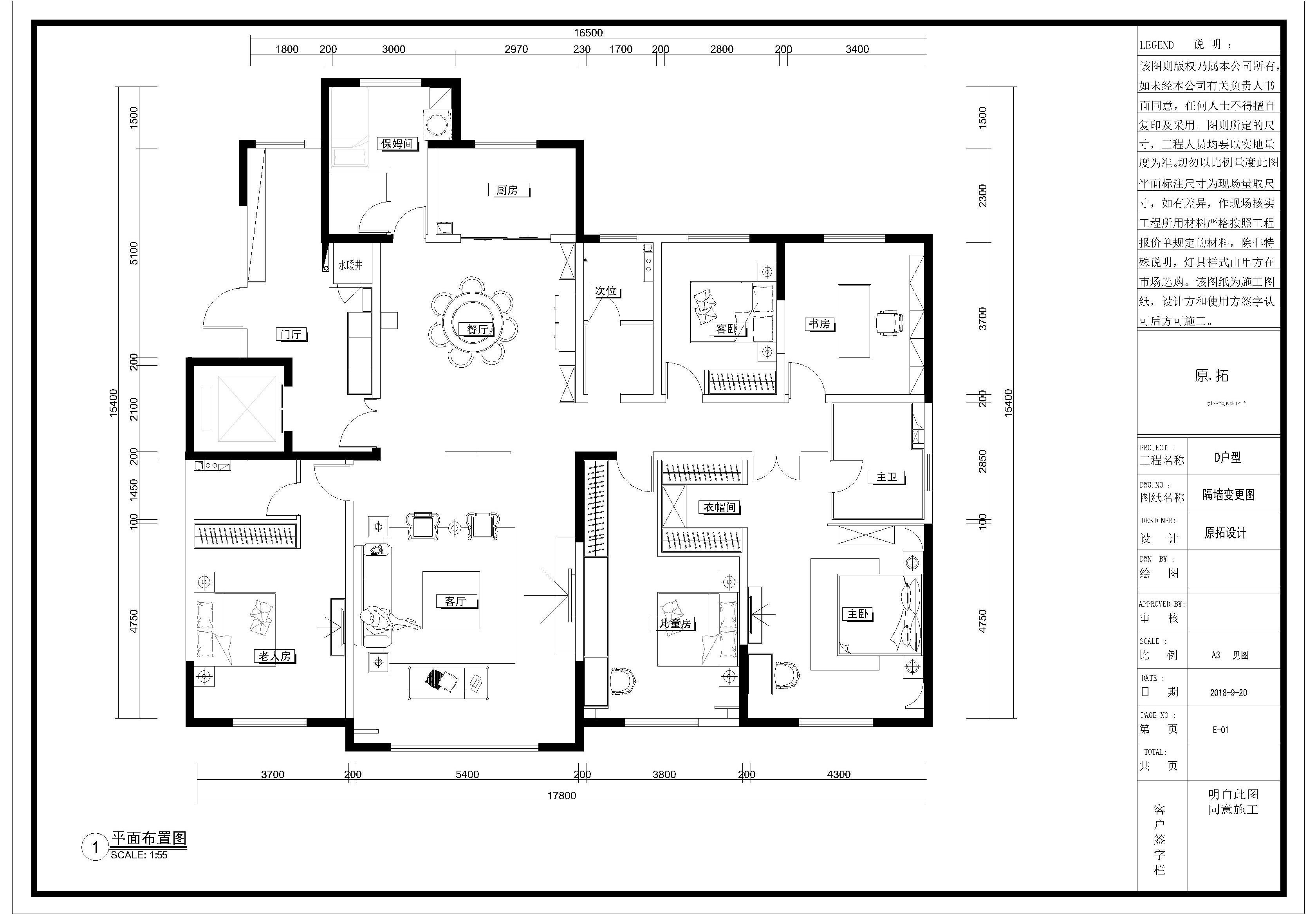
项目定位:经过定位分析,我们选择了“山,石,水”作为主要形式语言。因为它们既能体中式特色,又能提炼其文化内涵,以更亲近自然的设计语言体现个性,用块面的穿插来联系空间。
-
空间意境:中式美学 饱含底蕴大道至简,可纳万象,东方韵境,水墨为上。东方文化的精髓在于化繁为简,在意境,在留白,在淡妆胜浓抹的低调奢华。 水墨天生的灵性,已是飘逸出尘,再以青山为佐,奇松助兴,浑然天成般如诗如画。而时间的劳绩则以现代的艺术手法被彰显,风雅幽远与精致张力双重审美情趣, 被促成在同一空间,造意出具有东方文化精魂的现代质感。在城市的繁华,与归隐的闲适间,以设计的灵感为契机,寻找到一种平衡点,浸润了万古风雅,它是心中的桃花 源。简单 交替 在文化古都的包裹下与当代调性相融合,木质 金属 硬包 天然石材不是去
-
空间布局:步入餐厅,首先映入眼帘的是一幅高山飞鸟的绢丝手绘背景墙,金属线条镶嵌营造出流水般的画面层次感。电视墙面更是大面积采用纹理精美的天然石材作主空间 的基调,东方智慧的匠心独运,在于汲取了山水之磅礴,万物之灵气。不锈钢窗棂中式元素与现代材质巧妙兼柔,屏风隔断再现了移步变景的精妙小品。从而凝聚出 东方人文的精粹。主卧室一幅水墨山水画,抑或是一个白瓷瓶,都能成为主人个性的延展。设计师采用高级灰咖色系为主色调,绯红、蓝为点缀色,拉丝铜、皮革、 花鸟、艺术摆件等在内的元素,让空间营造出高雅宁静的人文意境。主卧连通衣帽间
-
设计选材:环保
-
用户体验:满意
0
0

认证 · 让您身份增值
656