长白山花舍精品酒店



作品说明
- 项目类型:酒店
- 项目地点:通化市
- 建筑面积:7500.0000㎡
- 项目造价:1600.0000万元
- 主案设计师: 李彦辉
- 参与设计师:林吉杨
- 竣工时间:2018-12-28
- 设计机构:沈阳柏高建筑装饰工程有限公司
-
项目定位:长白山吸引大量游客,这里酒店行业发达,长白山花舍精品酒店就位于美丽长白山脚下的二道白河,投资方和设计师希望打破该地区已有的酒店模式,打造独特的精品、个性化酒店。
-
空间意境:用现代设计语言讲述长白山的千年过往,设计师对长白山自然景观的深度理解和浪漫解读,炮制出那隐居花海旁,“未闻花名,但识花香”的“花舍“情结。酒店内米咖结合的黑白灰金属基调,带给入住客人的第一感觉是现代与时尚,酒店房型以大小、功能、房间朝向、面向景观等细致划分,为不同需求、不同年龄、不同背景的顾客提供最适合他们的居住体验。
-
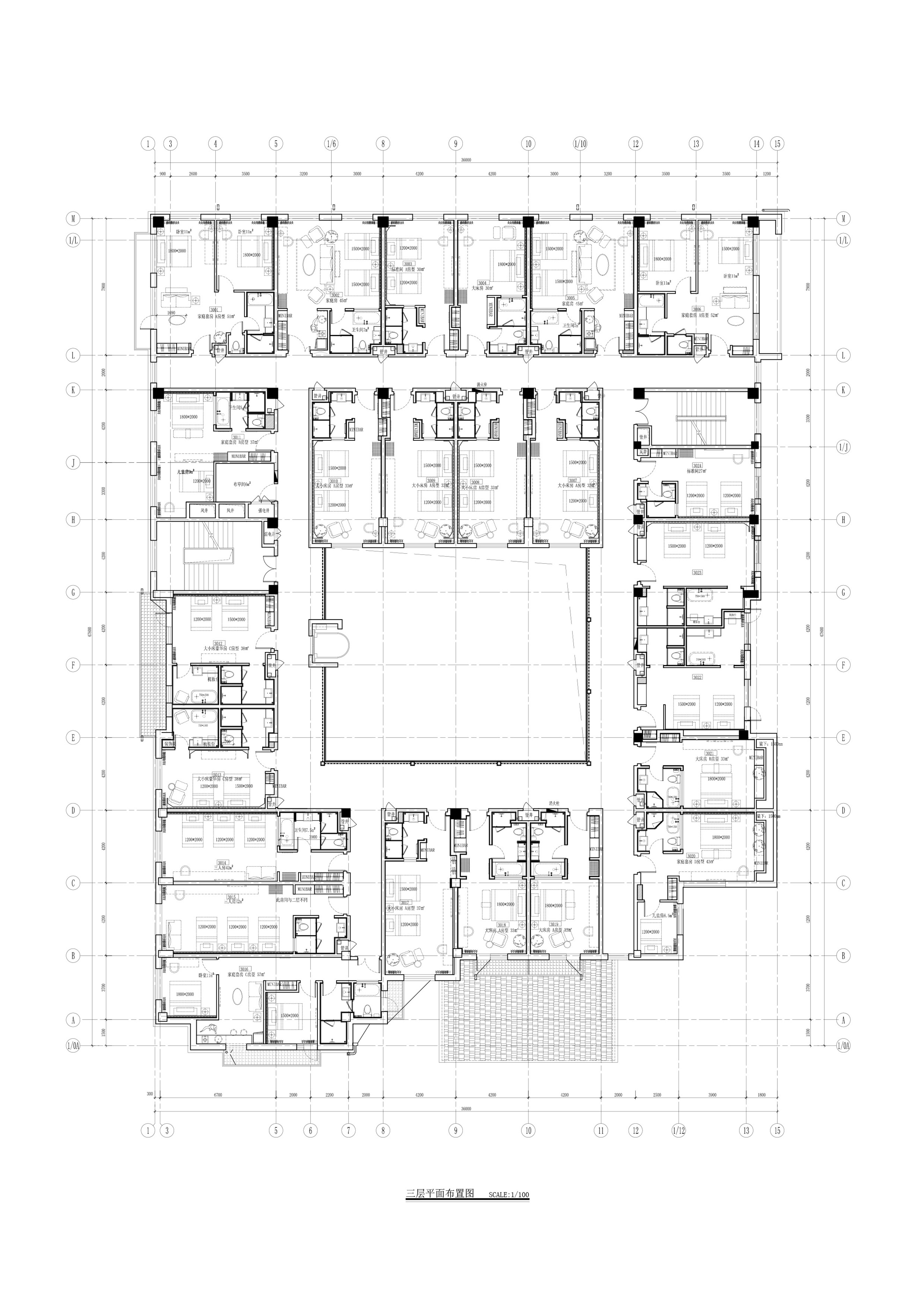
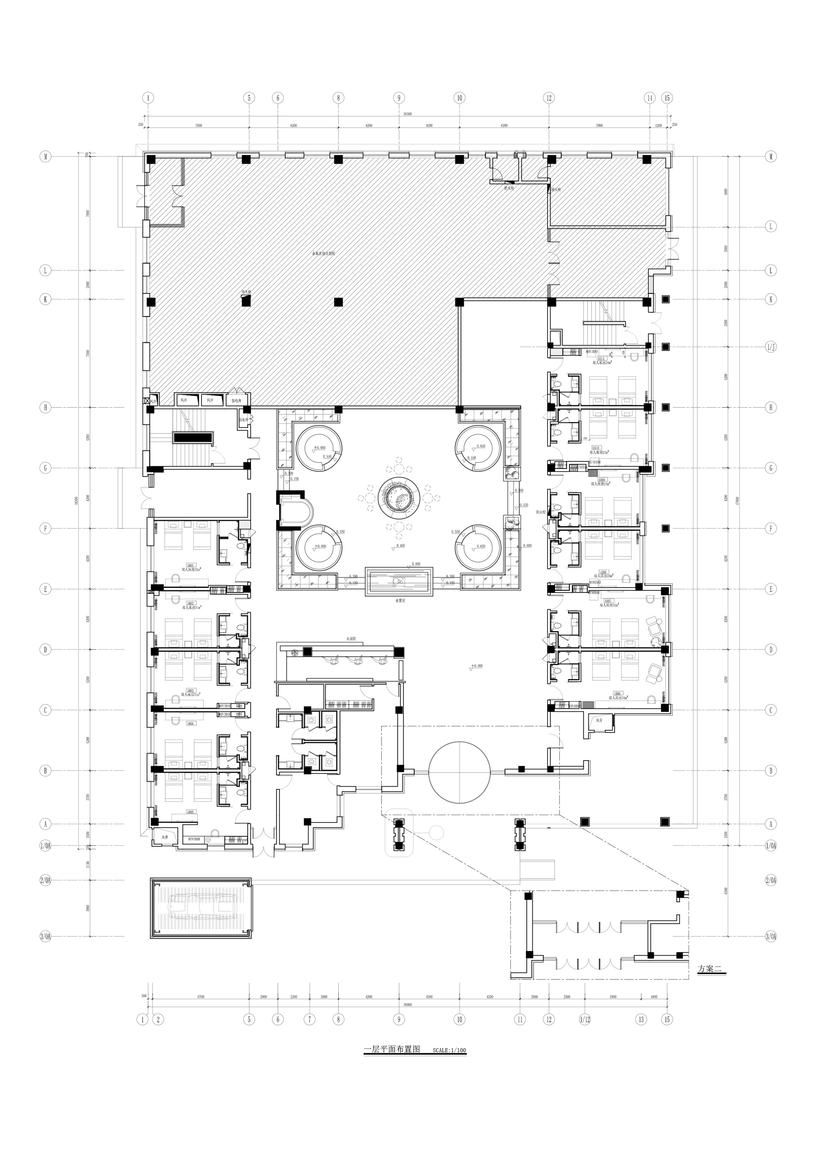
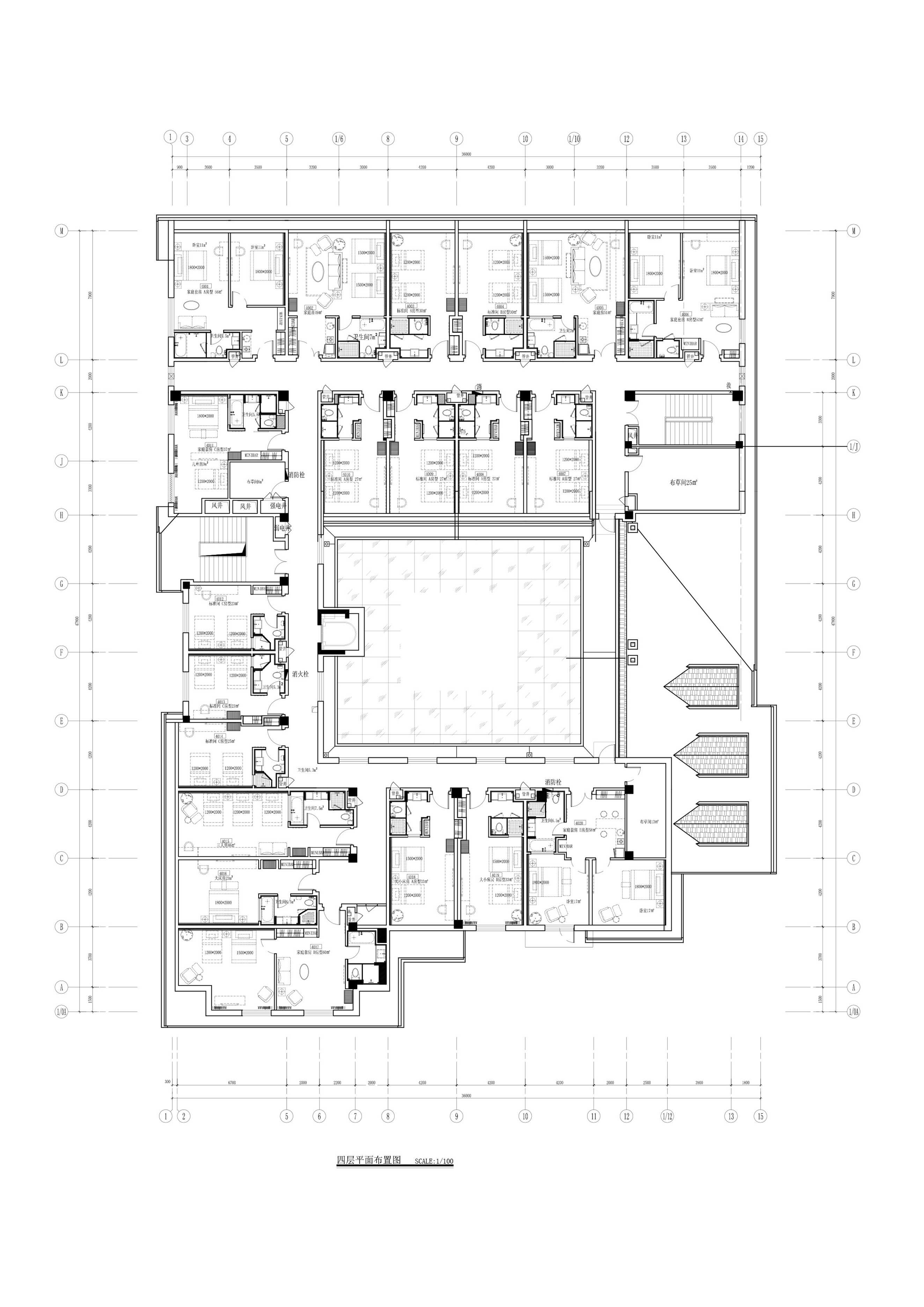
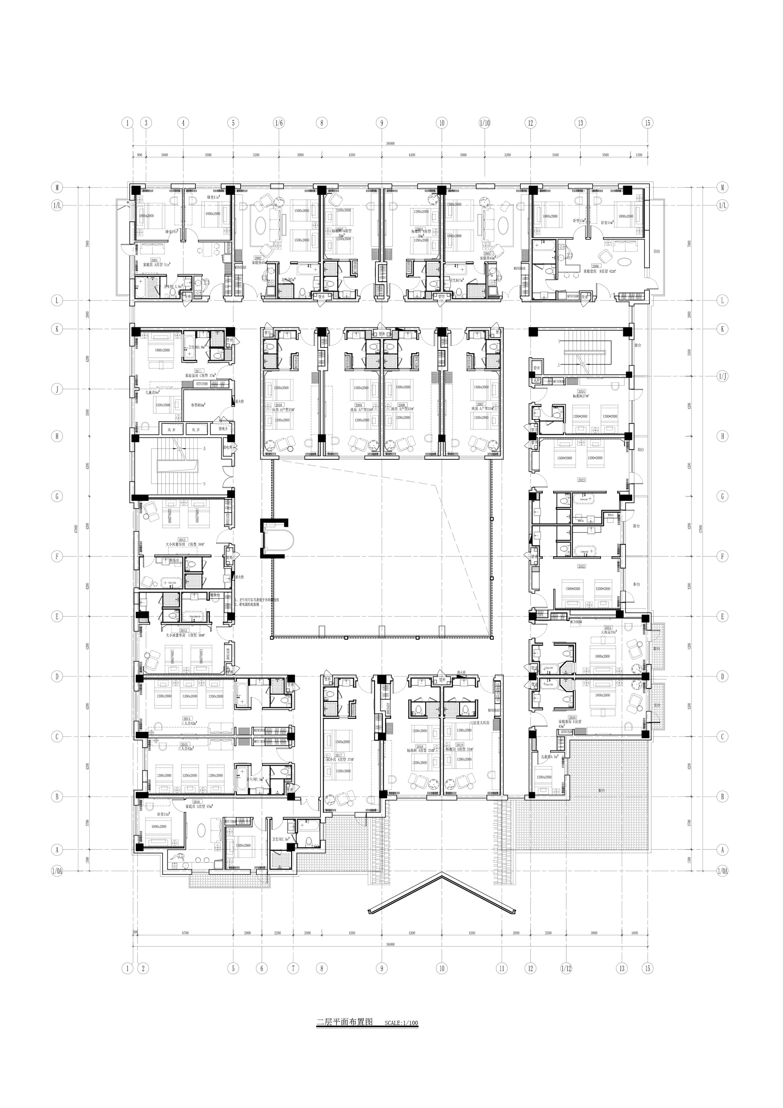
空间布局:酒店中庭的设计是体现长白山自然文化最为凸显的部分。中庭挑空的围合式布局,全透明阳光屋顶是建筑原有的设计格局,设计师善用这种固有格局加以改造,让其成为引入自然天光的媒介,自然的将长白山的蓝天、白云、星空进入酒店,客人在酒店内便可轻易仰望苍穹,观尽云海。如果说通透的中庭设计完成了酒店隐于自然,融合于自然的设计概念,那么贯穿于酒店中庭上下的金属艺术装置则是体现长白山文化的艺术化符号
-
设计选材:在材质上选择了天然的石材及木材,如果说通透的中庭设计完成了酒店隐于自然,融合于自然的设计概念,那么贯穿于酒店中庭上下的金属艺术装置则是体现长白山文化的艺术化符号。这个艺术装置以长白山自然符号之一的白桦树为原型,用时尚的金属材质表现白桦叶的形态,将具化的自然物质抽象化,解构成地区符号,用现代的设计语言解读长白山特色。
-
用户体验:酒店将客群精准定位为以情侣、驴友、家庭为主,对酒店品质有要求的散客。酒店客房设计采用多元化的、亮丽色彩打造软装配饰,使用爱马仕橙、高级灰、墨绿等时尚色彩构建空间差异与动感,打破单一的气氛。一家五口以家庭形式入住,那么家庭套房设置独立的衣帽间、卫生间、梳妆台,强化功能性的、生活化的空间更适合这样的客群。

