藏在时光里的家



作品说明
- 项目类型:样板间/售楼处
- 项目地点:本溪市
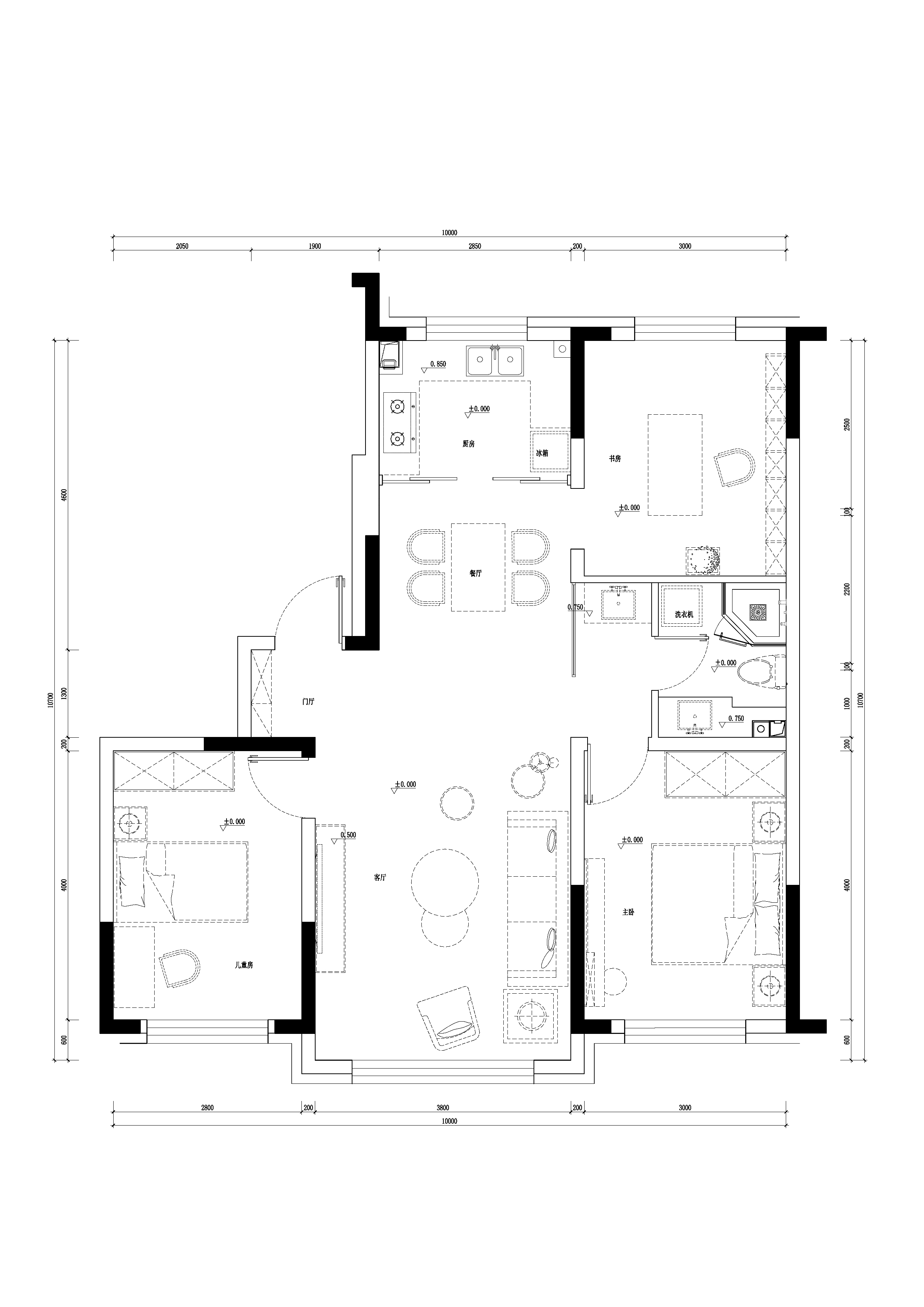
- 建筑面积:105.0000㎡
- 项目造价:50.0000万元
- 主案设计师: 李彦辉
- 参与设计师:张建波、薛天野、王天霖、袁锐、谭真、李哲
- 竣工时间:2022-08-31
- 设计机构:柏高建筑空间设计
-
项目定位:都市中人,即使被城市的纷扰所包裹,也能从中体会到生活的温柔,以细腻手法优化生活场景功能与结构之间实现平衡。
-
空间意境:公共空间以浅奶咖色为主体色调,遵循空间视觉特点,给视觉上带来阔达的空间尺度,加上充足的阳光,更显大气。
-
空间布局:客厅餐厨区并联于开放式的空间界面中,整个横向的布局大气而端正,保持相对独立又互通延展。以细腻手法优化生活场景,功能与结构之间实现平衡,流畅动线凸显出通透与开阔。
-
设计选材:主卧舍弃主灯,用点光源营造氛围,米白色调的墙面和床头背景让卧室有了温暖,而暖冷色的床增加了空间的清新感。
-
用户体验:客户整体使用很满意
艺术是表达生活的语言,家是储存精神的容器。我们渴望拥有这样一个家:它能给予温暖关怀,也能唤醒活力激情;它帮助我们静思感悟,也赋予我们无限想象;它,让我们“从心出发”,重新审视我们的生活。
公共空间以浅奶咖色为主体色调,遵循空间视觉特点,给视觉上带来阔达的空间尺度,加上充足的阳光,更显大气。
区别与传统的餐厅,此空间兼任了创作谱曲与典藏时光记忆于一体的场所。皮革与黄铜的质感搭配交错岁月痕迹之美的胡桃木,与现代感的空间相碰撞,低调复古的感觉油然而生。
主卧舍弃主灯,用点光源营造氛围,米白色调的墙面和床头背景让卧室有了温暖,而暖冷色的床增加了空间的清新感。
白夜童话小女孩摆件、云朵的装置、单人位沙发粉色的搭配,让整体空间拥有了儿童 的童话世界。
平面布置图

