人间烟火气



作品说明
- 项目类型:样板间/售楼处
- 项目地点:本溪市
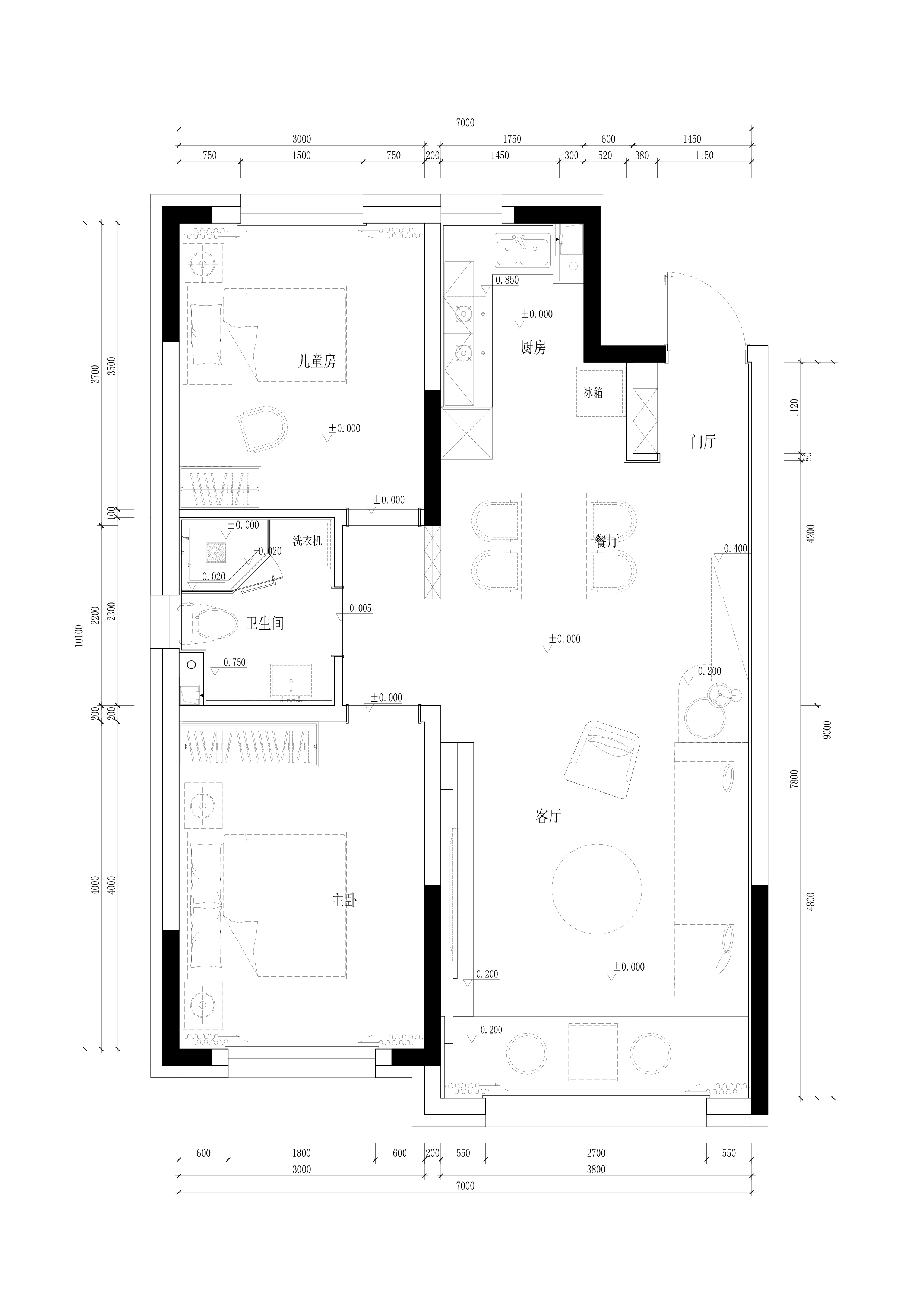
- 建筑面积:89.0000㎡
- 项目造价:50.0000万元
- 主案设计师: 李彦辉
- 参与设计师:薛天野、王天霖、袁锐、谭真、李哲、李志鹏
- 竣工时间:2022-08-31
- 设计机构:柏高建筑空间设计
-
项目定位:给在都市繁忙的三口之间,一点温暖治愈,又不失浪漫与格调。
-
空间意境:本案是一套现代简约风格格家,绿色植物和木色相搭配,给空间营造清新自然的氛围。
-
空间布局:打破了传统布局的形式,给空间容纳了更过的可能性,也容纳了更多的收纳空间,满足生活的使用需求。整体化繁为简。人间有味是清欢。生活在乎的是细水长流的幸福累积。
-
设计选材:采用很多环保材料,在保证效果的同时,又能低碳环保。
-
用户体验:客户很满意,住着温馨且舒适。
美的意义 不仅只在于那一瞬间的确认 更在于每一步驻足时的共鸣 每一次转身都有着不可复制的视角 每一处线条都是对场景意义的探索 用设计来抒写生活 是记录,也是对话
舒缓的色调重叠交叉,精简的家具陈设其间,一个澄澈、透亮的空间就这样呈现在眼前。
本案是一套现代简约风格格家,绿色植物和木色相搭配,给空间营造清新自然的氛围,电视背景墙摒弃了所有不必要的修饰,一款落地的黑色抽屉电视柜,满足部分收纳的同时,又为空间增添了几分潮酷,同时也是客餐厅不同功能空间的分界点。
来到男孩房,色彩变得丰富起来。蓝色开始大面积使用,显得活泼亮丽。明亮宽敞的居室更符合居住的需求,更是对孩子天性的释放。
开放式厨房带来布局的流畅,也容纳了更多的收纳空间,满足生活的使用需求。无扶手设计的橱柜也使线条更加笔直流畅,化繁为简。人间有味是清欢。生活在乎的是细水长流的幸福累积。
平面布置图

