秦哥哥长安味道
799 - 项目类型:餐饮
- 项目地点:广州市
- 建筑面积:200㎡
- 项目造价:40万元
- 参与设计师:冯英航 黄文骏
- 竣工时间:2019-06-30
- 设计机构:广州瑞本装饰设计工程有限公司
-
项目定位:西安 即为古代长安,早在西周丰镐; 秦都咸阳; 汉都长安; 隋唐长安前后历时长达1140年之久,中国4大古都之首,74位帝皇,13朝古都, 走进西安大街小巷,总会看到厚厚的历史缩影,浓浓的历史气息,古都西安见证了“文景之治”、“贞观之治”、“开元盛世”的鼎盛辉煌,
作为千年古都,美食也是流传千年,要怎么样把这份千年美食传承下去;秦哥哥长安味道做为一个多年前就创立的街边小品牌,他们想打破地域性的限制,把长安味道的用餐环境提升,让更多的人了解什么是长安味道;
-
空间意境:此店落位于广州CBD中心花城汇南区,这里人流密集,有游客,更多的是写字楼的人群,这对于做品牌来说,这是一个好商圈,但是做商业设计要讲求商业回报,和其他设计不太一样,不是天马行空出作品的好地方,好生意才是好设计这是商业设计的核心;
-
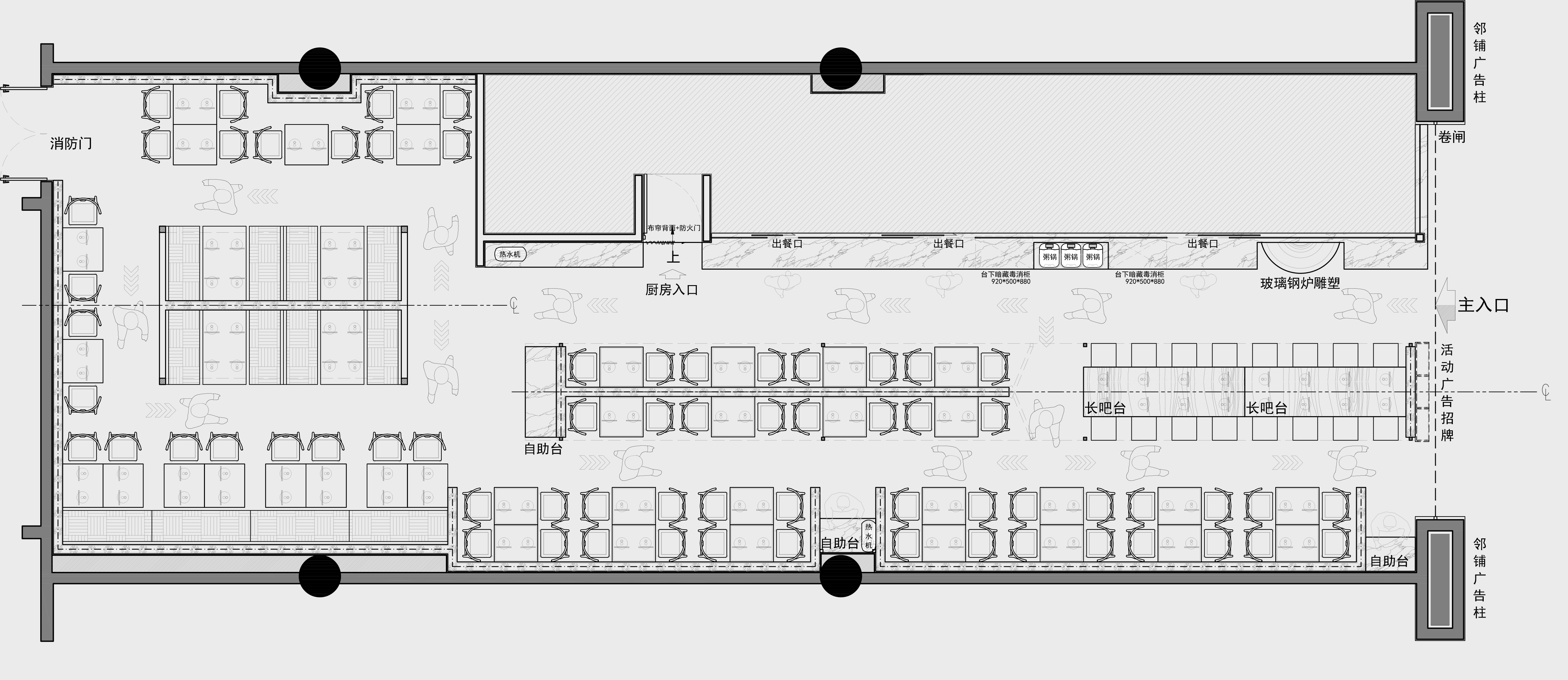
空间布局:此空间狭长,为了让顾客更直观的了解长安味道,我们把厨房设计为明档厨房,并且把西安美食之一烤羊肉串放到了门口,那烟火气和羊肉的香味立马让整个餐厅活了起来,这才是生活;另外一个进门口旁边我们还设计了一个大大的肉夹馍缸,向每一位用餐的顾客传递着专业,专注并传承着传统烤馍的手艺;
-
设计选材:温暖的用餐环境是我们设计的第一要点,在选材上都离不开木,商业项目消防等级高,材料都必须用A级,所以木是铝合金转印,水泥板的墙裙,个别涂料的墙面,也是为了保证效果前提下降少投资。
-
用户体验:好生意才是好设计,我们在此成功的实现了,此项目已经成为花城汇南区餐厅营业额的前五名,给业主带来的品牌效应比预期中还要多,当然也让更多的人尝上了长安味道
此项目定位为快餐厅,人均价35,但如何要做到看起来不贵但环境又吸引人,这是比较考究设计师的能力的,这次大胆的用了蓝色做为品牌色,对做餐饮来说是有点冒险,但机会总会是在险中求,这样差异化就做出来了,其实木色加蓝色加白色的空间不会突兀,相反给人还有一点新鲜感;并且告诉你,来此餐厅吃饭不贵,这就是让设计来解决问题。
餐厅最核心的是什么?是产品,对于在广州CBD的首店,首先得让顾客知道你是吃什么的,所以我们把长安味道的几款主要产品设计成挂画的形式放在墙面上,第一起到传播作用,第二解决了顾客点餐的困难症,我只需要点餐厅推荐的爆品,错不了;
开放式明档设计,中间一个大大的馍缸,做为装置,也是产品的一部分,明档上方的牌匾和灯笼增加了整个明档的氛围感;
把当地装配料的簸箕挂在墙上再贴上几个大大的纸字,围着墙裙还插了一乔的麦穗,很接受地气但又不会显得廉价感,相反给人还有种亲近自然的感觉;
在入口左边的天花上我们用白色铝板做了长长的弧形造型,其实也是在说产品,设计想法来源于西安裤带面;
餐厅的后区我们设计了一个中岛半围合空间,上方一个发光的拉膜天花,给空间的后部做了一个聚焦点
个别墙面上我们把做面吃面的各种器具挂在墙上,边上加上一些小小的金属字,其实生活也是可以过的很精致的;
找了一小面墙设计了一个互动墙,顶上是三个会转的灯管装置,一是为了餐厅能有点动态,二是是为了和顾客互动,或者餐厅出来新品会在这里告诉大家,增加了和顾客的互动性;
好好吃饭,是我们人生终身的必修课,它从来都不应该与单纯的填饱肚子划上等号,而应该是一种美好而有趣的感受。 在你的吃饭方式里,藏着人生的幸福程度,只有厨房有烟火,生活才会变得更美妙。在此希望每个人都能好好吃饭。
平面图
0
0

认证 · 让您身份增值