TARENTUM萄木·Café BAR
739 - 项目类型:餐饮
- 项目地点:深圳市
- 建筑面积:260㎡
- 项目造价:300万元
- 参与设计师:林之枫 罗结然
- 竣工时间:2021-02-01
- 设计机构:广州瑞本装饰设计工程有限公司
-
项目定位:TARENTUM萄木是一家承载了古希腊文明的希腊简餐,威士忌酒廊揭开历史的面纱,征服当代人们挑剔的味蕾,TRT倡导的是一种摩登的休闲的品质生活态度;
-
空间意境:墙面天花大面积选用微水泥,微水泥是近两年流行的材料,它细腻有质感的同时,又如同水泥一般结实稳重,使用时完全无需考虑接缝问题,能够打造连续、流动、整体化的空间视觉。
做为一个希腊餐厅,微水泥是我们的最佳选择,也达到想要的效果。 -
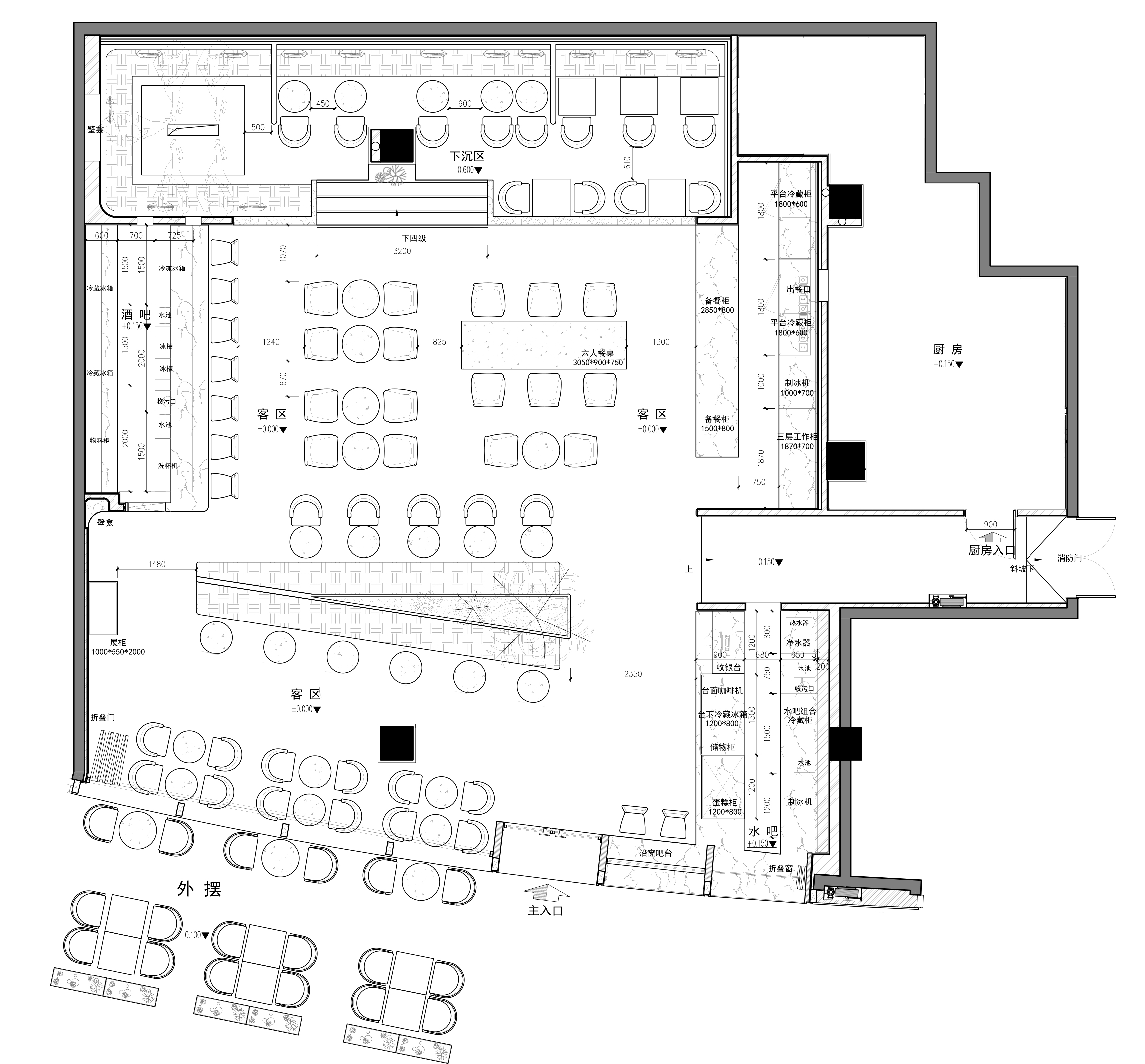
空间布局:勘察过现场后,发现地面可以下挖60公分,所以我们设计了一个下沉空间,设计师需要创新和善于发现!
-
设计选材:在材料上我们选择了微水泥,微水泥为无机型矿物混合产品属国家进口免检材料,零甲醛、零VOC,对环境与对人体都是绿色健康的选择,商业设计能到达保护环境是一个非常好的想法。
-
用户体验:以成为当地打卡点,受到越来越多人的喜欢和追捧,开业至今平均每月营业客一百万以上,2月份开业至今,已收回投资成本,并以盈利,
是一个商业成功的案例。
TARENTUM萄木是一家承载了古希腊文明的希腊简餐,威士忌酒廊;揭开历史的面纱,征服当代人们挑剔的味蕾,TRT倡导一种摩登的休闲的品质生活态度;TRT源于古希腊神话中海神波塞冬之子Taras守护的城邦Tarentum。
蓝天下的TRT,追逐阳光的脚步,不受时空的限制,沉醉于希腊的明媚中,摩登,休闲,慵懒,生活要有仪式感,用Brunch开启崭新一天,简餐/酸奶/果茶/咖啡;当季的新鲜食材,来唤醒身心欲望,希腊式好心情现已加载。
夜幕降临,圆月/香熏/烛光/音乐/酒香,TRT摇身一变Whisky酒吧,在舒适又私密的TRT空间,享受Whisky的惊喜之夜 ,品味小酌时光,惬意的希腊式微醺。 TARENTUM萄木给你全时段的美味体验。
这一次我们把店开在了深圳宝安海边的摩天轮下:海滩 / 碎石 / 清澈的蓝 / 有点美 / 阳光的缝隙 / 嘿 / 融化 / 滴答声 / 嘿 / 吱头 / 有香气 / 香草与葡萄木 / 几何线条 / 懒洋洋 / 咖啡因满足感 / 散漫的星光 / 微醺变奏曲 / 听见细语 / 神话里 / 风是轻柔的 / 17度的轻吻 / 诱惑 / 发酵 / 水雾 / 琥珀色 / 嗅到 / 威士忌问候 / 灯塔 / 冰块里的月光 / 惝恍迷离 / 人情味 / 这很希腊。 银河万里摩天轮相遇,这是我们给予此项目的主题。
墙面大面积的象牙色微水泥,自带温柔的奶油色调让人放松,座位区上栽种了各种不同的绿植,灰色皮质感软沙发搭配绸缎感靠枕,与靠窗的蓝色调位置呼应,仿佛地中海上的一抹蓝,中岛座位区的绿植延伸到不同角度,让空间的每个画面都多了一些地中海风情。
门面是沉稳的圣托里尼蓝色调 搭配银色苹果砂金属材质,咖啡吧对外的窗口设计成开放式做为手冲咖啡区,喝一杯专业咖啡师为你手冲的咖啡,去掉一天的乏意;抽取品牌名简称TRT做为咖啡吧的元素墙,圆滑处理的边角,细腻温柔,还多了一份设计感。
大理石纹理感的桌子,搭配蓝色绒棉感的座椅,桌上摆放的精致小花瓶很有细节感。 备餐区的墙面是天然肌理岩石,搭配蓝金沙大理石的台面,干净品质。
挨着WhiskyBar旁边还有一个下沉区设计,半高的文化石隔断把私密性区域围合起来,夜幕降临后在此享受Whisky之夜,月球型的水泥吊灯,是夜空里的一束光亮,不炽热,不张扬。
临窗的折叠玻璃门全部打开,室内室外融为一体,离摩天轮更近了,午后,阳光照进来的时候,抬头瞥见一个个的白色球体,光影斑驳如同月上纹路,似圆月,也似白色气球,油然而生的浪漫感;可以坐在室外外摆享受温热的阳光,看着浪漫的摩天轮拍拍照,也可以慵懒随意的靠在室内舒服的沙发上发呆,一切都是那么的美好自然。
订制的象牙色烤漆玻璃展示柜,里面放的是业主的收藏物-女神像。
项目落地至今,已经成为热门打卡地,月营业额达到上百万,实现了商业设计的本质:创造价值,传递价值,实现价值。此项目也给我们设计师团队留下了一个很深刻的体会:于细微之处解决业主需要,是业界荣幸,务必认真,务必用心!
空间分析图
0
0

认证 · 让您身份增值