萄木
487 - 项目类型:餐饮
- 项目地点:深圳市
- 建筑面积:280㎡
- 项目造价:300万元
- 参与设计师:陈智雄
- 竣工时间:2023-01-15
- 设计机构:广州瑞本装饰设计工程有限公司
-
项目定位:当远洋希腊的轮渡停泊在海上世界的港口,晨光与暮光辉煌
代表着收获、自由、归航或起航的期望,依靠山海、清晨或是黄昏中的蛇口弥漫着微薄的雾气对于生活的向往与享受涌动在大街小巷,如此自在。
做为一家希腊餐厅,萄木的定位是为人们带来全时段的消费社交场景,一直以来传达给消费者想象力、探索、无限可能的品牌精神。
-
空间意境:此项目为于深圳海上世界,我们结合海的主题,在门店的设计中,想出了一个“海上生明月”的主题,让项目既融合在地又具创意性。
-
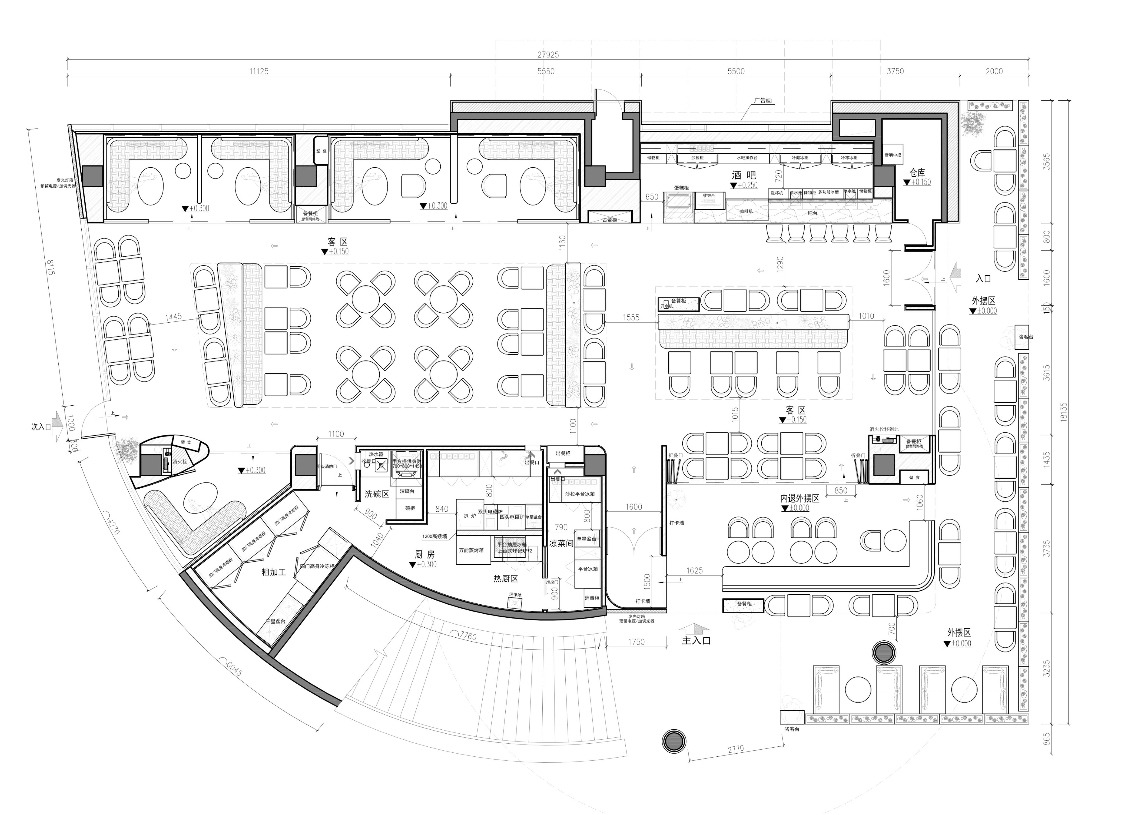
空间布局:打破传统空间的布局几何语言与意境串联,在空间运动的弧形体现波浪追逐波浪的美感,也将人们推向与远洋更近的位置。
-
设计选材:墙面天花选用微水泥,而微水泥环保性非常好,因为其材质不会存在有机物的挥发,使用起来也是比较放心可靠的,不用担心对人体的伤害,价格也相当合理。
-
用户体验:各大点评网站点评第一名,已经成为当地很多消费者休闲,打卡,喝下午茶的场所,客户对我们的设计也非常满意。
海上生明月 当远洋希腊的轮渡 停泊在海上世界的港口 晨光与暮光辉煌 代表着收获、自由、归航或起航的期望 依靠山海、清晨或是黄昏中的蛇口弥漫着微薄的雾气 对于生活的向往与享受涌动在大街小巷 如此自在
传统&现代:新的逻辑性关系
ARENTUM 萄木为人们带来全时段的消费社交场景,一直以来传达给消费者想象力、探索、无限可能的品牌精神。 深圳海上世界门店的设计中,通过“海上生明月”的主题,打破传统空间的布局几何语言与意境串联,在空间运动的弧形体现波浪追逐波浪的美感,也将人们推向与远洋更近的位置。
不回避传统而是化为己用,明月、海浪结合几何空间形式,完成旧到新的转换,创造性地建构和排布熟悉的元素,融合传统思想与基于现代观点的新潮流、新风尚概念,巧妙打造出一个新的逻辑性关系,化解传统与现代彼此之间的冲突紧张,形成基于深厚文化和高远意境的时尚餐饮空间,带来全然一新的个性体验。
通过敏感开阔的想象力解构空间主题,沟通感性和知性,拒绝陈词滥调,用非同寻常的方式诠释司空见惯。具备足够表现力的逼真巨型月球吊灯,自带运动感的波浪式隔断,别具一格的高颜值罗马伞,富有生命活力的热带植物,暗示而不是直抒其意。
折叠门兼顾着扩容、隔断、装饰、隔热、隔音等多重功能,还可以实现更大幅度的空间开放与闭合,收放自如,让室内空间与室外超大程度地连通,把大自然的阳光和气息引进室内,两者融为一体,在悠闲中品味真正的用餐环境。
符号、形态与表达
符号是不以再现为目的的表达。古韵雅致的拱门造型入口和拱门观景玻璃窗,以及拱形的酒柜墙,融入了古希腊建筑艺术最著名标志之一的拱门元素,与墙面上TRT品牌标识交相辉映,赋予了餐厅独特的性格,专属于TARENTUM萄木。
色彩、陈设与质感
精致复古的金属色品牌标识、千挑万选的热带植物,粗狂与现代金属相结合的酒柜,渗透着轻奢。壁柜里俊秀的石雕景观和天然原石点缀着优雅,以自信的身姿迎送尊贵的客人。
不拘小节的经典酒柜设计,在氛围灯下,纵向线条感与金属感充分演绎。粗糙的墙面、暗木色的吧台和黄铜色高脚凳在空间内发生奇妙的碰撞,呈现一种触手可得的高级质感,朦胧柔和的月色灯光荡涤厅内一切。
优美的光弧使得空间充满层次感,深灰色的大理石桌面肌理清晰可见,孤傲的荷兰铁犹如一位搔首弄姿的曼妙女子,肆意张扬,似乎在体验一场魔幻现实的时空之旅。
空间分析图
0
0

认证 · 让您身份增值