悠然凌霄


作品说明
- 项目类型:住宅公寓
- 项目地点:武汉市
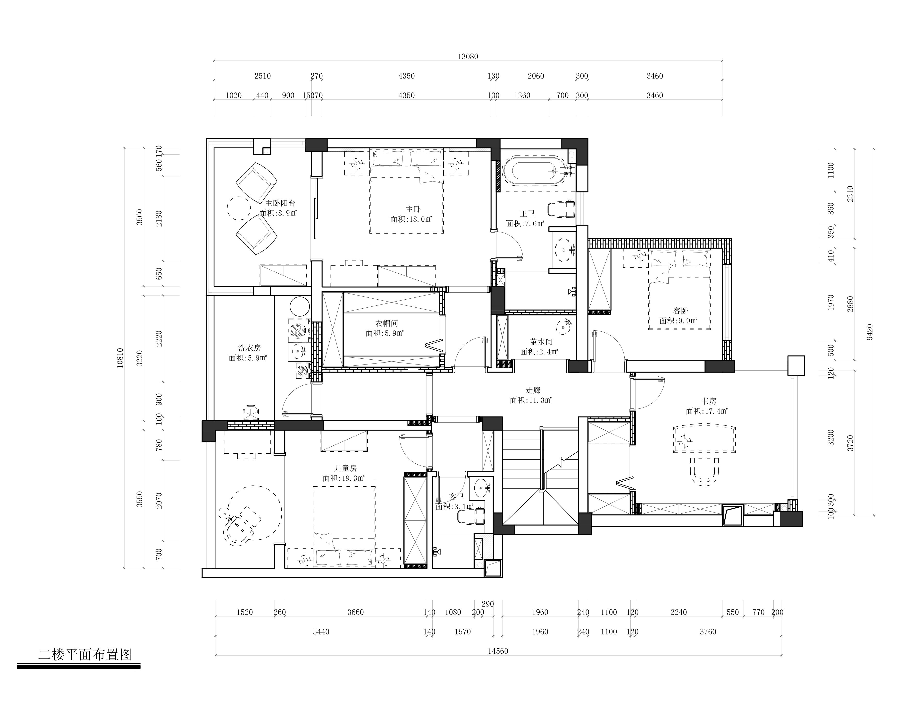
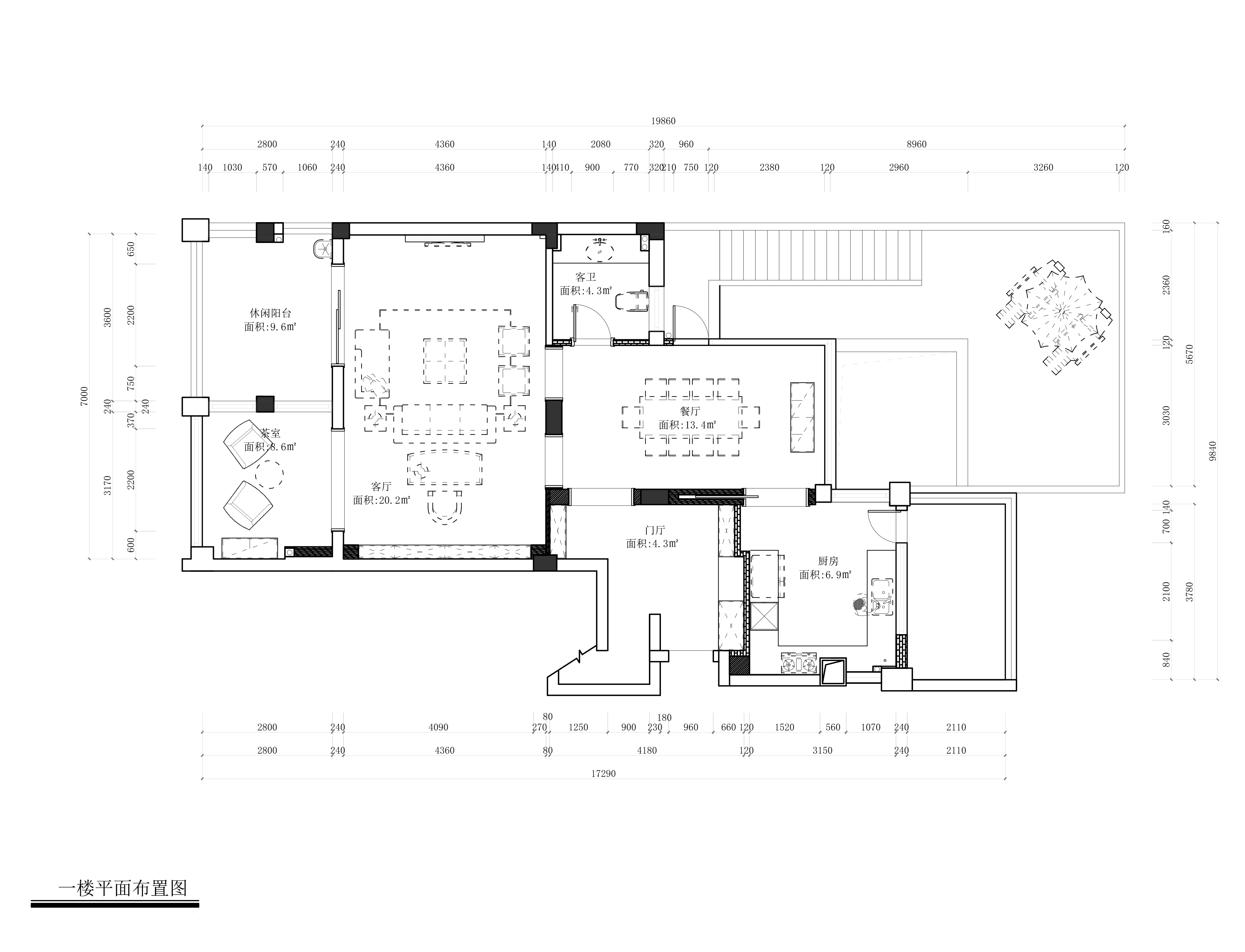
- 建筑面积:270.0000㎡
- 项目造价:150.0000万元
- 主案设计师: 孙琳
- 竣工时间:2019-06-30
-
项目定位:用美式轻奢风格来诠释了业主对生活的定义。所谓美式是在古典的韵味和质感中,又能够体会到休闲和放松;所谓轻奢是不让人累赘但又追求一种低调的状态,不为走在前端,也不为炫耀夸赞但要尽情享受生活的美好。
-
空间意境:本案例是位处一个繁枝叶茂、绿草如茵的小区里的叠墅。业主一家三口,热爱美,也热爱生活。
明亮的白色,搭配米灰色让空间敞亮而又高级,再用蓝色和橙色点缀其中,让空间更加时尚和活泼。少许的金色不锈钢,提升了空间的质感。
-
空间布局:通过对原始结构的改造,将餐厅移至带有两面大落地窗的独立空间,用餐时户外美景净收眼底。
-
设计选材:摈弃传统满墙护墙板的美式风格,设计师通过局部墙板的点缀,搭配上壁纸,营造出更为休闲的轻美式,同时也更加环保。
-
用户体验:客户入住后真正感受到,家是居心之所。

