-
项目定位:本案的业主是有活力有想法的一家三口,不囿于潮流和模式,想要这个家简简单单,人和物都能各安其所,通透舒适。
-
空间意境:将自然融入家居,回归生活的本质,自在共万物生长。
-
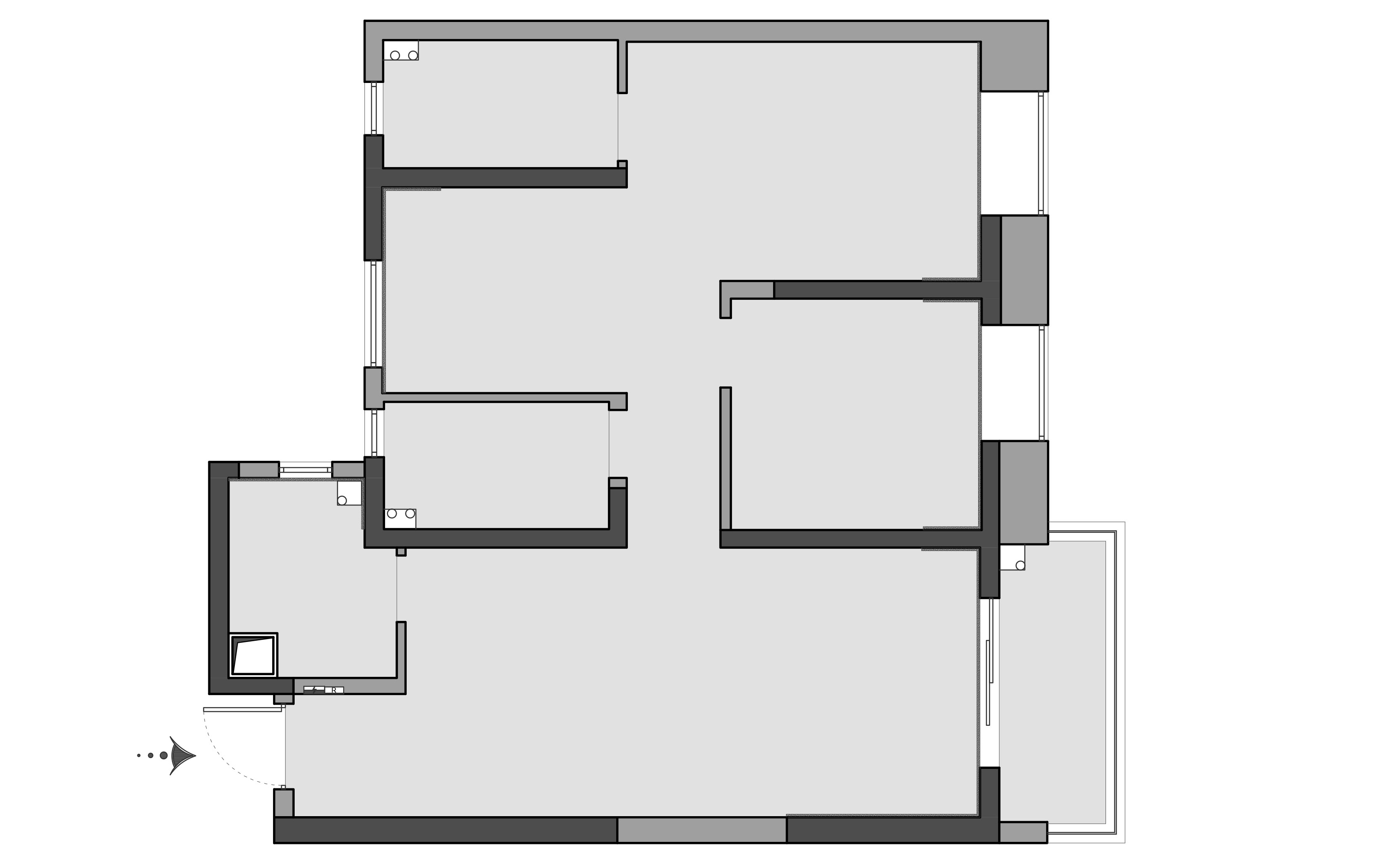
空间布局:1.开放式厨房和衣帽间,完美融合现代生活美学。
2.超大储物空间,为日常生活释放出更多自由和便利。
3. 主卧设置内玄关,提升居住舒适度与私密性。 -
设计选材:前面采用涂料来装饰,低碳环保
-
用户体验:在这片由自然灵感精心雕琢的居所中,每一砖一瓦、每一线一缕都承载着对美好生活的向往与追求。每一天都是新的开始,每一刻都值得被温柔以待。
亲近自然,让生活充满诗意与闲暇的适意,光影交错间,仿佛步入了一片森林秘境,享受那份独有的宁静与美好。告别无趣的设计,家便成为了情感链接、安放自我的精神之地。
马赛克瓷砖铺就的下沉式“落尘区”,不仅营造出视觉上的层次感,还能温柔地拂去外界尘埃,守护家的每一寸纯净。独具匠心的洞洞板是收纳魔术师,更是展示个性的艺术墙,让归家充满惊喜与温馨。
弧形天花板拓宽视觉边界,引领着空间的美学韵律。线条简洁的储物系统,以木质温润的触感,为家增添一抹自然与和谐。而居于中心白色Prado沙发,营造出写意般的舒适氛围,随时可以慵懒地“瘫倒”,悠然小憩,找到最自在的状态。
餐厅区域,木格栅柜门以其独特的纹理和光影效果,为用餐时光增添了几分雅致。木纹餐桌与斑驳的枫叶,勾勒出一副自然惬意的景象。
厨房里,墨绿色艺术砖显现出灵动光泽,透露着复古优雅气息,撬动了美学点缀的真趣。开放式设计,让爱与美食的气息自由流淌,家人间的互动更加亲密无间。
转角处,开放式衣帽间以镜为媒,巧妙放大空间视觉,每一次换装都成为一场自我发现的旅程。开敞的空间便于融入运动功能,让健康与时尚和谐共存,生活因此更加丰富多彩。
简约自然的元素,在主卧以柔和的渐变方式演化,丰富了房间的质感和特色。在这里,可以尽情享受家的温暖、安宁。
卫生间采用两分离设计,提升使用效率的同时,也确保了空间的私密与整洁。下沉式淋浴区搭配水磨石地砖,简约而不失设计感,营造出清新舒缓的沐浴环境,成为喧嚣日常生活中的完美庇护所。
1.开放式厨房和衣帽间,完美融合现代生活美学。 2.超大储物空间,为日常生活释放出更多自由和便利。 3. 主卧设置内玄关,提升居住舒适度与私密性。

