-
项目定位:
有的人,笔耕不辍,不舍昼夜,只为点亮创意的火花;有的人,匠心入微,精益求精,只为守护对家的深情。在潮流的更迭里,我们怀抱着对理想家居的无限热爱,勇敢前行,拥抱变化,不懈探索。凭借前瞻的设计思维,融合着多元的文化与灵感,用专注与纯粹,勾勒出每一个家的温馨与魅力。
四年磨砺,铺就一条持续进化之路,亦铸就一部奋斗的史诗。在这条道路上,武汉有关设计矢志不渝,执着于对“空间的舒适度、使用者的幸福感”的深切关怀。全新自购办公室的启幕,是对过往成就的嘉奖,更是对未来发展的坚定信念与美好期待。
新岁伊始,我们运用丰富的材料语言和空间设计,巧妙地模糊功能区块的边界,打造一个“简逸、灵动、温润、包容”的复合型空间。这里,不仅是客户灵感碰撞、创意迸发的火花之地,更是员工成长进步、潜能激发的赋能舞台。 -
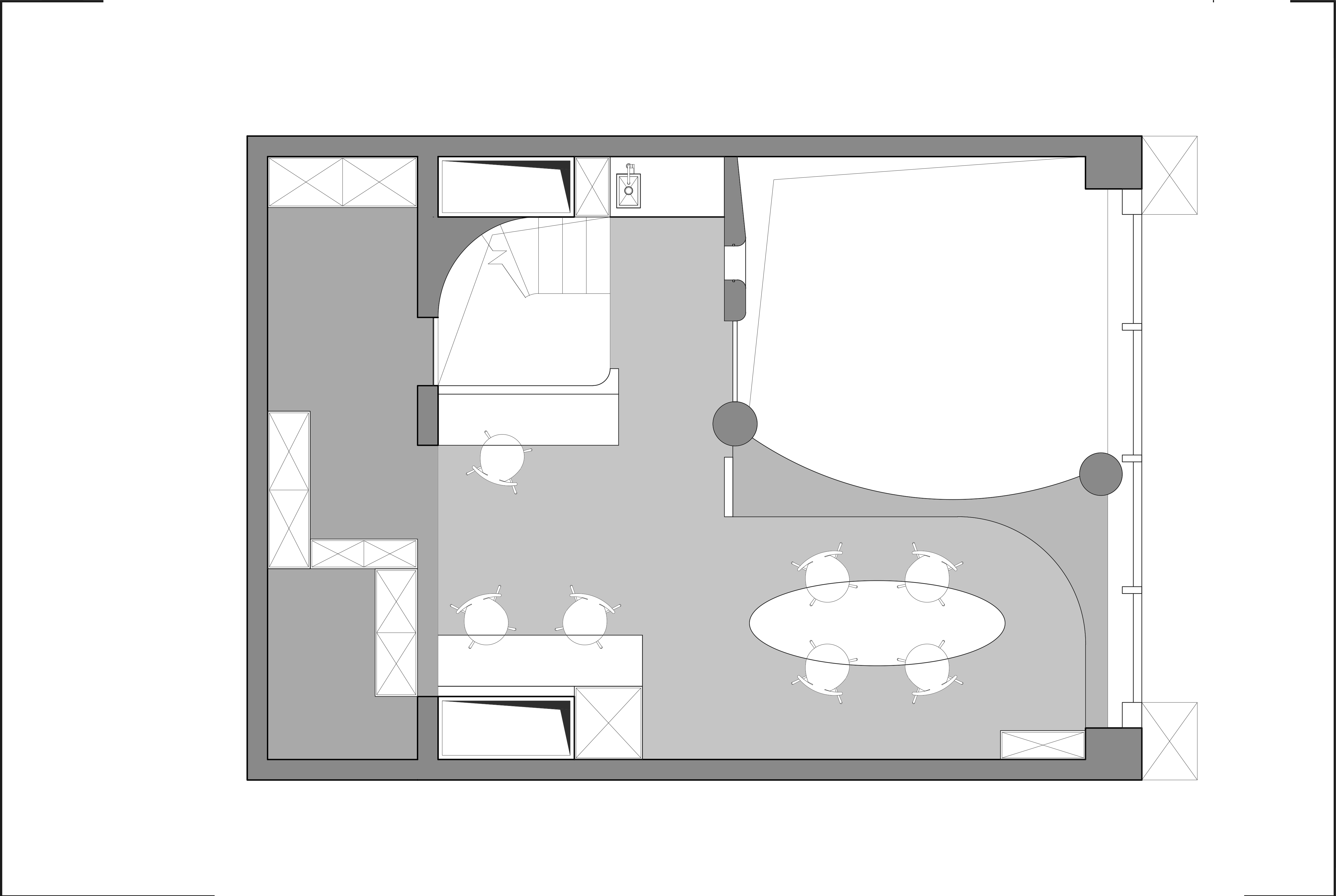
空间意境:窗外就是江景,室内也呼应了波浪的元素
-
空间布局:1.巧妙的运用设计手法,隐形了所有的柱子。
2.错位的设计柱子位置,让视觉上空间灵动感更强。
3.运用较多的弧形手法,和窗外长江的浪花起到呼应,让室内室外可以更好的联动起来。
-
设计选材:墙面大量实用环保涂料,减少板材和石材的使用
-
用户体验:自己以及来往的人对调性和舒适度的认可
虚实相凝,流畅包容,空间仿佛一首悠扬的序曲,引领着思绪的翱翔。水墨雅致的地板简约而不失大气,木纹与金属交织的展示架静默于墙边,诉说着无声的故事。线条柔和的立柱与照壁,让视线和意趣的流动在已知与未知之中,又昭示着空间的设计秩序:以开放代替封闭,以流畅代替静止。
电子壁炉与白色沙发,构成了一处灵动、自由的休憩角落,窗外城市繁华景致与室内的摩登气息交相辉映,工作间隙,临窗而坐,任思绪遨游天地间。在这里,工作不再拘泥于固定的形式,而是鼓励员工释放更多未知的能量与创造力。
半嵌入照壁的石膏灯,巧妙地串联起叙事的起承转合。洽谈区雕塑般的立柱、翻飞的书页以及椭圆形的吊顶,每一处都充满惊喜与趣味。在保留原建筑结构梁的基础上,巧妙地延伸了视觉空间。大面积艺术涂料运用,积淀空间内敛而克制的基调。
选材区,未来感吊灯与自然光相得益彰,营造出既明亮又不失温馨的氛围。大胆的色调碰撞加之不同质感间的对谈,生动展现品牌的精神风貌。单元间独立而自然开合,形成高互动的对话空间,为创新、探索、放松与关系的建立营造写意氛围。
花格隔断巧妙引入光影,成为动线灵巧指引。墨绿、木色、乳白三色台阶分割延伸,每一步都踏着艺术的韵律。极简扶手与隐形门,冷静而克制。科技感吊灯从二楼直垂而下,放大了理智感染的力量,诠释着一种多元、包容的现代意蕴。
二楼的办公空间,蓝、橙、木、黑的撞色设计,既充满活力又不失沉稳。留白的手法赋予了空间更多的呼吸感与想象空间,无论是个人研习或团队协作,皆能各得其所,传递出平等开放的工作氛围。 我们不断探索和创新,旨在让每一个家都充满温暖与故事。我们坚信,设计的力量能够改变生活,让美好近在咫尺。
loft原始图
1F布局
2F布局
0
0

认证 · 让您身份增值
108