SHELL


- 项目类型:住宅公寓
- 项目地点:南京市
- 建筑面积:35.0000㎡
- 项目造价:20.0000万元
- 主案设计师: 吴恒
- 竣工时间:2019-07-17
-
项目定位:1、如何最大化设置储物,且不影响生活动线? 2、如何让三只猫,都有自己的舒适小窝? 3、如何在朋友留宿时,营造贴心的私密感?
-
空间意境:迷你的卫生间,也要布局三式分离; 储物空间扩大至30平,保持空间纯粹感,确保每一寸空间的实用度与舒适感并存。
-
空间布局:在空间有限的情况下,也极力实现了卫生间的三式分离;综合活动室,定制的书桌保障了基础使用功能, 地台设计可以储物,也可以当作临时客卧,夜晚拉上窗帘,书房又化身为家庭影院。
-
设计选材:采光窗成了猫咪最喜欢的角落,通电后玻璃会雾化为白色,透光的同时也能保障隐私。
-
用户体验:非常满意,介绍了很多朋友
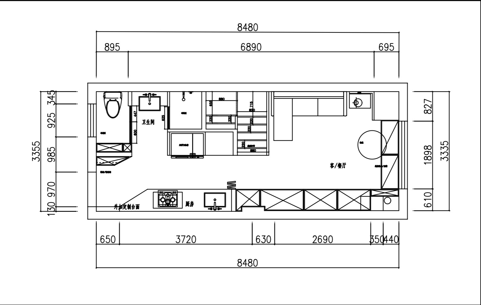
玄关柜做了切面处理,使得空间不显拥堵,地面用瓷砖进行功能分区,减少将灰尘带入室内。 玄关柜足够储存日常要换穿的鞋子,中部镂空可以随手放置小物,或者做收藏展示;底部镂空方便回家时换穿舒适的拖鞋。
原本厨房的烟道在最南边,但为了实现动静分区,还是把厨房设置在门厅位置。 距离太长,会影响排烟功率,于是想办法在中间增强电机,风力达到原来的两倍之多,很好地解决了油烟排放问题。
厨房做足了吊柜和地柜,收纳绰绰有余;空间层高有限,双色橱柜门可以缓解压抑感。 台盆区的墙面增加了一组挂勾,最大化地保持台面洁净,日常拿取也非常方便。
在空间有限的情况下,也极力实现了卫生间的三式分离,即使三人同时使用,也能互不干扰,生活更加从容有序。 洗手台外置,利用镜柜和台盆柜保障日常收纳,柜体底部镂空减少了卫生死角。
淋浴房利用楼梯下方的畸零空间做了一组壁龛,解决了洗漱用品置放。
大面积的白色墙面和原木色地板,让空间视觉感得到释放,客厅采光充足,室内运用排布有序的顶灯增加光源。 布置一组深空灰沙发床,必要时可以拉出来让朋友留宿。
电视柜不仅收纳力爆表,内里亦是大有千秋,给三只猫做了三个联排别墅,一楼放置猫砂,设置了亚克力门板,进出自如,可以阻挡猫砂被刨出来; 二楼休息睡觉,可以随时欣赏它们的倩影。
电视柜靠阳台一侧做了开放格,可以放置喜欢的书籍和摆件,偶尔借着阳光阅读片刻,或放空思绪。
电视左边的两扇柜门里,隐藏着洗衣机和烘干机,让空间随时保持着视觉的统一性,便捷度也丝毫不打折。
阳台卡座下都是收纳空间,这里可以是书桌,也可以是餐桌,多功能使用。
卡座上方的吊顶做了钢化玻璃,一方面解决层高不足,延伸视觉上的通透感;另一方面是增加采光,部分光源会从楼上映射到楼下。
楼梯做了隐藏灯带,生活的细节仪式感,很有必要。选择透光性最好的玻璃栏杆,保持空间通透度。
楼梯下方的空间也没有浪费,做了小型的杂物间,解决了不太常用的物品存储问题。
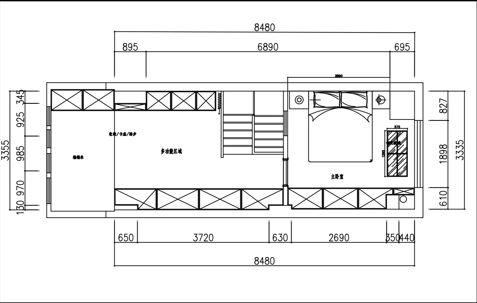
二楼又是另一番天地,在卧室的墙面上,增设了一面采光窗,保持空间的通透感。
二楼延着卧室内外,做了一整排储物柜,让小户型也能拥有豪华衣帽间。 靠卧室门外,设置了一组镂空格,放上自己喜欢的摆件,给平凡的日子增加闪光点。
卧室
卧室是放松身心的空间,应当保持极尽的纯粹感,背景上面做了一个小小的圆弧处理,把空调的管线包裹进去隐藏了起来。 床背板是现场定制的,贴了木饰面,两侧运用隔板当作床头柜,简单的空间感也能兼顾实用性。
采光窗成了猫咪最喜欢的角落
通电后玻璃会雾化为白色,透光的同时也能保障隐私。 造型别致的线条感吊灯,给空间带来一丝灵动。
二楼整体空间隔而不断,两面的采光相互补充,白色柜门还有些许反光作用,扩大空间视觉。
二楼的另一个区域,是综合活动室,定制的书桌保障了基础使用功能。 地台设计可以储物,也可以当作临时客卧。 朋友来访时,可以一起喝茶聊天,平日里可以当作健身角。
夜晚拉上窗帘,书房又化身为家庭影院,把这个多功能角落发挥得淋漓尽致。
过道
家人或朋友来留宿时,把过道中间的隐形门拉开,就轻松变成了小两室。 平时收折起来,不占用空间,还能保障通风采光。
二楼
一楼

