尘光
304
作品说明
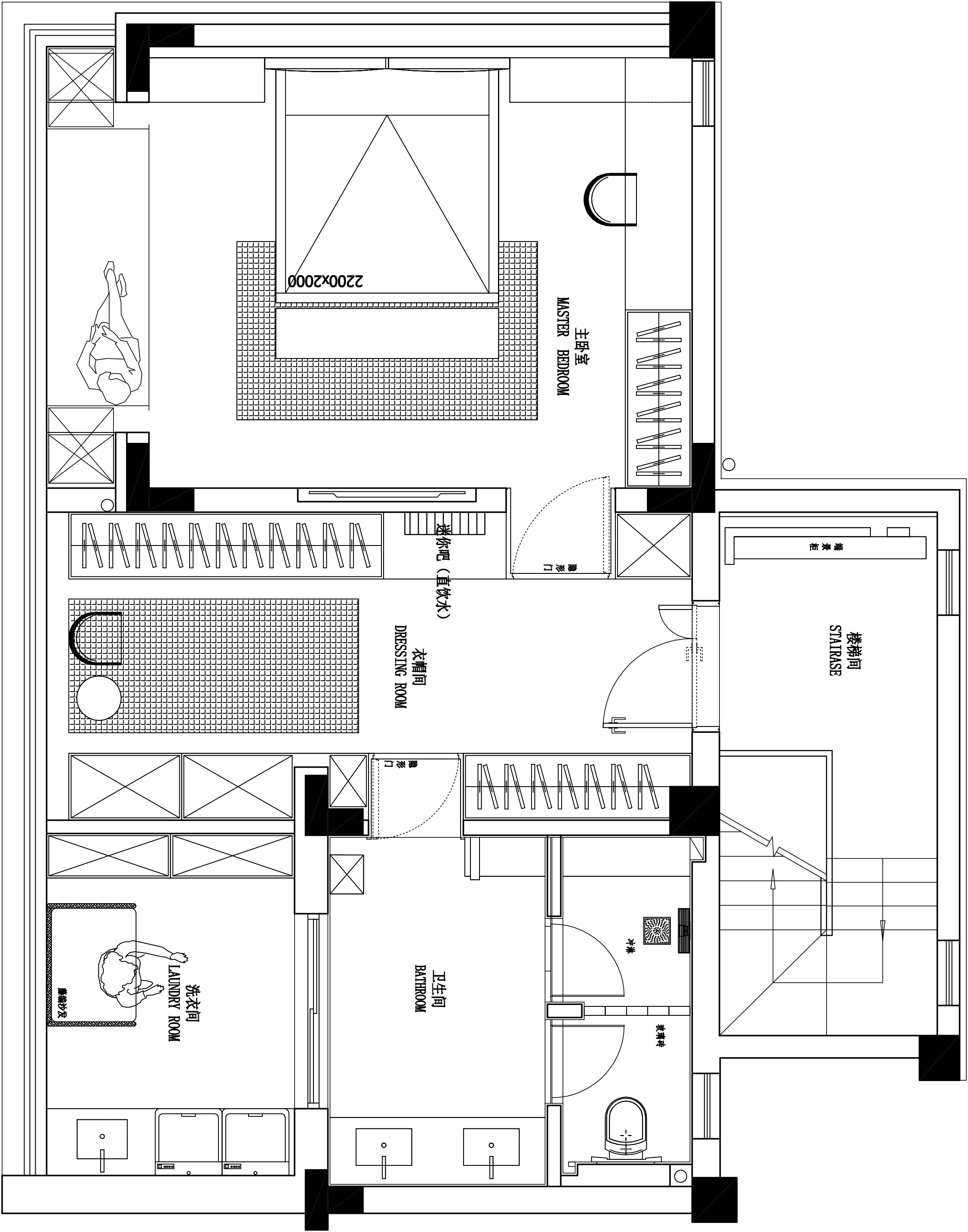
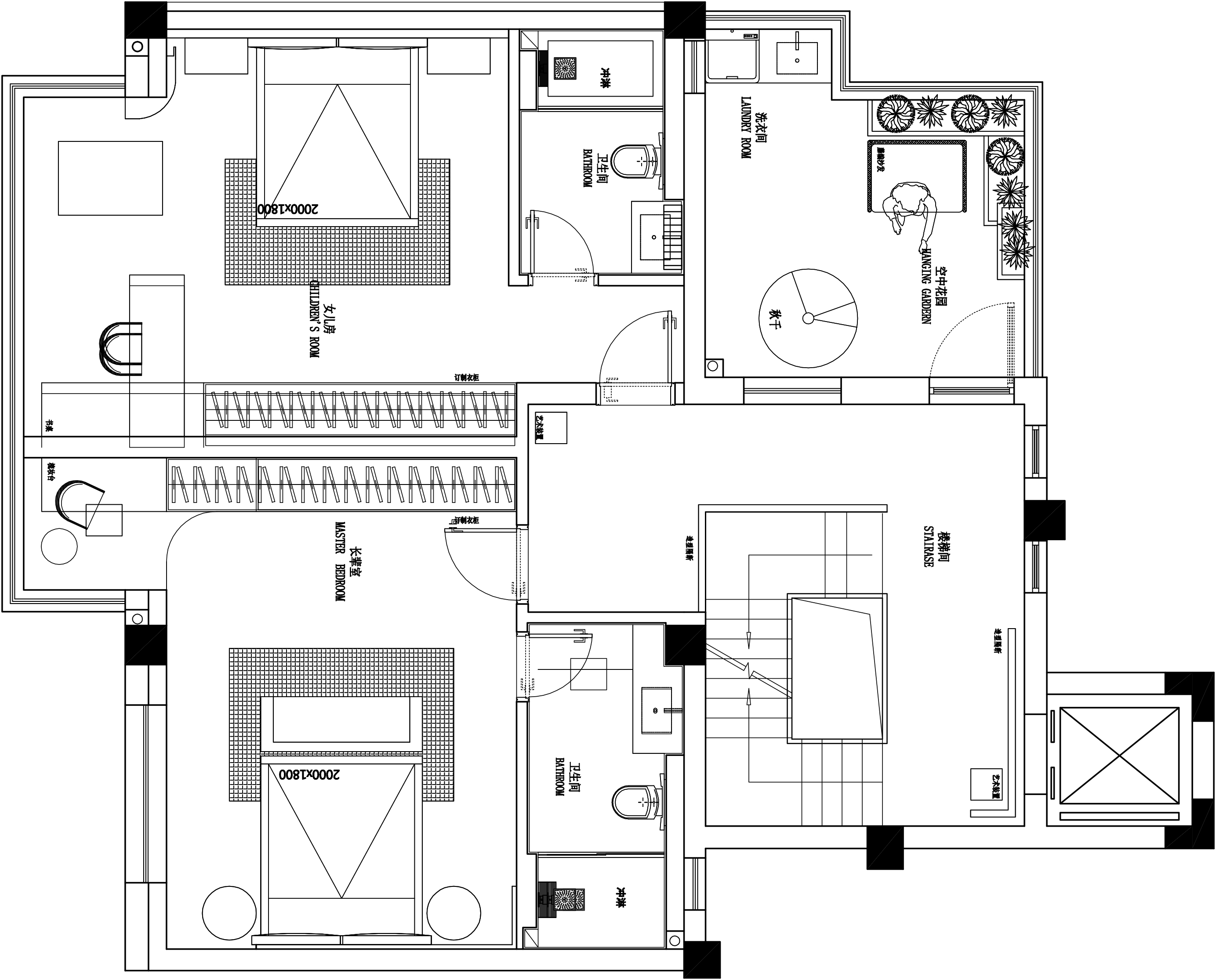
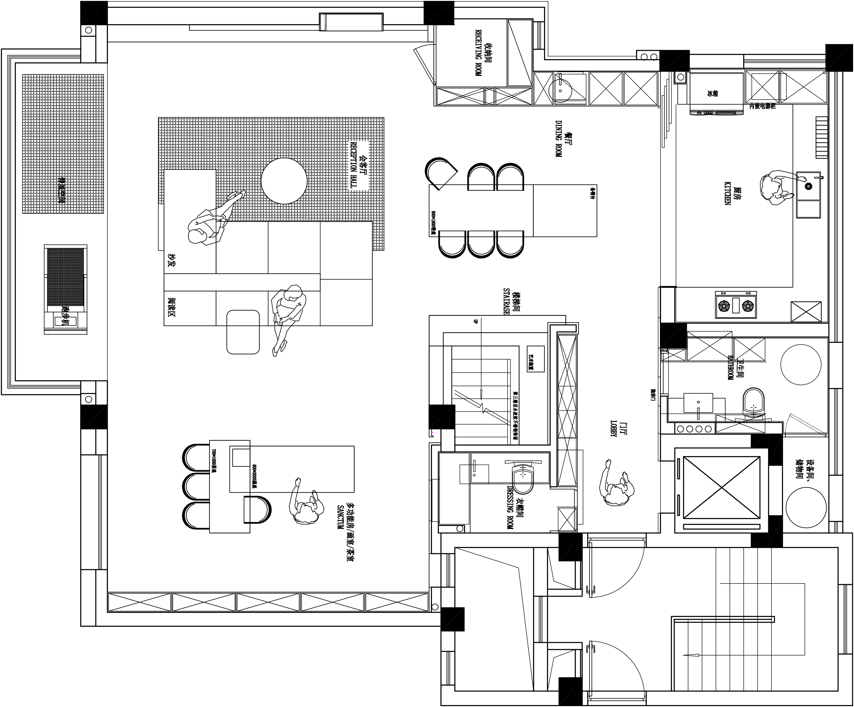
- 项目类型:别墅
- 项目地点:扬州市
- 建筑面积:360.0000㎡
- 项目造价:120.0000万元
- 主案设计师: 吴恒
- 参与设计师:金梦 任铭
- 竣工时间:2023年4月
- 设计机构:無一内建筑设计事务所
-
项目定位:打开空间,让阳光住进来
创造无与伦比的通透性,让每个空间都有所关联,在熟悉的环境里捕捉光的形状,衍生想象中的美。 -
空间意境:艺术是一种可以让生活有序的形式,思考本质延展空间形状,光影流连,自在如风。无论连榻而坐,还是窗边漫步,空间打破人们对客厅的固有印象,它是立体且温柔的,每一面都是另一种体验。
-
空间布局:生活集中在这一个空间里,健身、品茶、分享、阅读…可以同时发生,无界的动线连接客厅区和餐厅区之间的联系,动与静的元素和谐共处。
-
设计选材:简单的色彩,漆上同样温柔的墙面,尽可能地将情感与诗意,囊括于游走的阳光、分明的结构中,当时间不断变化,但保留着本质的属性与意义。
-
用户体验:圆、纹理与白色,将自然感的材料与场景汇集到一起,装饰值降至最低,极简的基因即刻显性,毫无束缚的空间,给予日常极大的自由感。
0
0

认证 · 让您身份增值