绿野仙踪
334
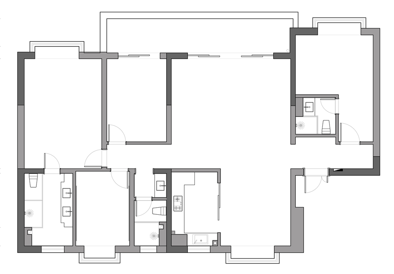
作品说明
- 项目类型:住宅公寓
- 项目地点:南京市
- 建筑面积:180.0000㎡
- 项目造价:80.0000万元
- 主案设计师: 吴恒
- 竣工时间:2023年10月
- 设计机构:無一内建筑设计事务所
-
项目定位:精致/自律/有趣的
美妆/美食/美女博主
两个有趣的灵魂
两只慵懒的小猫咪
用另类的视角观察
光线滤过每一个角落
时间让美轮番演变 -
空间意境:欢迎参观小象的新家,人们往往在自由、快活、轻松的感受中,才能营造出令旁人也能感受到幸福的生活。空间大面积的奶茶色为基调,搭配多巴胺的色彩,快乐由心而生。
-
空间布局:餐客厨完全打开,并连接阳台,中间由衣帽间、家政间和多功能书房过渡,最里到达卧室,将飘窗改造为小象的梳妆台,充分照顾到了一家人的生活、工作、爱好、玩乐等场景。
-
设计选材:石材与艺术漆有机的融合,营造了摩登和优雅的感觉,混搭两杯咖啡,随性发挥美食的造诣。
-
用户体验:《一天吃什么》,小象的治愈系VLOG,将在这里永久续更。
0
0

认证 · 让您身份增值