-
项目定位:打造「复古肌理与现代生活共生的雅致中古风空间」,以经典复古美学为基底,融合居住的功能性,拒绝刻板风格堆砌,通过复古材质、温润色彩与简约线条的平衡搭配,营造兼具时光质感、实用功能与舒适体验的个性化居住氛围,适配追求审美格调与生活烟火气的中高端居住人群,实现复古美学的现代落地与本土宜居的深度适配。
-
空间意境:本次中古风设计以南昌本土宜居需求为核心锚点,打破传统中古风的刻板风格堆砌与厚重色调局限,将经典中古肌理、复古材质与现代人性化收纳、智能家电适配设计深度融合,结合南方气候优化空间通风防潮布局与家庭生活动线,同时以弧形柔化工艺中和风格硬朗感,搭配45°斜切无孔安装、海棠角等精工细节升级复古材质拼接质感,创新融入低饱和奶油调、莫兰迪调打造轻复古柔中古的温润氛围,针对精装房改造更采用局部材质焕新+软装复古赋能的轻改策略,在兼顾性价比与风格完整性的基础上,实现中古风美学的现代落地、本土适配与精工质感的三重创新,让复古空间兼具时光韵味与当代生活的实用性、舒适性。
-
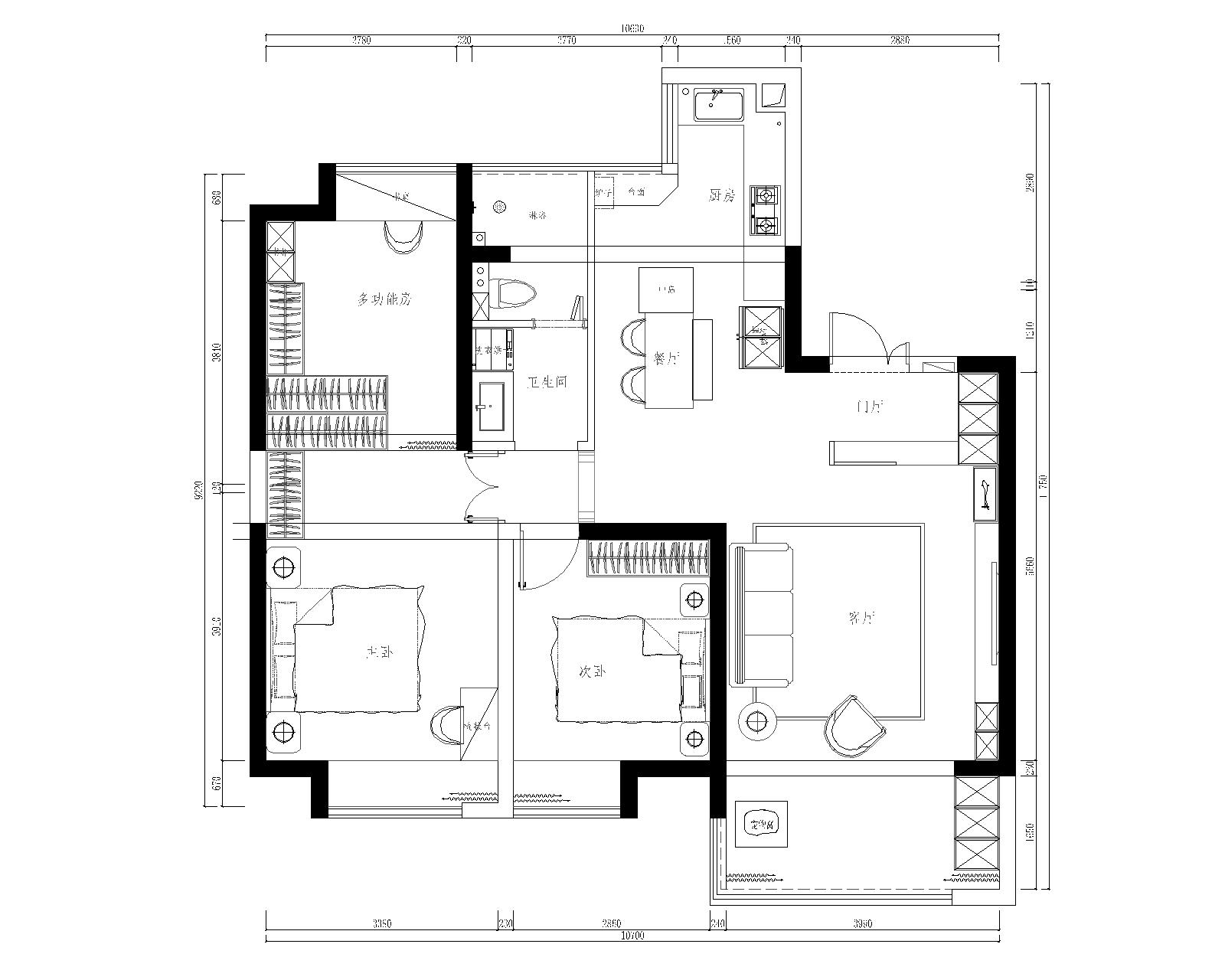
空间布局:平面上,北面阳台扩进厨房,和卫生间,厨房橱柜增加,考虑中岛和餐桌结合,整个厨房餐厅融合在一起,平常做饭少,不用考虑烹饪油烟问题,卫生间解决了洗衣问题,原有南阳台跟客户打通,作为后期健身区域和金毛狗狗的生活区,入户进门单独做个玄关隔断,解决隐私风水等问题,主卧打通北面房间,北面房间作为多功能房作用,衣帽间兼书房。南面中间房间还是考虑客房功能。
-
设计选材:在低碳与经济型层面的创新,核心是用“旧物再生+低成本复刻+简约施工”替代昂贵的复古原品与复杂造型,以环保理念降低装修成本,同时保留复古格调。
-
用户体验:低成本出效果”的高性价比,既营造出浓郁的复古氛围感,大幅降低了装修预算。
0
0

认证 · 让您身份增值
164