东汇·后海18栋1702
102
作品说明
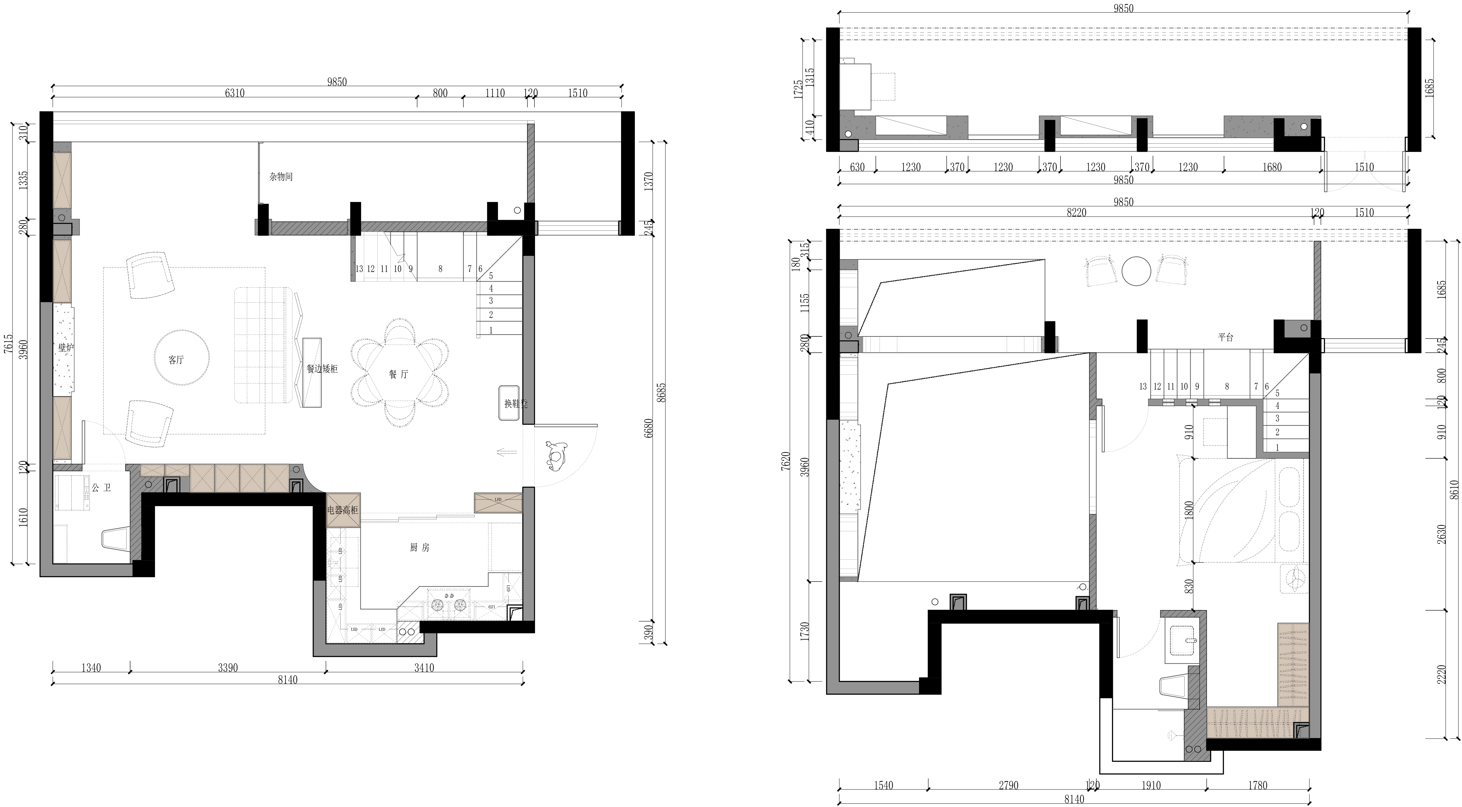
- 项目类型:住宅公寓
- 项目地点:南昌市
- 建筑面积:73㎡
- 项目造价:30万元
- 主案设计师: 袁达
- 竣工时间:2025
-
项目定位:法式公寓的设计定位是以浪漫优雅的法式美学为基底,融合现代居住的实用主义,打造兼具复古精致感与舒适烟火气的都市居住空间,适配中小户型公寓。
-
空间意境:剥离传统法式的繁复堆砌感,在保留浪漫优雅内核的基础上,通过材质轻量化、功能复合化、风格跨界化实现与现代生活的适配升级。
-
空间布局:本空间需兼顾居住与工作室双重功能,特别强调作为心理相关领域工作室的温馨、文艺氛围营造。考虑到博主身份,需规划一专区用于知识分享与好物推荐的直播活动。空间需满足两人常住需求,并需融入以下关键区域:
温馨工作室区:旨在创造一个既适合进行心理咨询等专业活动,又富有文艺气息的工作环境,以促进创意与灵感的流动。
多功能直播区:配备适宜直播的设备与布局,确保良好的视听效果,便于博主进行高质量的知识分享与产品推荐直播。
舒适观影区:设计一个温馨舒适的角落,配备大屏幕或投影仪,为居住者提供沉浸式的观影体验。
静谧阅读区:设立一个光线充足、环境安静的阅读角落,鼓励深度阅读与思考,为居住和工作提供知识与灵感的源泉。
健身区:规划一个配备基本健身器材或瑜伽垫的健身区域,确保居住者能在忙碌的工作与生活中保持身体健康,提升生活质量。
本设计 -
设计选材:法式公寓选材的低碳与经济性,核心在于以轻量化、本土化、可复用的材料替代传统法式的厚重高耗主材,简化施工流程并降低全生命周期成本。优先选用再生石膏制作的细窄石膏线,替代传统雕花石膏构件,大幅减少人工与材料浪费;家具选择模块化的实木贴皮款,而非纯实木,保留法式复古质感的同时,减少原木砍伐,整体选材既契合低碳环保理念,又能有效控制装修预算,实现颜值与性价比的平衡。
-
用户体验:在美学质感、居住舒适度、实用适配性、低碳经济性四个方面兼具浪漫氛围与现代生活的便捷性。用柔和的奶油色系、简约石膏线、弧形门洞等元素营造优雅复古的居住氛围,自带高级仪式感。
0
0

认证 · 让您身份增值