-
项目定位:打造京都风格的高端日式烧鸟居酒屋,以日本传统居酒屋的文化底蕴为核心,融合现代餐饮的功能需求,瞄准中高端消费群体,营造兼具沉浸式日式氛围与舒适消费体验的餐饮空间,成为城市中还原日式“深夜食堂”温暖内核的高端日料消费地标。
-
空间意境:摒弃日式元素的符号化堆砌,创新打造**“一步一景”的沉浸式京都居酒屋场景**:入口廊道复刻日式街巷的幽深意境,内堂融合开放式吧台的烟火气与榻榻米卡座的闲适感,通过浮世绘、武士画作、日式灯笼等细节,结合暖调光影与自然绿植,让传统日式文化与现代餐饮场景深度融合,而非简单的风格复刻。
-
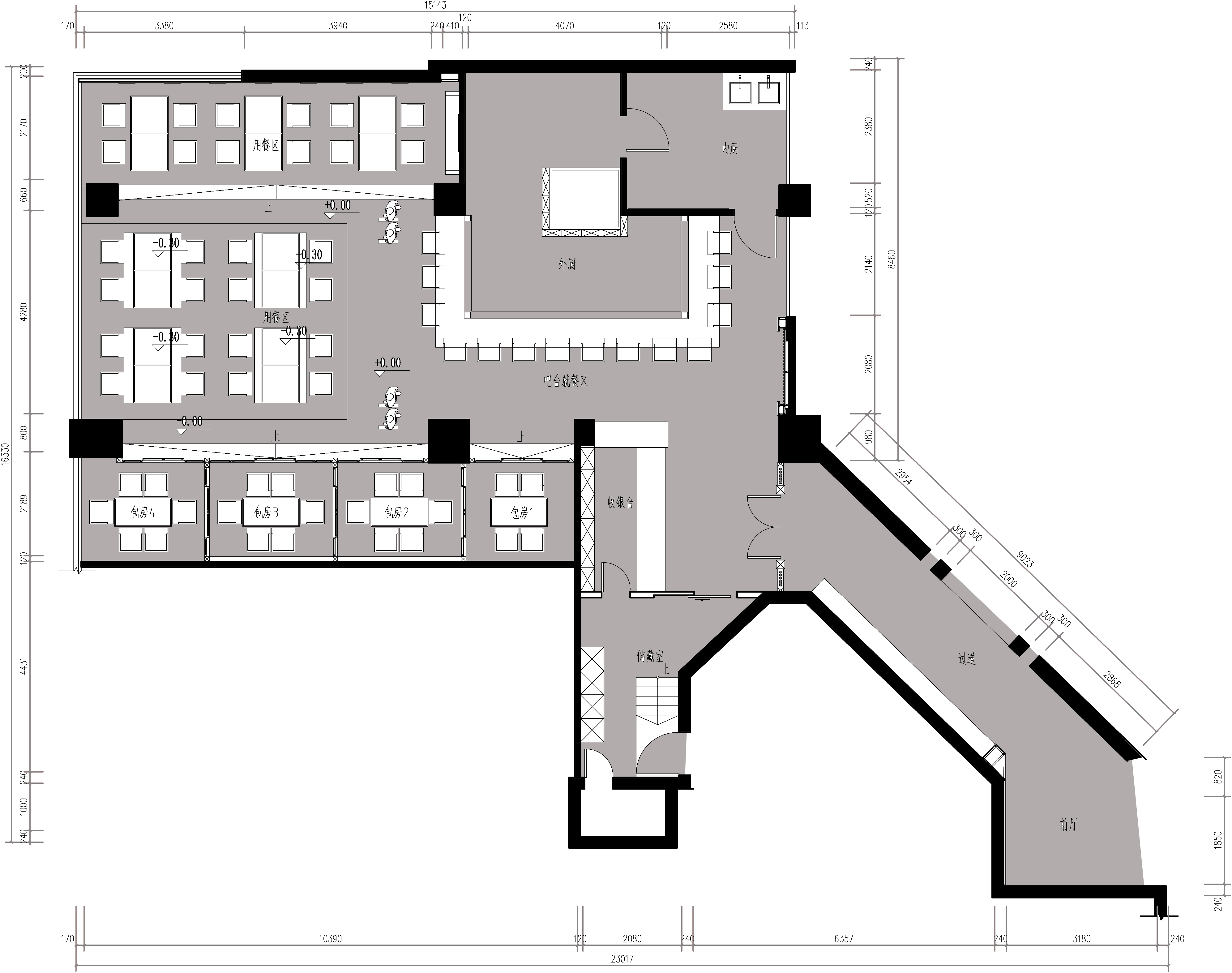
空间布局:以日式礼序为动线脉络,现代餐饮需求为功能核心创新布局:入口以狭长廊道作为过渡空间,营造“闹中取静”的进入感;内堂采用“开放式吧台+围合式卡座+榻榻米散座”的复合布局,吧台直面料理区强化互动性,卡座与包间以灵活隔断适配不同消费场景,同时将储物、操作区隐蔽设计,兼顾空间美感与运营效率。
-
设计选材:秉持低碳环保、质感优先、经济耐用的选材原则:核心选用天然实木、竹编等可再生环保材质,减少化工合成材料的使用;地面采用水磨石与实木地板拼接,兼顾餐饮空间的耐磨易清洁需求,降低后期维护成本;局部以石材、纸艺作为点缀,以低成本的传统工艺替代昂贵装饰,实现日式质感与经济实用性的平衡。
-
用户体验:作品投入使用后,用户反馈空间兼具文化沉浸感与消费舒适度:日式廊道与细节营造的文化氛围,让顾客获得沉浸式的京都居酒屋体验;开放式吧台的互动性、灵活的座位布局,满足朋友小聚、商务宴请等不同需求;天然材质与暖调灯光的搭配,让用餐环境更具温度,用户评价该空间既还原了日式居酒屋的烟火气,又契合现代高端消费的体验需求。
本项目为日式烧鸟居酒屋设计,以日本京都居酒屋的传统底蕴为核心,融合现代餐饮空间的实用需求,摒弃符号化的日式元素堆砌,通过空间层次、材质肌理与文化细节的营造,打造兼具沉浸式日式氛围与舒适消费体验的餐饮空间,还原居酒屋“深夜食堂”的温暖内核,同时契合高端消费群体对用餐环境的审美与功能需求。
一步一景的日式礼序 入口以狭长的廊道作为过渡空间,两侧木质竖条格栅搭配石制灯笼摆件,结合嵌入式灯光的光影层次,营造出日式街巷的幽深意境,让顾客从踏入空间开始,便逐渐脱离外界的喧嚣;廊道尽头以格栅门与透光屏风界定前厅与内堂,形成“隔而不断”的视觉关联,既保留日式空间的含蓄感,又实现动线的自然引导;内堂采用开放式吧台与围合式卡座结合的布局,中央散座区以榻榻米抬高设计强化日式体验,吧台直面料理区的设计则拉近顾客与厨师的距离,契合居酒屋的互动性与烟火气。
自然肌理的日式质感 材质选择以天然实木为核心,墙面、隔断、家具均采用温润的原木材质,搭配碳化木、竹编等传统日式工艺,还原京都居酒屋的质朴质感;地面选用水磨石与实木地板拼接,既兼顾餐饮空间的耐磨易清洁需求,又通过材质对比丰富空间层次;局部以石材(吧台台面)、纸艺(灯笼、屏风)作为点缀,石材的冷硬与纸艺的柔婉形成平衡,让空间在自然肌理中兼具实用与美感。
光影与细节的文化表达 灯光设计以暖调柔光为主,嵌入式筒灯提供基础照明,竹编吊灯、纸灯笼与墙面背光装置营造出温馨慵懒的氛围,契合居酒屋的休闲属性;软装细节融入大量日式文化符号:墙面的浮世绘、武士主题画作,空间中的日式酒招、书法卷轴,以及餐具、摆件的和风设计,均在细节处强化日式居酒屋的文化氛围;同时以绿植(枯山水式盆栽、大型绿植)点缀空间,为厚重的木质肌理注入自然生机,平衡日式空间的沉稳感。
传统与现代的融合 在保留日式居酒屋传统体验的基础上,兼顾现代餐饮的功能需求:吧台区设置专业的烧鸟料理台与酒水区,满足现点现做的餐饮模式;卡座与包间采用灵活的隔断设计,可根据用餐人数调整空间大小,适配朋友小聚、商务宴请等不同消费场景;储物空间与操作区进行隐蔽式设计,既保证空间的整洁度,又提升后厨的工作效率,让传统日式氛围与现代餐饮运营需求完美适配。
平面图
0
0

认证 · 让您身份增值
281