蝶庄·花未眠民宿
361 - 项目类型:酒店
- 项目地点:贵阳市
- 建筑面积:800㎡
- 项目造价:160万元
- 主案设计师: 李雄明
- 参与设计师:李小勇
- 竣工时间:2025
- 设计机构:贵阳市建筑设计院
-
项目定位:贵州西江千户苗寨地域文化为核,打造“文化沉浸式轻奢旅居民宿”,跳出苗寨传统民宿同质化模式,成为区域高端民宿标杆,实现在地文化与现代旅居的深度融合。
-
空间意境:空间场景上提取喀斯特溶洞肌理与苗族文化意象,将洞穴野趣、苗寨烟火气和现代轻奢风结合,打造熔岩洞穴公共区、苗韵亲子区等差异化场景,拒绝符号化堆砌地域元素。
-
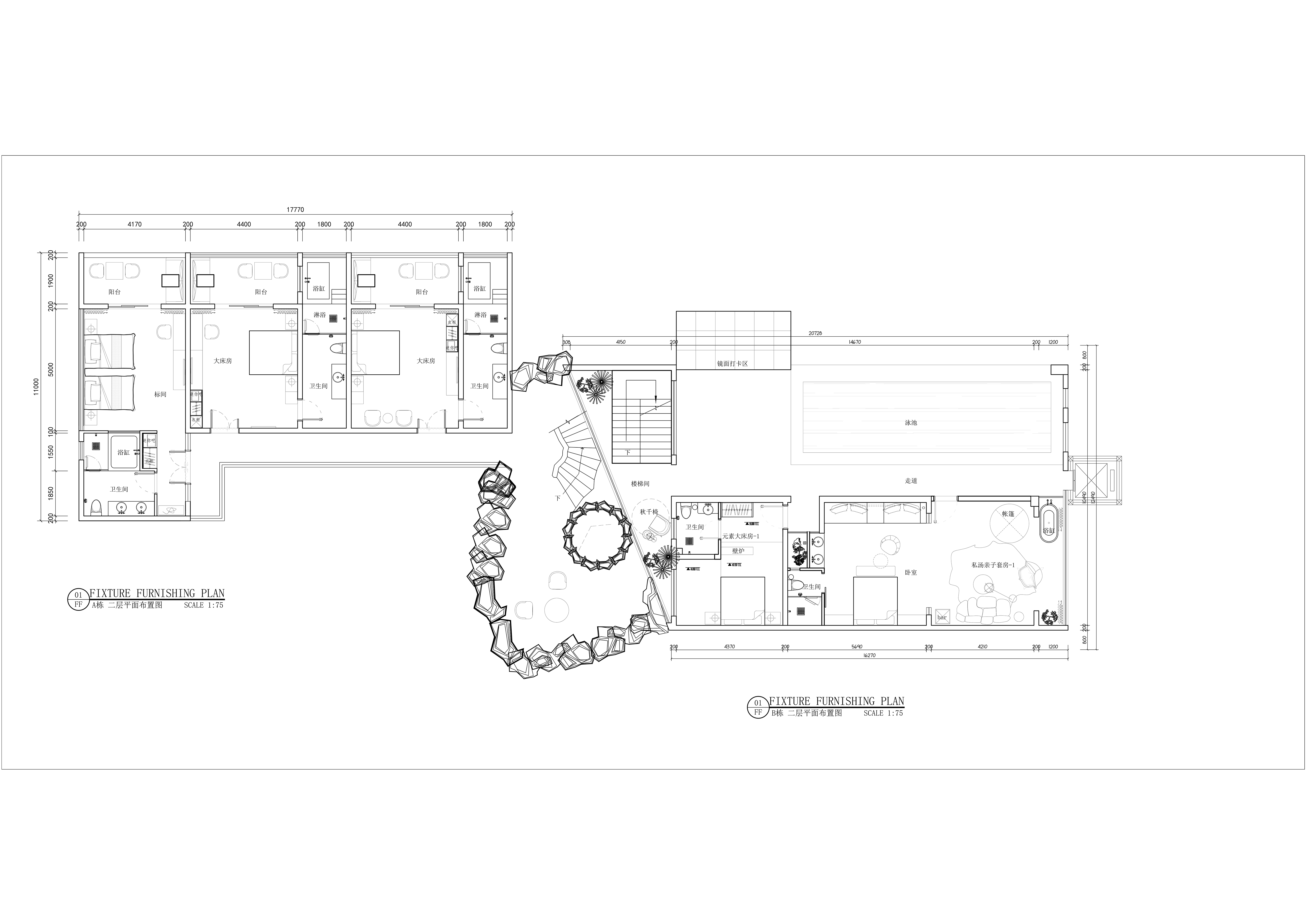
空间布局:空间布局依托苗寨层叠地势做错落式布局,制高点设无边界泳池衔接山水苗寨景观,客房与餐饮区均以全景视野为核心,实现“一步一景”的沉浸式空间体验。
-
设计选材:优先选用苗寨原生木材、夯土、青瓦等本地材料,减少运输碳排放;洞穴肌理墙面采用手工塑形工艺替代高端石材,降低成本的同时保留地域质感,软装融入苗绣、蜡染布艺等非遗手作,兼具低碳与文化价值。
-
用户体验:投入使用后成为苗寨网红打卡地,游客反馈能沉浸式感受苗寨文化与自然景观,亲子家庭认可童趣空间的安全性与趣味性,高端客群对全景客房与定制化服务满意度高,全网好评率超95%。
蝶庄·花末眠民宿坐落于贵州西江千户苗寨核心观景带,以“地域文化共生+当代旅居体验”为设计内核,将苗族原生文化肌理、喀斯特地貌的洞穴特质与现代轻奢旅居需求深度融合,打造出兼具在地性与先锋性的民宿产品,成为苗寨高端民宿市场的标杆之作。
立足西江千户苗寨“山水苗寨、吊脚木楼”的地域基底,以“自然生长、文化新生”为核心,摒弃对苗族元素的符号化堆砌,转而提取苗寨的空间肌理(吊脚楼的层叠感、梯田的错落感)、材质基因(原生木材、夯土、青瓦)与文化意象(铜鼓、图腾、自然崇拜),与现代设计手法结合,实现“在地文化的当代转译”,让游客在旅居中沉浸式感知苗寨的自然与人文魅力。
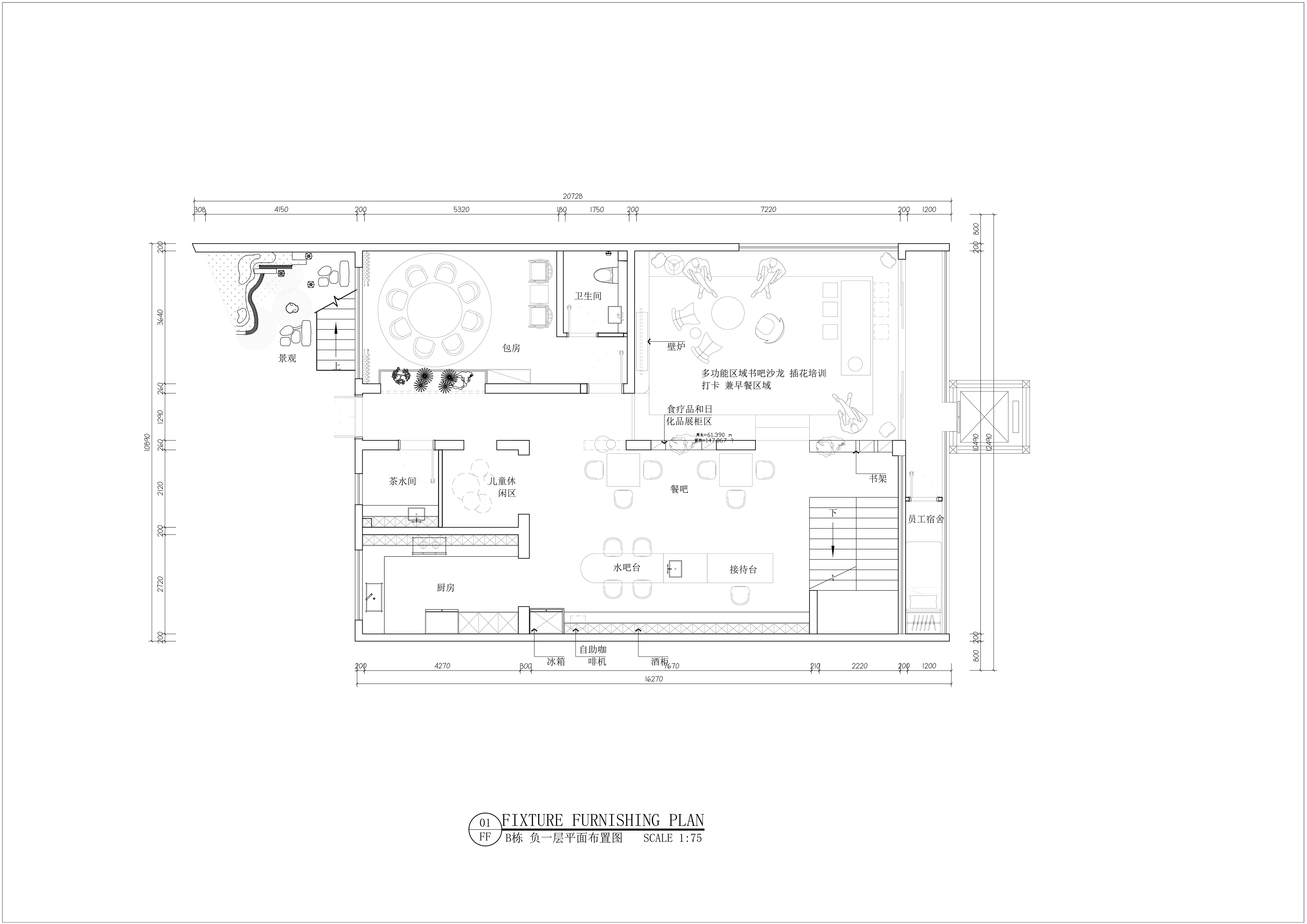
精致体验与地域风味的结合,以苗寨“吊脚楼半架空”的空间形式为灵感,打造错落式的用餐区,大面积落地窗直面苗寨山景;餐食上融合苗族特色(酸汤、糯米饭、糍粑)与西式精致餐食,餐具选用带有苗绣纹样的陶瓷器皿,让早餐体验兼具视觉与味觉的地域感。
采用原木茶桌搭配藤编座椅,点缀苗族蜡染布艺与本地绿植(三角梅、绣球花),推出以苗寨特产(雷公山银球茶、刺梨、青梅)为基底的创意下午茶,将地域食材与西式甜品工艺结合,打造“苗寨风味的精致下午茶”体验。
喀斯特地貌的艺术化转译,提取贵州喀斯特溶洞的自然形态,打造熔岩洞穴式的公共休闲区。采用手工塑形的肌理墙面模拟溶洞的钟乳石质感,搭配暖调灯光营造出静谧的洞穴氛围;
同时融入苗族火塘文化的设计细节,设置石砌壁炉与原木茶台,将溶洞的野趣与苗寨的烟火气结合,成为民宿的核心打卡点,既呼应贵州的地质特色,又为游客提供独特的休闲体验。
山水苗寨的沉浸式观景载体,泳池选址于民宿制高点,采用“无边界”设计手法,将泳池水面与远处的苗寨群山、吊脚楼群形成视觉衔接,实现“水天一色映苗寨”的效果。
踩着苗寨层叠的地势造景,把无边界泳池悬在半山,让水面接住千户苗寨的灯火,躺进泳池就像浮在苗寨的星河里。
池边以苗寨青瓦与原木搭建休憩平台,夜晚搭配烛光灯带,让游客在游泳、休憩时,沉浸式俯瞰千户苗寨的灯火夜景,成为民宿的标志性景观节点,也为旅拍、打卡提供了绝佳场景。
在西江民宿扎堆比拼“看景视野”的当下,蝶庄·花未眠做的是“造景沉浸式体验”——不是让游客“看苗寨”,而是让游客“住进苗寨的自然与文化里”,把旅居变成一场和苗寨山水、人文的深度对话,这才是西江高端民宿该有的模样。
在西江民宿扎堆比拼“看景视野”的当下,蝶庄·花未眠做的是“造景沉浸式体验”——不是让游客“看苗寨”,而是让游客“住进苗寨的自然与文化里”,把旅居变成一场和苗寨山水、人文的深度对话,这才是西江高端民宿该有的模样。
慢生活的在地化营造,民宿的户外休闲区依托苗寨的层叠地势打造,采用青瓦露台、原木桌椅搭配本地花卉绿植,还原苗寨“晒秋、品茶”的生活场景;
室内休闲区则融合苗族图腾、木雕元素与现代休闲家具,设置书吧、茶歇区,让游客在休闲中触摸苗寨的文化细节,实现“旅居即体验”的设计目标。
自然童趣与地域元素的融合,在亲子空间的设计上,以苗寨的自然生态为灵感,保留原生树木作为空间核心,搭配木质摇摇马、布艺豆袋、民族纹样绘本等设施,弱化商业感,营造出“苗寨里的自然游乐场”。
地面采用防滑石板与木质拼接,既契合苗寨的建筑材质,又兼顾儿童活动的安全性,让亲子家庭在体验苗寨文化的同时,拥有专属的童趣空间。
踏入这片客房天地,仿若闯进了自然与奢享交织的温柔乡。开阔的会客厅以温润的原木与浅米色铺陈基调,层次错落的吊顶藏着柔和的光影,窗外是依山而建的苗寨风光,青山叠翠与吊脚楼群相映成趣。
私汤泡池边烛光摇曳,玫瑰花瓣浮于清透池水中,捧一杯红酒凭窗而坐,白日可看山峦云雾缭绕,夜晚能赏苗寨万家灯火。
童趣满满的小帐篷为孩童打造了专属玩乐角落,软萌玩偶与暖光串灯,让欢声笑语在此肆意绽放。
临窗的阅读角更是治愈,手捧书卷时,苗寨的青瓦木楼成了最美的背景,就连蜿蜒的石洞廊道,也因暖黄烛火与自然肌理,添了几分秘境般的浪漫。在这里,每一处空间都揉进了自然的诗意与旅居的舒适,让身心都能彻底松弛下来。
蝶庄花末眠民宿跳出苗寨传统民宿“同质化复刻吊脚楼”的模式,通过“地域文化的当代转译+多元体验场景的打造”,构建了“文化体验+轻奢旅居”的新型民宿产品形态。其设计既满足了现代游客对个性化、沉浸式旅居的需求,又为苗寨民宿市场提供了“在地性与商业化平衡”的范本,推动西江千户苗寨民宿从“基础住宿”向“文化体验目的地”升级,成为区域民宿市场的引领者。
负二层平面图
负一层平面图
一层平面图
二层平面图
0
0

认证 · 让您身份增值