-
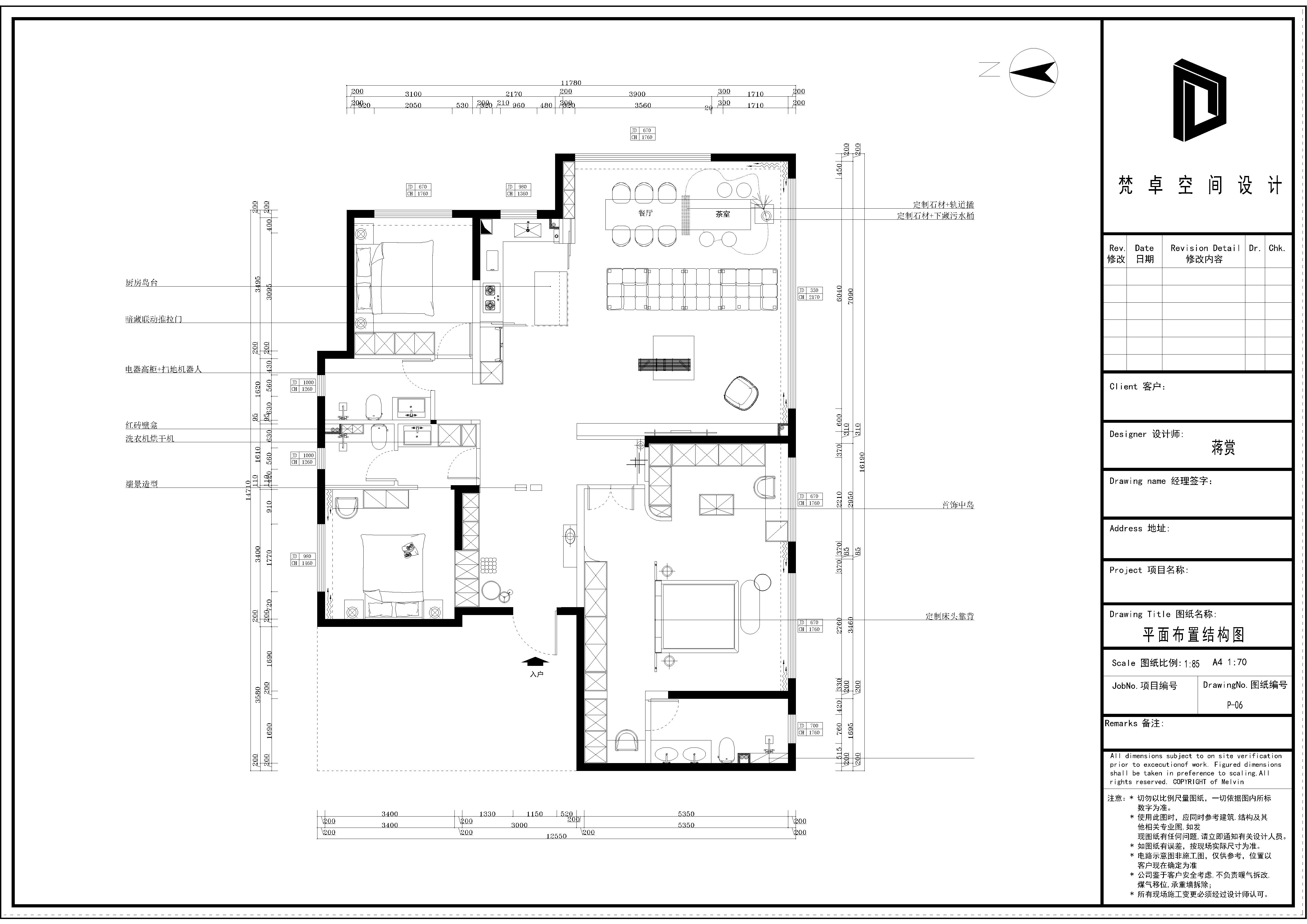
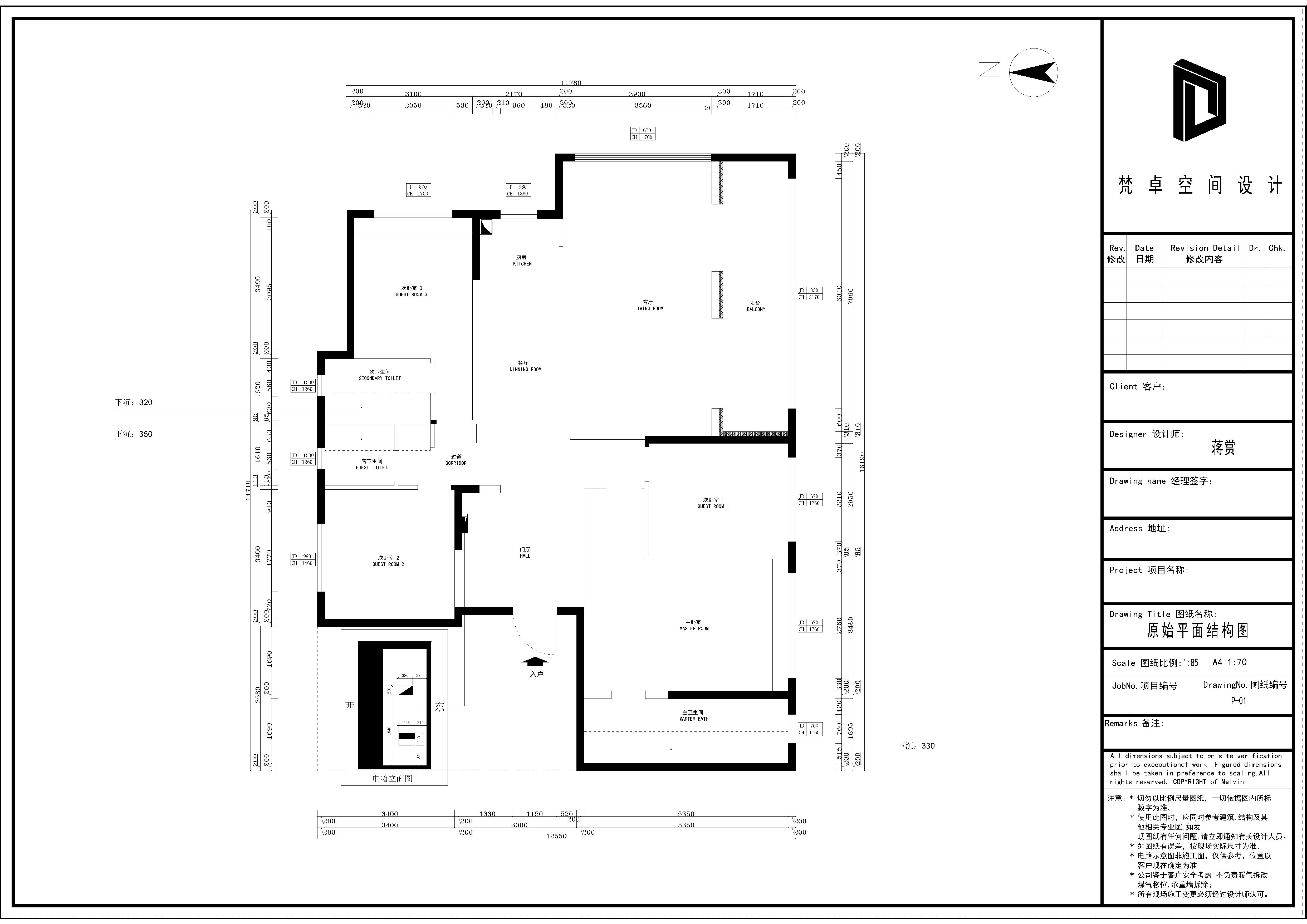
项目定位:本案为一家三口居住,原有四室改做三室,保留一间客房,主卧改做套房,让人一眼看出本案业主对房屋的品味要求;让烦闷的城市生活更有呼吸感
-
空间意境:本案做为意式风格,融合了古典与现代元素,兼具优雅、精致与功能性。注重空间的开放性和通透感,采用开放式布局,将客厅、餐厅、厨房等空间打通,营造出秩序感和稳定感,运用大量的护墙板,并采用全屋智能系统,将传统与现代完美融合
-
空间布局:1、入户门厅比较宽敞,但弊端直对厨房,所以我们在入户中轴线上设置绿植景观,及遮挡了入户视线,又提升整体氛围感2、原有空间没有家政区,把两个次卫生间夹墙外移,增加了洗衣机家政区,又使过道空间方正;3、打通次卧与主卧空间,作为套间形式,封闭原次卧门改用透光石材做主卧室玄关并改做对开门,增加入主卧仪式感,进门用大的圆弧弱化掉阳角处理。4、原有主卧床头背靠卫生间,打通次卧后做男女业主衣柜分类,并把床头朝向窗户,早上电动窗帘打开,阳光洋洋洒洒落在脸上,万分惬意。5、衣帽间留有办公区,并把主卫缩小增加一处女主沐浴后梳妆及次净衣区,刚洗漱完毛孔舒张立刻保湿,更能提升生活品质。6,客餐厨一体,厨房采用暗藏式联动推栏门,岛台一侧洗碗机另一侧采用渐变透光亚克力,使厨房满足各种使用场景,餐桌与茶桌拼接即满足家人聚餐又能饭后惬意茶余;
-
设计选材:除了必要的空间,我们大面积空间还是采用的乳胶漆,用涂料简单的升华空间,即低碳又简洁高级;吊顶增加阴影缝隙及降低开裂风险又增加阴角没关性还能是吊顶不呆板更有呼吸感
-
用户体验:客户满意度极高,落地还原与效果图一模一样,包括软装配饰,已经陆续搬家入住
0
0

认证 · 让您身份增值
159