-
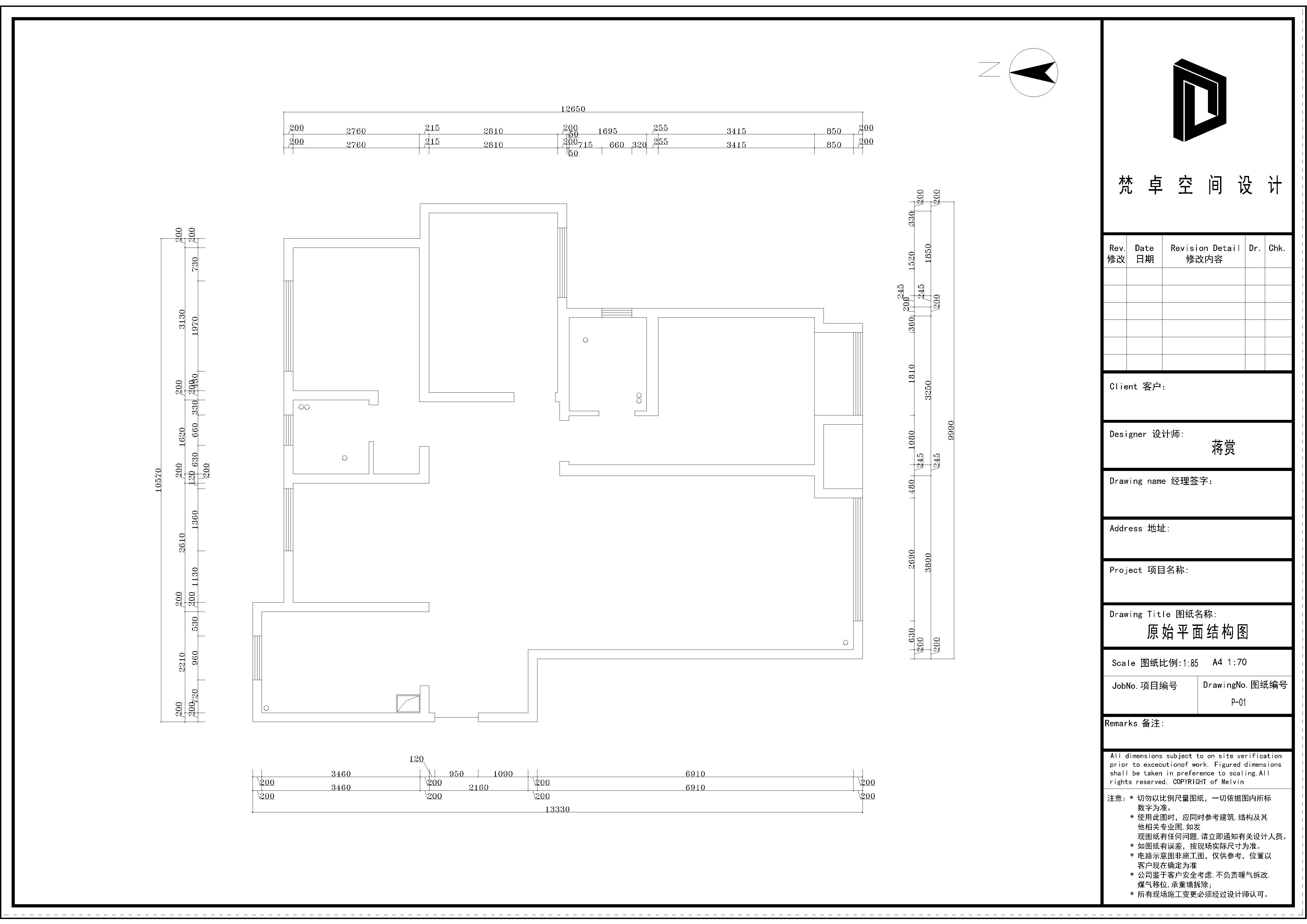
项目定位:三口之家,之前住的是精装房,觉得细节不是很好,这些考虑毛坯装修,从各个细节做到自己独有需求的舒适
-
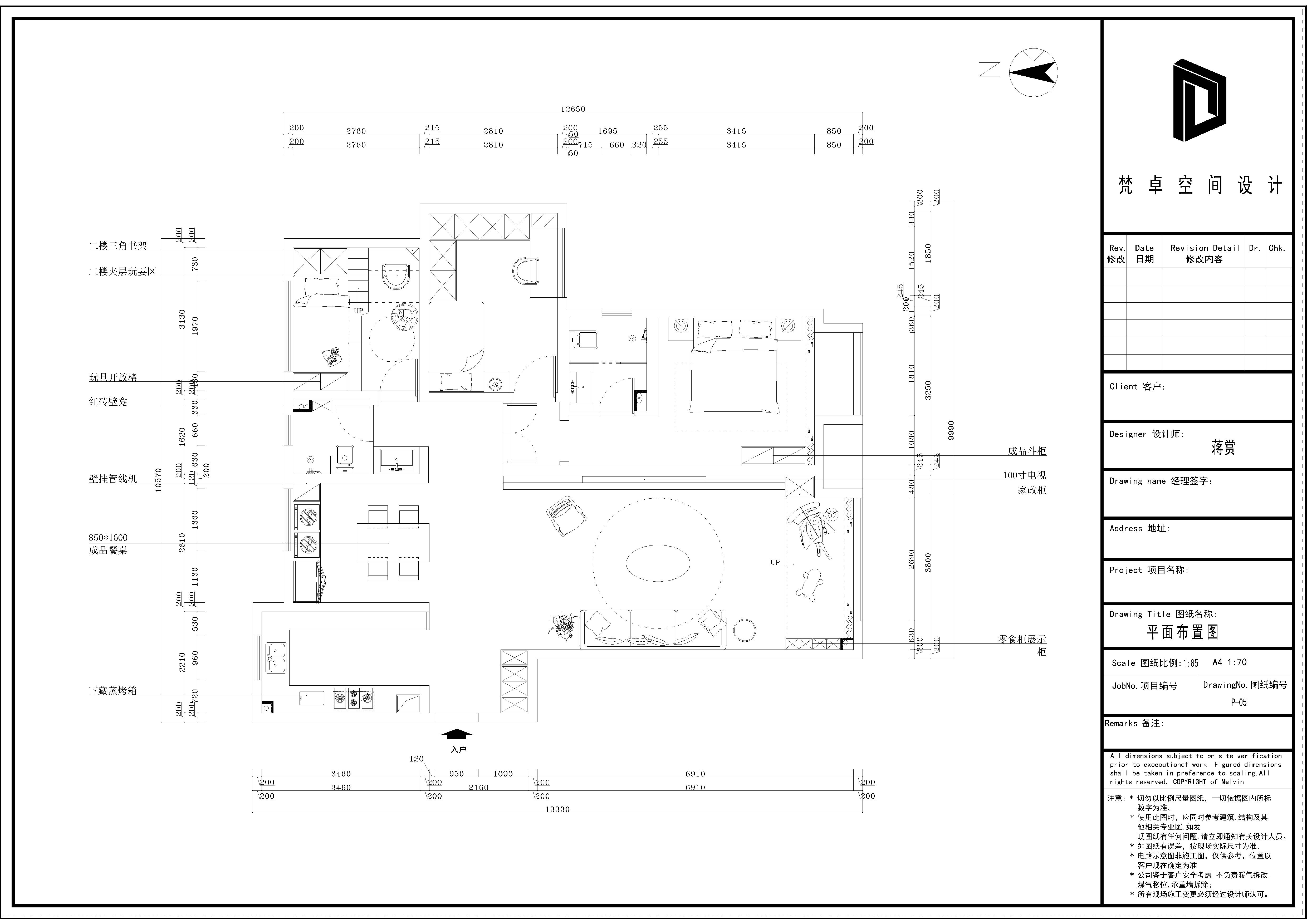
空间意境:摒弃大量复杂造型,用简单的pu线条,角花,小面积的花砖营造氛围感,突出风格特点,地面通铺人字拼木地板,凸显出复古韵味
-
空间布局:三室改为两室,主卧空间门外移做对开门形式,主卧改为套房功能,儿童房搭建二层做树屋父母可在楼梯踏步陪伴玩耍增加亲子互动及童趣,阳台原有位置改做地台,增加空间层次,并带来不一样的亲子互动空间
-
设计选材:除了必要的空间,我们全用的乳胶漆,用涂料简单的升华空间,及低碳又高级
-
用户体验:业主非常满意,软装进场后就搬入新家,而且介绍新客户
0
0

认证 · 让您身份增值
167