暮光回廊
154
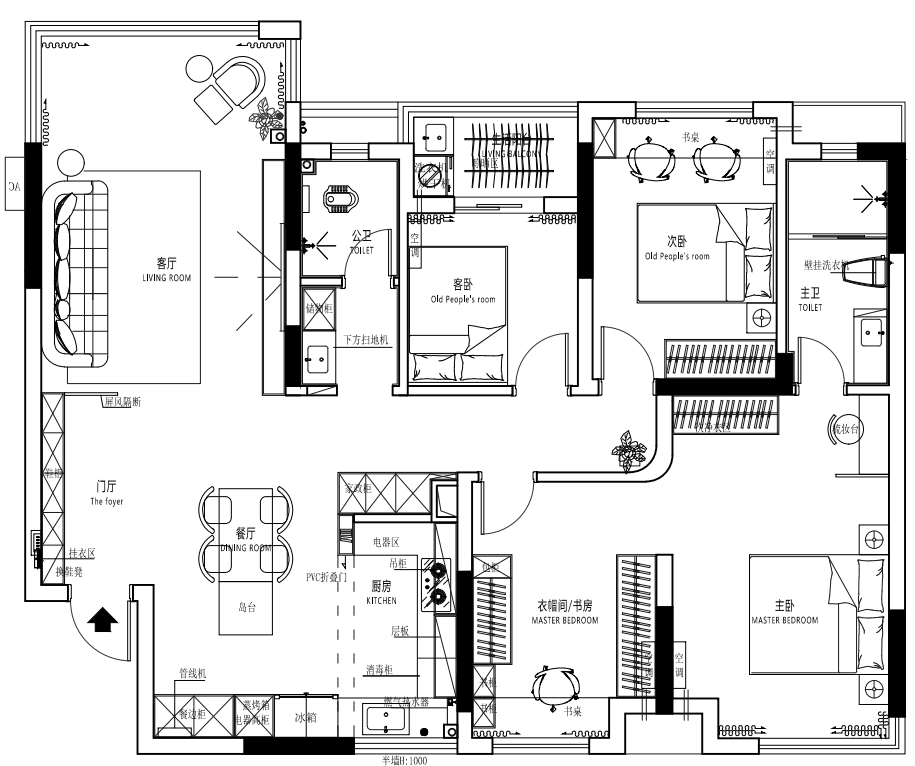
作品说明
- 项目类型:住宅公寓
- 项目地点:桂林市
- 建筑面积:123㎡
- 项目造价:35万元
- 主案设计师: 陈诗密
- 竣工时间:2025.11
-
项目定位:本案空间主打中古风格,午后阳光穿过百叶窗,在胡桃木地板上投下长长的光影,以及整体暖色灯光,旨在重塑往昔岁月的迷人韵味,为居住者带来一场跨越时空的审美之旅,使其在快节奏现代生活中寻得一隅怀旧天地。
-
空间意境:入户换鞋区半透玄关,屏风材质上与鞋柜的材质形成一个整体,结构形式上划分了区域。
走廊尽头弧形设计,与主卧墙体结合,弧形墙角弱化了尖锐墙角对床的不适感。 -
空间布局:入户换鞋区半透玄关,屏风材质上与鞋柜的材质形成一个整体,结构形式上划分了区域。
走廊尽头弧形设计,与主卧墙体结合,弧形墙角弱化了尖锐墙角对床的不适感。 -
设计选材:整体木作选用胡桃木色系搭配绿色岩板,沙发选用黑色,单椅点缀绿色,中和了胡桃木色和绿色岩板带来的浓郁感。
色彩搭配浓郁醇厚,墙面以米白色为主,地面选用胡桃木色瓷砖,增添空间层次感。
房间地面选用可再生资源木地板铺贴,木地板的保温隔热性能优越,冬天能减少室内热量散失,降低取暖能耗;夏天阻挡热气传入,减轻制冷负担,长期有效降低居住能耗成本。
实用性与氛围感并存。 -
用户体验:动线合理,灯光温馨舒适
0
0

认证 · 让您身份增值