简法漫时光
152
作品说明
- 项目类型:住宅公寓
- 项目地点:桂林市
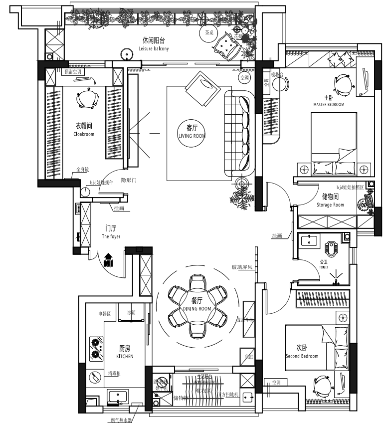
- 建筑面积:125㎡
- 项目造价:35万元
- 主案设计师: 陈诗密
- 竣工时间:2025.11
-
项目定位:本案以“时光浸润的温暖”为内核,打造一个融合复古美学、自然主义与个人志趣的复合型精神居所。设计旨在超越视觉风格,通过空间叙事与场景营造,构筑一个能同时安放宁静、热爱与成长的能量场。
以奶油白叠加杏仁粉构成空间底色,营造温暖、包裹的基调。通过胡桃木的沉稳、亚麻的肌理、藤编的通透,构建出丰富而统一的材质层次,在复古氛围中强调自然与亲切感。
-
空间意境:电视背景墙创新性地结合隐形门设计,实现墙面形式的绝对完整与视觉净化,强化了空间的秩序感与复古氛围的纯粹性。
阳台花园与藤编元素,成为主要的自然光过滤器与情绪启动器。早晨的阳光经由植物的梳理,变为斑驳柔和的漫反射光,成为空间最宝贵的动态装饰。 -
空间布局:将主卫改造为 “手办藏品室” ,这一大胆举措不仅极大提升了空间利用与个性表达,更形成了公共区的复古柔情与私藏区的现代热血之间的戏剧性对话,完整了居住者的人格画像。
-
设计选材:以奶油白叠加杏仁粉构成空间底色,营造温暖、包裹的基调。通过胡桃木的沉稳、亚麻的肌理、藤编的通透,构建出丰富而统一的材质层次,在复古氛围中强调自然与亲切感。
-
用户体验:这是一个被复古线条框起来的温暖奶油梦。杏仁粉的墙、胡桃木的家具、藤编与亚麻的呼吸,共同储存着每一天的晨光。电视墙的隐形门后是静谧,而原来的主卫里,则存档着另一个热血宇宙。最动人的,是阳台上那张被鲜花和阳光簇拥的藤编椅——那是整个家,开始呼吸的地方。
0
0

认证 · 让您身份增值