《不众・轻简松弛居》
141
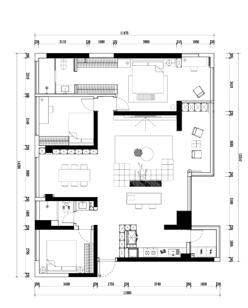
作品说明
- 项目类型:住宅公寓
- 项目地点:宜宾市
- 建筑面积:162㎡
- 项目造价:45万元
- 主案设计师: 曹浩然
- 参与设计师:任彪
- 竣工时间:2025/9/30
- 设计机构:子有设计
-
项目定位:聚焦都市年轻高知家庭的 “轻奢实用型生活空间”,以 “去风格化的松弛感” 为核心策划 —— 拒绝过度装饰的网红化设计,在极简框架内融入温暖材质与隐形功能,平衡审美高级感与日常实用性,打造 “好看又好住” 的居家场域。
-
空间意境:打破传统极简 “冷硬单调” 的风格局限,通过 “柔和材质 + 层级灯光” 实现双场景切换:
日间:依托通透采光 + 浅木、编织等自然质感材质,呈现清新舒展的生活氛围;
夜间:借助嵌入式氛围灯、曲线吊灯的光影层次,切换为松弛雅致的休闲感,避免极简风格的刻板冰冷。 -
空间布局:采用 “无界洄游 + 隐形功能模块” 布局:
客餐厨全域连通,形成开阔的家庭互动场域;
将水吧、储物等高频功能整合进嵌入式柜体,既保证空间视觉的整洁开阔,又让实用功能触手可及,解决了 “大空间易显空、小功能区易杂乱” 的痛点。 -
设计选材:以 “低碳高性价比” 为核心:
选用 E0 级环保木饰面(降低甲醛释放)、大规格通体柔光瓷砖(铺贴损耗率比小砖低 30%);
软装搭配可再生编织布艺材质;
既控制了材料成本与环保风险,又通过材质肌理对比(木饰面的暖、瓷砖的柔、编织的韧)提升了空间质感。 -
用户体验:“本来担心极简风会‘中看不中用’,结果这个设计完全是‘好看又好住’—— 朋友聚会时客餐厨连在一起特别敞亮,隐藏水吧放咖啡、餐具都方便,打扫起来比以前的房子省一半力气,住了三个月还是觉得很舒服!”
0
0

认证 · 让您身份增值