姜餐厅
56
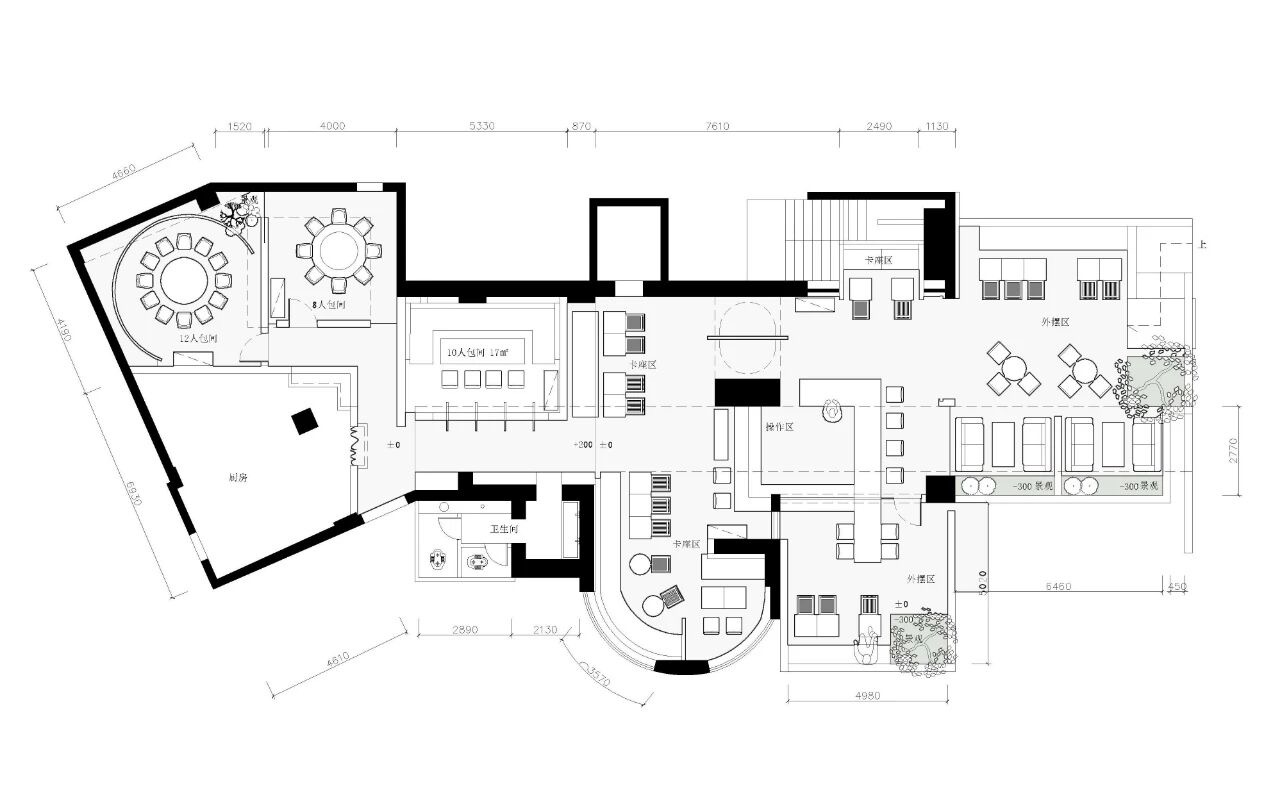
作品说明
- 项目类型:餐饮
- 项目地点:贵阳市
- 建筑面积:336㎡
- 项目造价:90万元
- 参与设计师:姜
- 竣工时间:2022年12月
- 设计机构:凡西空间设计
-
项目定位:姜餐厅是以贵阳当地江湖菜为主的餐厅,致力于提供给日消费者一个全新体验的空间又能吃到当地江湖菜的一个就餐体验店。
-
空间意境:贵阳的天气和阳光是最大的优势,于是我们在空间中找到了一条廊架穿梭于后场到门厅,让每一个就餐着都能感受到贵阳的光和影。
-
空间布局:空间布局上我们将前院、多功能吧台、开放式包间、封闭式包间,设立为室内小建筑群,以廊架的方式串联起来,让空间充满了光和影。打造一步一景的就餐体验空间。
-
设计选材:低碳:用到了废弃的老榆木再生。经济上:选择艺术涂料大面积留白给光和影。
-
用户体验:很多人来餐厅就餐的原因是这里很舒适,有阳光有树木的光影,感觉在大自然就餐的体验。
0
0

认证 · 让您身份增值