-
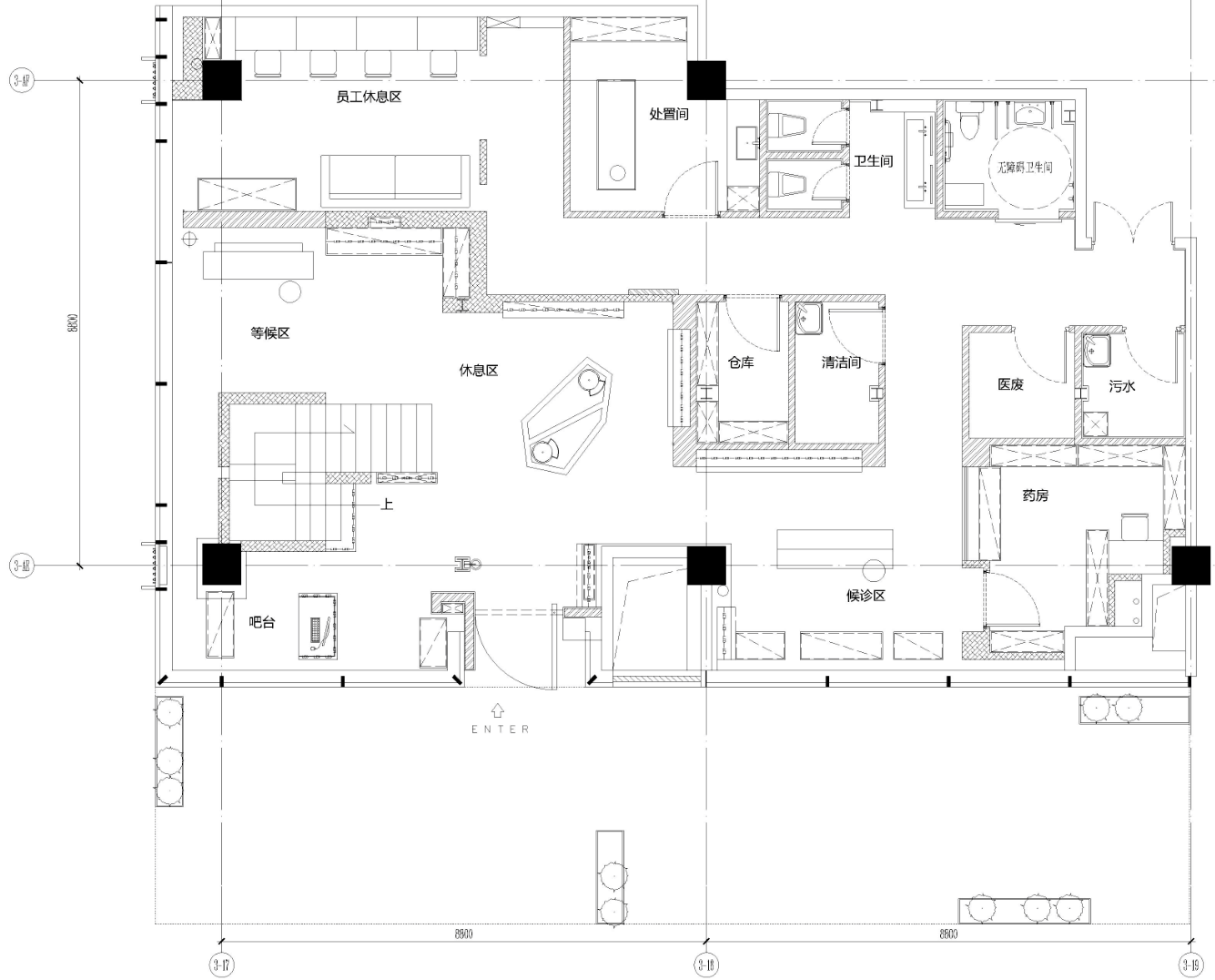
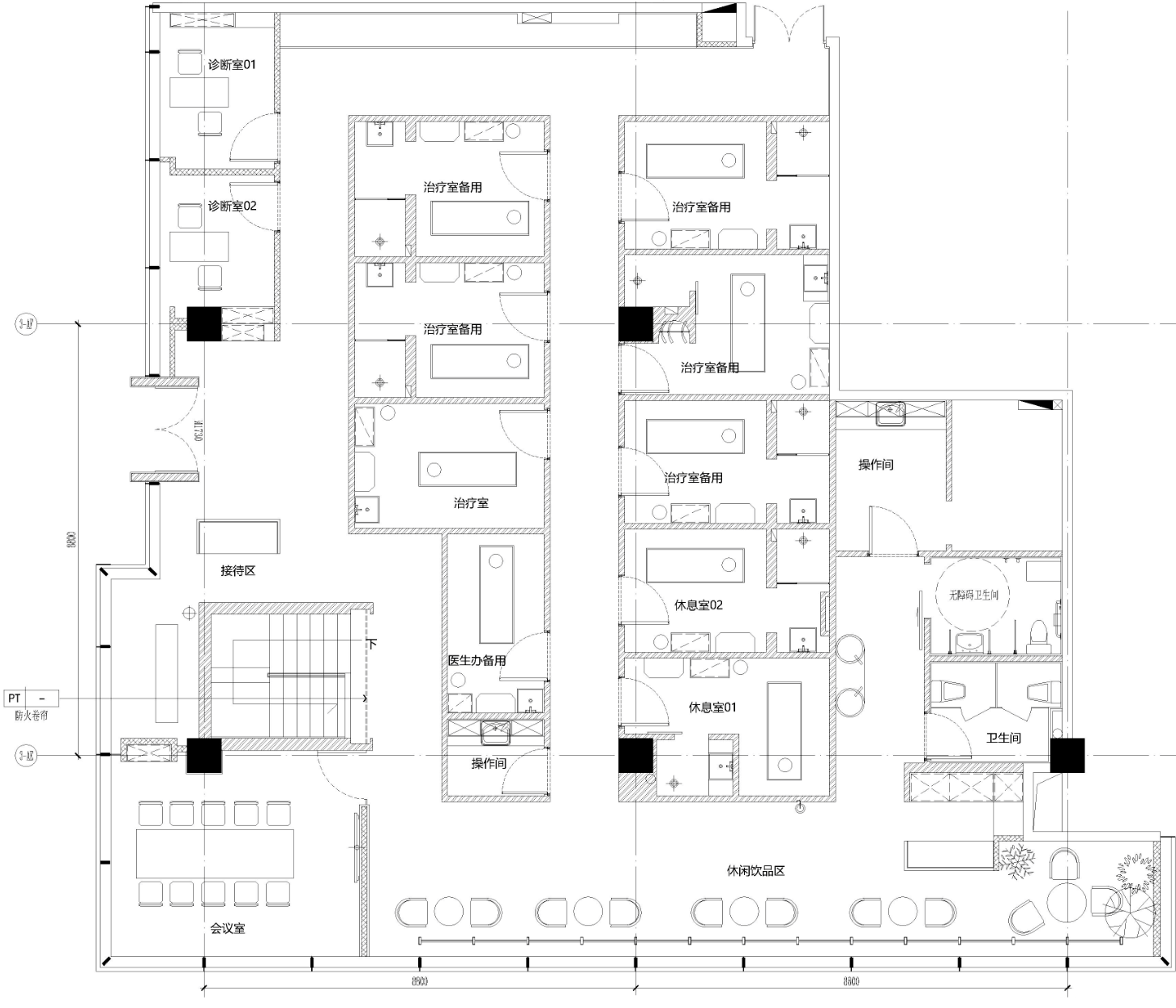
项目定位:素芳斋是一个覆盖中医理疗、问诊 、spa、针灸、生活用品的集合店,以自然草本提取为主的外用治疗为主,我们空间定位为新的东方美学空间。
-
空间意境:由于素芳斋的产品是向大自然提取的植物草本,我们风格上就以自然为核心展开,石材、木头、艺术涂料,质朴的汇聚成了我们的空间环境感受。
-
空间布局:空间上我们使用了洄游动线的方式布局,让每一个空间都能感受到自然的光。
-
设计选材:创新点:以老木地板作为空间的陈列柜和展示架,这样呈现上体现自然的同时,使用起来会更稳定和环保。
经济性:以大面积艺术涂料的留白给到光影,同时控制预算。 -
用户体验:一个全新的中医问诊体验,比起医院来说不会让人感受到担心和恐惧,这里更会让人放松和疗愈。
0
0

认证 · 让您身份增值
185