拾暮
192
作品说明
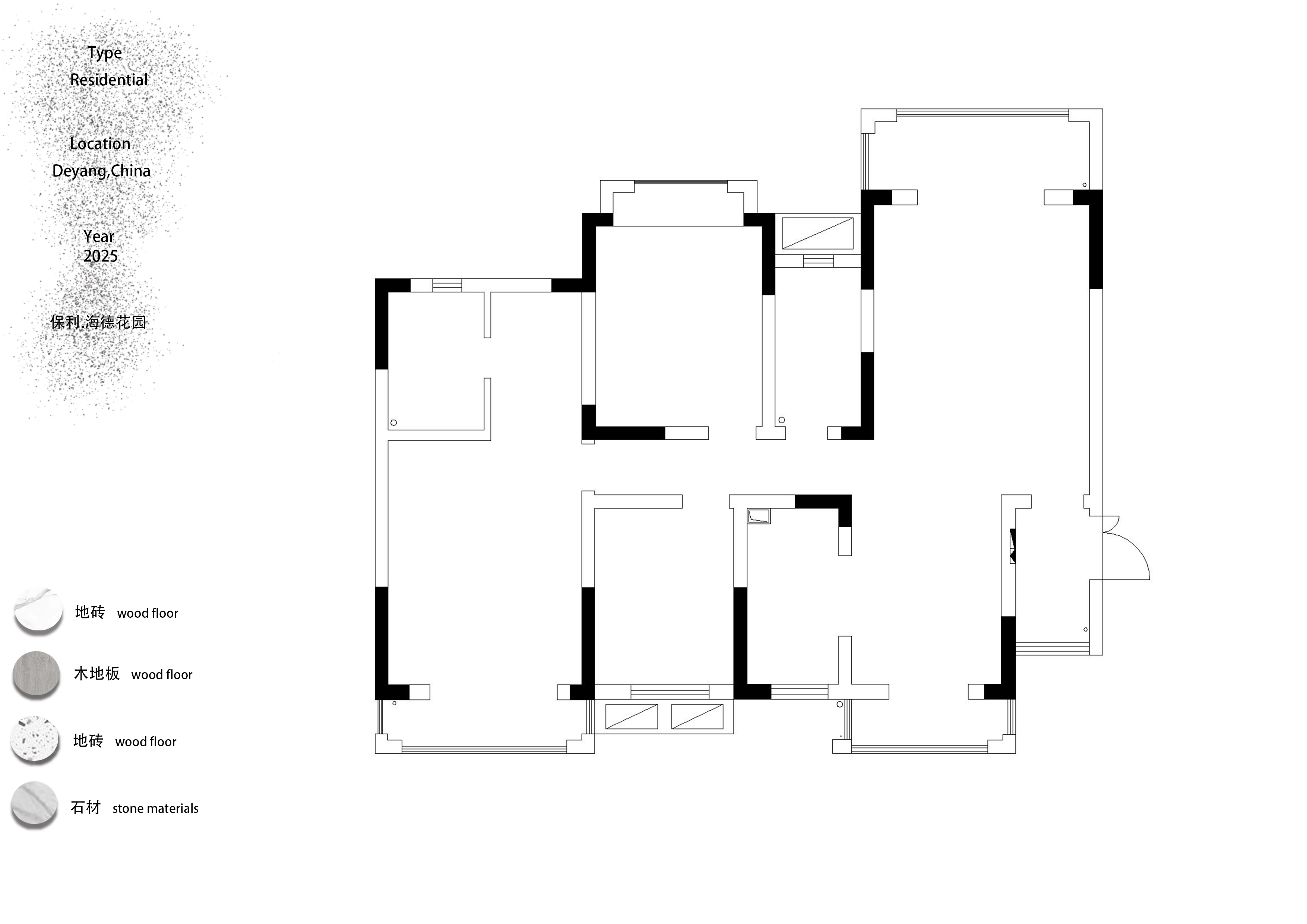
- 项目类型:住宅公寓
- 项目地点:德阳市
- 建筑面积:130㎡
- 项目造价:55万元
- 参与设计师:胡憬
- 竣工时间:2025年3月
- 设计机构:憬致设计事务所
-
项目定位:复古与美式的对话,摒弃了繁琐与奢华保留了美式风格的自在随性又融入中古风岁月的洗礼碰撞出惊艳的火花。
使用棕色、胡桃木及其自然质感作为基调米白色作为空间中的背景色突出复古感的氛围经典的配色是美式中古风的一大亮点大地色系为主调,搭配复古绿等点缀色营造出沉稳而不失活泼的氛围
软装搭配更是美式中古风的精髓所在几何图案的抱枕、复古的编织挂毯、造型独特的灯具将中古的复古感烘托而出 -
空间意境:一家三口居住
-
空间布局:满足公共区域流通动线及风格融合。
-
设计选材:
-
用户体验:居住舒适
0
0

认证 · 让您身份增值