-
项目定位:“城市的牛马,也有一颗想放羊的心”
一个舒适居家氛围,没有“班味”的办公空间。 -
空间意境:一个设计公司的办公空间,松弛又生活化,实现理想中的工作状态。
-
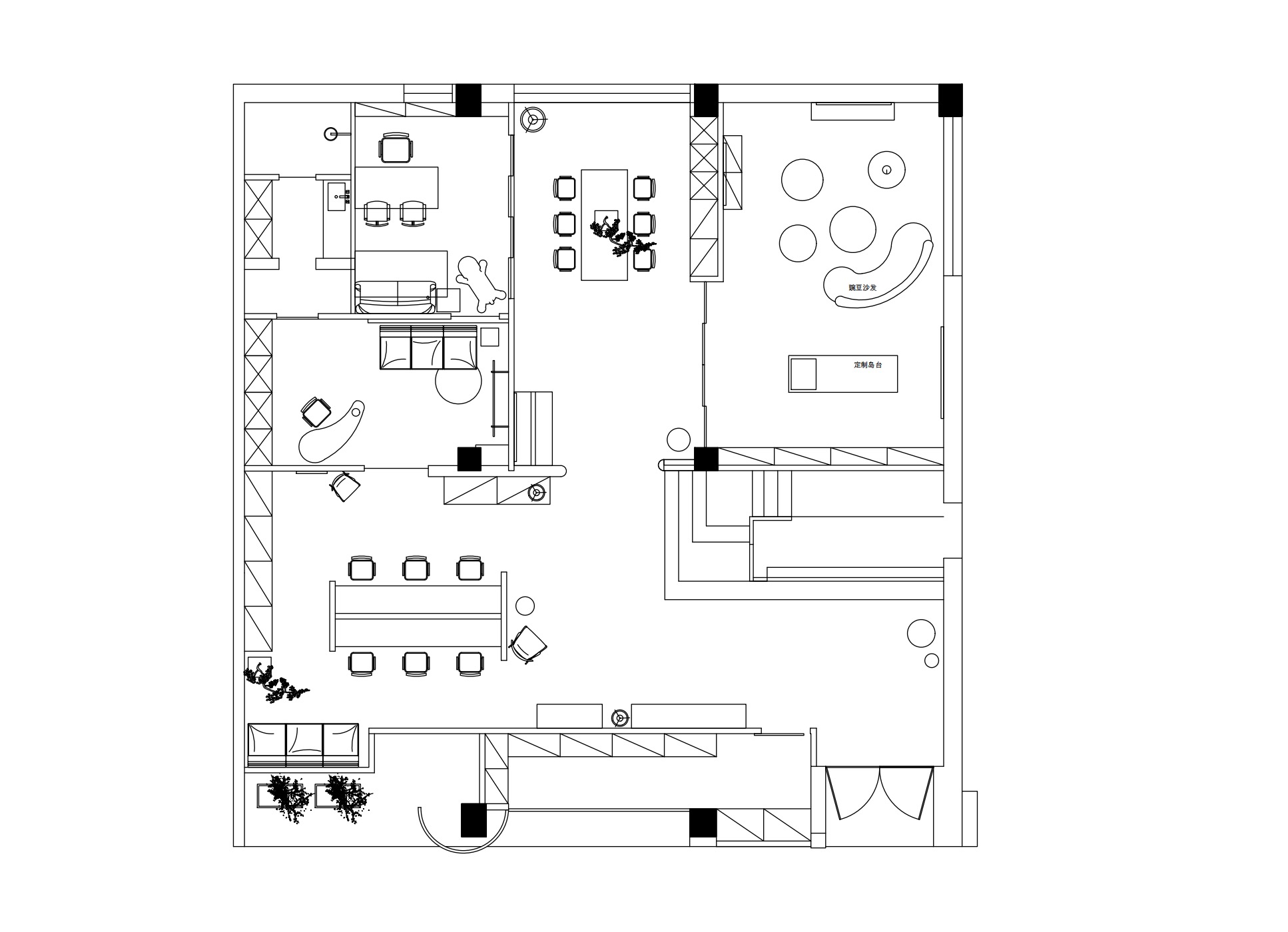
空间布局:开放、居家生活氛围式的办公环境,隔断的形式达到心理私密性,水吧台餐厨一应俱全,设计了几个临窗位置,让采光、通风、对流更舒服,餐厨区域的老钢窗,借了隔壁园林店的绿景,就算吃外卖也更有氛围感
-
设计选材:墙面顶面采用石灰洗,成本非常低,好操作
木质窗户、造型、吊顶、门部分,均采用铁柚木二手木地板拼接,有天然的旧木质感,造价也非常低 -
用户体验:如果设计师的工作状态不够好,怎么能设计出好状态的空间呢?
已经在这个新的空间里工作快半年了
每天换拖鞋上班,全公司的工作状态都更加松弛舒适
生活化的办公空间,居家生活一应俱全,更加人性化
客户也能更沉浸下来听设计师讲述方案
0
0

认证 · 让您身份增值
196