橙.载希望
204 - 项目类型:办公
- 项目地点:深圳市
- 建筑面积:480㎡
- 项目造价:120万元
- 主案设计师: 陈旭
- 参与设计师:陈旭(二宝)段飞 黄健斌
- 竣工时间:2025年12月1日
- 设计机构:深圳橙续空间设计美学有限公司
-
项目定位:本案以“橙载希望”为主题,为ALL-LINK LOGISTICS打造的企业前台及办公空间,旨在通过设计语言传达物流企业高效连接、可靠托付与内在活力的核心特质。
-
空间意境:“橙”既是品牌点睛之色,亦承载着“承载希望、传递能量”的寓意。设计将这份“希望”物化为空间中的一抹亮色,隐喻企业作为客户价值的链接者与支撑者,在沉稳可靠的运营中,蕴藏着驱动未来的蓬勃生机。
-
空间布局:以极简主义手法,通过黑白灰、橙色块表达,构筑了一处现代办公空间的视觉与功能枢纽。设计以“光”与“界”为核心概念,探讨了空间的通透性、标识性及秩序感。空间植物的栽培,孕育着勃勃生机。
-
设计选材:主材:大量采用软瓷线性石、岩板、烤漆玻璃、实木墙板等常规主材
-
用户体验:本案位于深圳地标建筑:深圳地王大厦。业主已成功搬入,近百员工疯狂点赞。对新办公环境很是适应。
橙.载希望
本案以“橙载希望”为主题,为ALL-LINK LOGISTICS打造的企业前台及接待空间,旨在通过设计语言传达物流企业高效连接、可靠托付与内在活力的核心特质。橙”既是品牌点睛之色,亦承载着“承载希望、传递能量”的寓意。设计将这份“希望”物化为空间中的一抹亮色,隐喻企业作为客户价值的链接者与支撑者,在沉稳可靠的运营中,蕴藏着驱动未来的蓬勃生机。
空间构图中,黑色大理石前台作为视觉与功能的绝对中心,以其厚重的体量、沉稳的质感,奠定了空间稳固、可信的基调。其横向延伸的姿态,与背景墙形成纵深感,暗示企业业务的通达与网络的广阔。
背景中若隐若现的开放办公区与人流动线,展现了企业高效、通透的运作状态,实现了内外部空间的视觉连接。
设计师更精妙地在这一深色三角形中,嵌入了一个更小、却更为夺目的暖调橘棕色三角形。这一嵌套结构打破了平面的单调,形成了层次丰富的立体错觉,体现了精准、创新与打破常规的设计思维。
前台形象区域
前台形象多媒体展示区域
地面色块分隔设计是本空间最富创意与视觉冲击力的核心亮点之一。它超越了基础的承载功能,通过精密的几何构成与色彩叙事,成为引导空间流线、传递品牌精神的艺术载体。
地面设计是理性逻辑与艺术表现的成功结合。它通过精准的几何切割与克制的色彩对比,在满足现代办公空间功能需求的同时,完成了深度的品牌叙事,将一处平凡的通道,转化为一个令人过目不忘、并深刻感知企业特质的标志性空间节点。
过道形象区域分界处
过道形象,来自真实植物与窗外景致的绿色,是空间的生命力所在。它有效中和了黑白灰的冷峻,带来了视觉上的舒缓与心理上的放松,营造出张弛有度的工作节奏。
办公区:极简的视觉语言与通透的空间架构,打造一个能够促进高效工作,舒缓压力并激发灵感的办公环境。
办公区域
总经理室设计通过对材质、光影、意境功能的精准结合,实现了商务功能、个人品味与精神慰藉的完美融合,彰显不凡的格调与深度。
设计巧妙平衡现代商务的效率需求与东方美学的精神追求。空间不追求符号化的中式表达,而是将山水意境、沉稳气韵与自然质感融入现代简约的骨架之中。窗外都市景观与室内雅致氛围形成“内省”与“外展”的对话,寓意领导者既洞悉全局,亦能沉心静思。
设计超越功能本身,追求空间气场、材质情感与人文意境的深度统一。
侧重于极致简约,人性化的细节与适度的灵动点缀,打破会议的沉闷感,激发与会者的灵感与开放心态。
将会议从封闭空间解放出来,带来开阔的视野与心理上的放松。良好的采光与层次营造了健康、积极的会议环境。
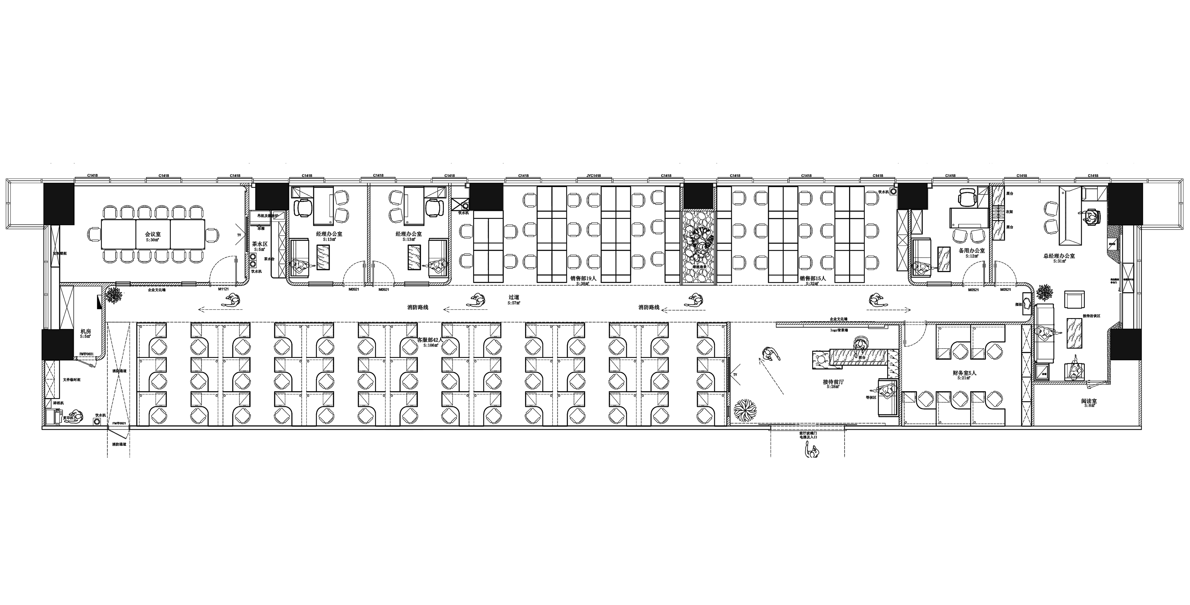
平面设计布置图
0
0

认证 · 让您身份增值