花房悦事深圳旗舰店



作品说明
- 项目类型:零售
- 项目地点:深圳市
- 建筑面积:260.0000㎡
- 项目造价:150.0000万元
- 主案设计师: 陈旭
- 参与设计师:段飞 林材杰
- 竣工时间:2023-07-01
- 设计机构:深圳橙续空间设计美学有限公司
-
项目定位:项目主要针对女性身体健康管理做的体验店(通过康复手法、器械、茶汤专利)营造露天景观,产生休闲互动,满院鲜花让女性消费者流连忘返。
-
空间意境:环境:项目在深圳福田百花片区,该地段属于闹市区域,却拥有150平米的独特自然院景(椰子树、阶梯院落、楼宇环绕中),建筑是一个圆形筒状设计,独特有个性,远观视觉效果明显
-
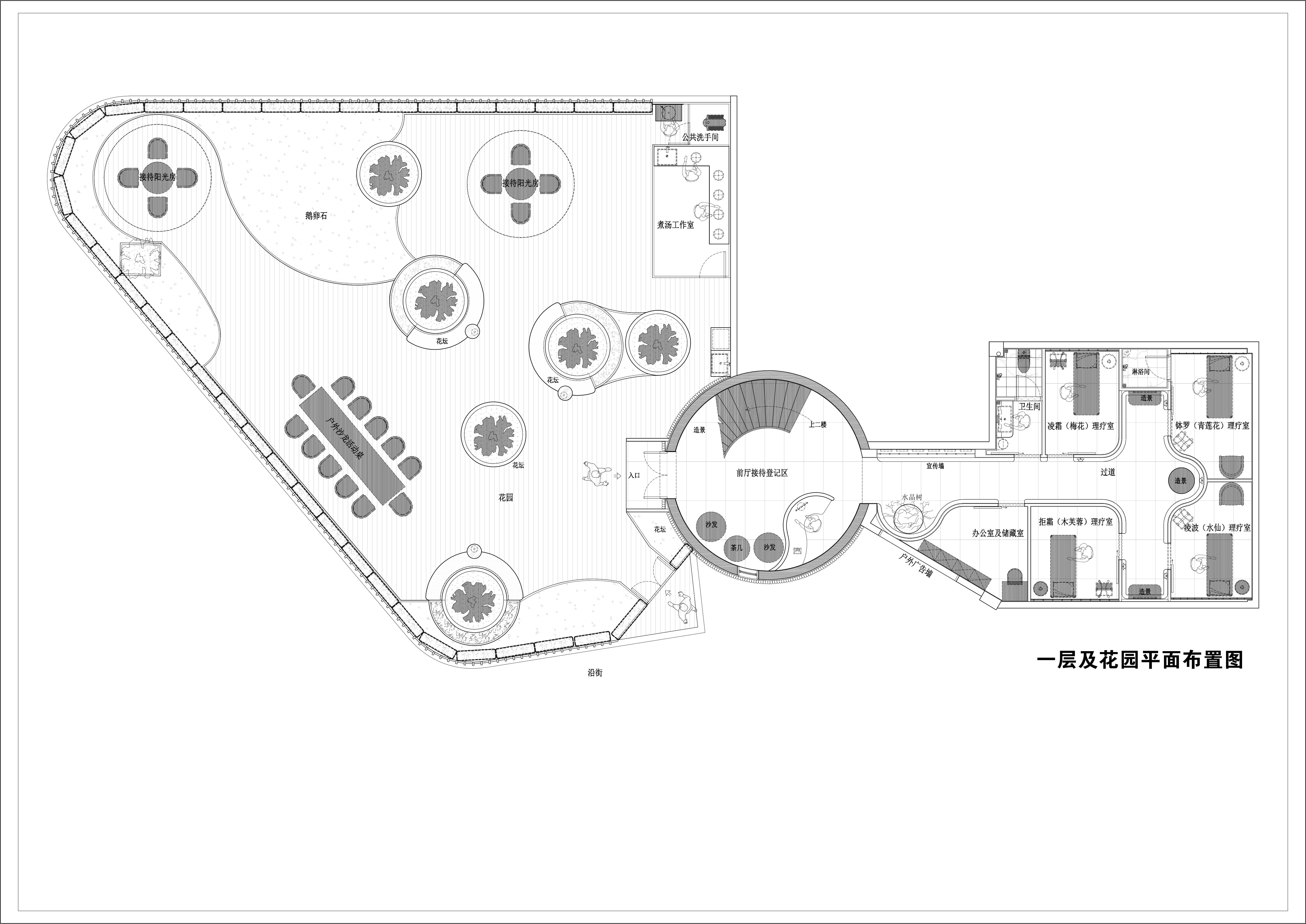
空间布局:设计手法:独立院子150平米,围绕椰子树做了花坛、休闲凳、种满各种鲜花,最重要的设计是在院子里穿插二个透明星空房(打卡、洽谈、休闲、派对)能更好的体验和互动。圆形筒状室内分为三层,一楼主要用于客户指引、接待,布局5个独立理疗室。二楼VIP独立休闲区及茶室。三楼为独立VIP功能调理房。
-
设计选材:材料1:外墙立面采用8000片染色发泡陶瓷砖(材料轻巧、可染色、胶水直接粘接)
材料2:露天花园采用大量太阳能萤火虫风向摇摆灯具
材料3:室内采用钢板弧形楼梯扶手、一体成型吊顶GRG造型、整体微水泥便于防潮、耐用 -
用户体验:在深圳这样一个快节奏的都市,而且是福田百花片区,有这样一个独特的建筑和露天花园,平时有大量居民和消费者驻足观看及进入体验。特别是该片区的深圳实验学校初中部的女性家长们,经常在此聚会和各种活动交流。花房悦事店不光给女性身体健康带来治疗和管理,更得人心的是它有一个可以集休闲、活动于一体的露天聚集场所。
一楼弧形旋转楼梯入口
大门入口
前台接待等候
前台咨询位置
一楼旋转楼梯底部造景
三楼旋转楼梯俯瞰一二层
顶部吊顶造型(水晶花瓣大吊灯)
理疗室过道水晶树景观
理疗室房间整体过道
理疗室过道水晶鹿及翻页灯景观造景
理疗室门口左侧软装造景
理疗室门口右侧软装造景
理疗房间室内景(浅咖色超薄钢板卷帘造型)
理疗房间内部(软装搭配)
理疗房间内部(软装搭配)
理疗房间室内景(桃红色超薄钢板卷帘吊顶造型、500支仿真玫瑰花朵背景)
门头造型(一体成型的焊接钢板框架,白色氟碳漆)水波纹旋转灯暗藏
建筑外立面为圆筒形状,深咖色和奶白色染色陶瓷砖搭配,视觉撞击
围绕院子里几颗椰子树做的圆形花园休息区(一半可以休息,一半可以种各种鲜花)
花园里的透明阳光星空房(内配沙发、桌椅、空调等)
闹市区的花园部分景观
露天花园的聊天景观
夜晚的露天花园透明星空房
一层及院落整体平面布局
二楼三楼平面

