上海东海别墅
57
作品说明
- 项目类型:别墅
- 项目地点:上海市
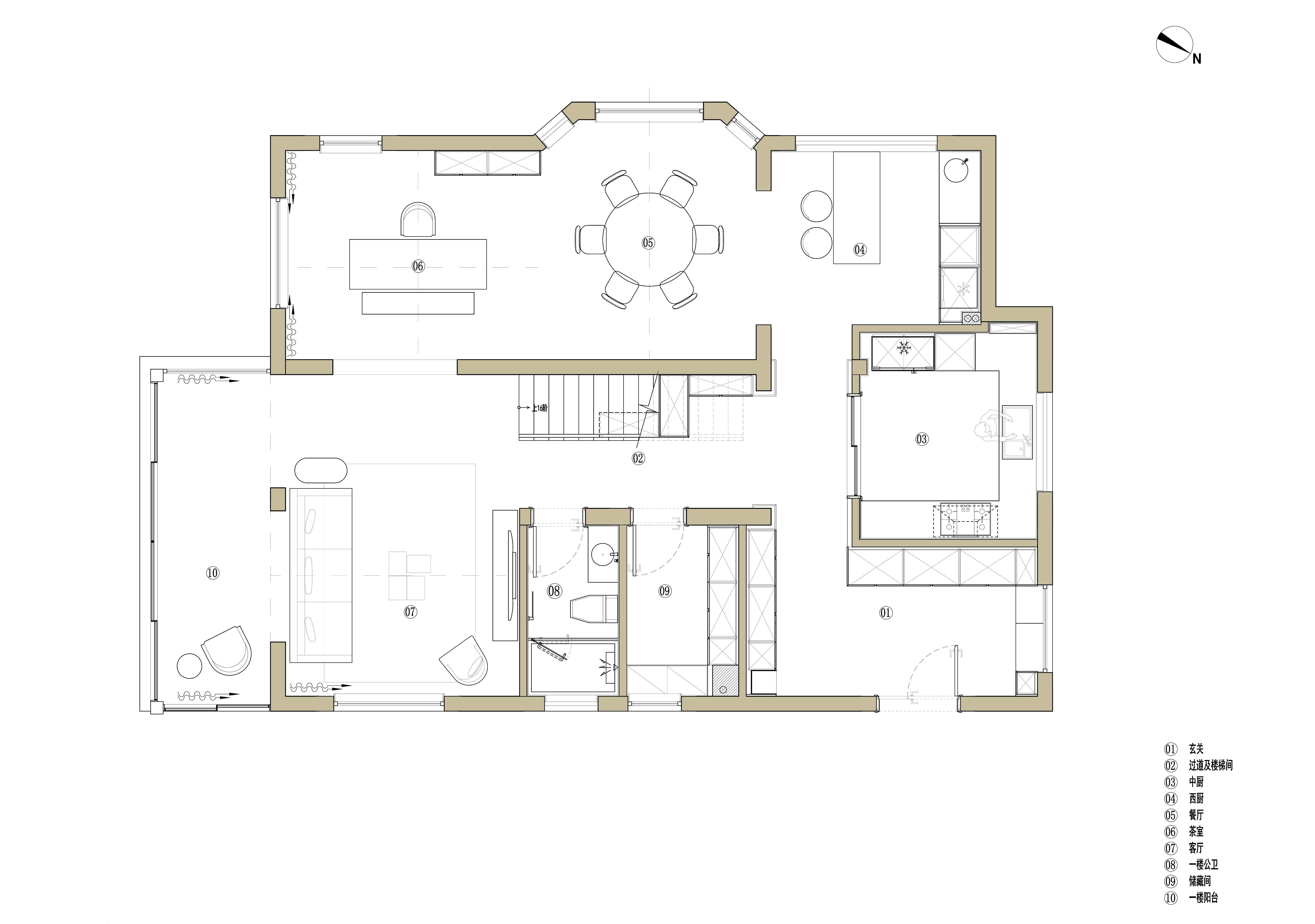
- 建筑面积:300㎡
- 项目造价:200万元
- 主案设计师: 蔡静霞/谭晫
- 参与设计师:蔡静霞/谭晫
- 竣工时间:2023.6
- 设计机构:TSTUDIO
-
项目定位:设计师希望通过尽量的减少对建筑结构的改造,保证其建筑安全性能前提下,满足其家庭成员对空间的基本需求。使之动线合理,让使用者可以自由的洄游在各个空间角落。感受自由空间带来的愉悦。让空间服从居者
夜幕降临,静夜而思,设计师认为:每一幢居所都值得被热爱,每一个业主都值得被关心。无论贫富贵贱。 -
空间意境:当设计回归空间逻辑,不再纯粹由的装饰支配,当充足的光线,温暖的色系,绿色的植物,舒适的家居成为载体,居者在空间里身心愉悦得到美好的生活。这是设计者对居家设计方向的期许。
满足空间尺幅,串联空间关系,维持空间理性。使得空间不再由装饰造型来支配,
光线,绿色,温暖成为设计的逻辑线索。并贯穿整个建筑空间垂直和水平的方向。也从室内衍生到室外。最后再在从室外回馈给居住者。 随着一天时间的推移。建筑室内能享受到充足的日照阳光。 阳光斜射进室内后,即便建筑周边环境不尽人意,绿色和温暖色的延续让居者沉浸在建筑内。 -
空间布局:原有的房型空间的采光偏弱,引光入室,联系室内和室外的关系,并且使各个空间的体量合理。最后控制预算也是设计师需要着重考虑的要素。
-
设计选材:本项目在有限预算条件下,通过精准的设计决策与理性选材,实现空间效果与落地品质的最优平衡。
以材料整合与工艺优化替代高消耗装饰,在控制成本与资源使用的同时,完成稳定、耐久的现代空间表达。 -
用户体验:“一开始其实挺担心预算的问题,但现在结果非常超预期,很耐看。空间不是那种第一眼很惊艳的类型,但越用越顺。动线舒服,没有多余装饰,非常喜欢。”业主如此说道。
0
0

认证 · 让您身份增值