TOSCANA上海办公展厅
69
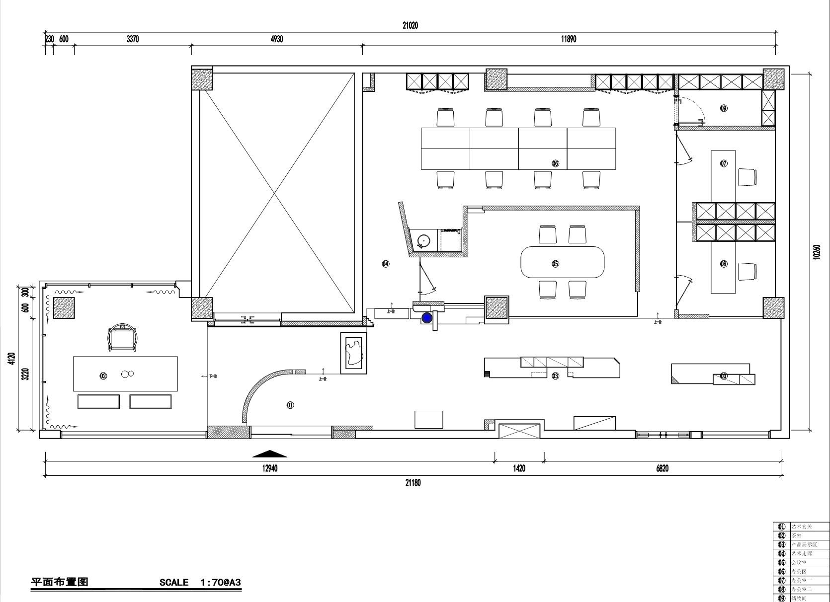
作品说明
- 项目类型:展示
- 项目地点:上海市
- 建筑面积:189㎡
- 项目造价:46万元
- 主案设计师: 蔡静霞/谭晫
- 参与设计师:蔡静霞/谭晫
- 竣工时间:2021.9
- 设计机构:TSTUDIO
-
项目定位:我们将时间、空间的交流、光线、空间细节以多级层叠的元素,运用在空间的设计中。展现材料在空间的延续不断,在流动、变化、稍纵即逝。We use layered elements, and use of light subtly, vocabulary of separation, occlusion from scarpa into the design of the space. Show the continuity of material. It is flowing, changing, fleeting.
将客观物象选择、提炼,重新组合,从局部思考开始,缝合整体,历史痕迹的分层展现,多种元素的并置,都让断片作品成为细节可以触摸和观察的个性化建筑样式。
Fragmentary Work,the objective images are selected, refined and recombined by it, start by thinking in parts, stitching up the whole of it,the layered presentation of historical traces,the juxtaposition of various elements,all of them makes Fragmentary Work become a personalized architectural style where details can be touched and observed. -
空间意境:空间的交流Space Communication━在这个空间,我们希望通过空间的片段式呈现,对于细部的呈现,让人与空间产生交流。当观众注视其中,人与空间便展开了一扇窗户,在这扇窗户中,断片纷呈迭现:台阶的起伏错落,层台穿插的几何形体,变幻莫测的光影,材料……In this space, we hope to make people communicate with space through the fragmented presentation of space and the presentation of details. When the audience watches it, it opens a window between people and space. In this window, the fragments that evoke emotion appear repeatedly: the undulating steps, the layered and interspersed geometric form, the uncertain shadow, the beauty of materials...
剪裁“天光”Clipping "Sunlight"━空间只有西北面有采光,整个东面缺乏采光,尤其是办公区,包括会议室。Only the northwest side of the space has daylighting , and the entire east side lacks light, especially in the office area, including the meeting room.
基于自然光线的崇拜,如果可能的话,希望剪裁出一片天光,让光线流淌至这些区域。Based on the adoration of natural light, if possible, we want to cut out a sunlight and let the light flow into these areas.
-
空间布局:诗意的断片空间与理性联系在一起,以光为媒介,将节点和断片纳入整体。Poetic fragmentary space is connected with rationality, with light as the medium, bringing nodes and fragmentary into the whole.
多重立体的方式营造会议室入口,用分层的方式设计楼梯,木结构再以抽象的方式延续出楼梯的造型,片段如电影般延续,又缝合出整体。The entrance of the meeting room is created in a multi-dimensional way, the staircase is designed in a layered way, and the wooden structure continues the shape of the staircase in an abstract way. These fragments continue like a movie, but also piece the whole.
-
设计选材:本展厅以微水泥为主要材料,通过现代简约的空间语言,展示设计选材的逻辑与创新。
在保证空间质感与完整性的同时,微水泥以薄层施工、材料整合的方式,降低资源消耗与建造成本,体现低碳与经济性的双重价值。用更少的资源,完成更完整的空间表达。 -
用户体验:“空间看起来很克制,但细看很有质感。更像一个可以长期使用的空间,不浮夸,但很耐看。”甲方如此说道。
0
0

认证 · 让您身份增值