卢赛世家,应势造境
112
作品说明
- 项目类型:展示
- 项目地点:温州市
- 建筑面积:300㎡
- 项目造价:200万元
- 竣工时间:2024年2月
-
项目定位:以木材为基点,我们拓展延伸出一个想象的场景,这是优奇国际木作新的展厅空间,“优在品质,奇为设计”是优奇国际命名的由来,两个心怀梦想的创业者,从使用者的角度出发,希望打造真正服务于使用习惯,且精于细节的定制化木作产品。
-
空间意境:中心区的柱体结构,在面向不同区域的面上,采用区分的设计逻辑,以此可视为一段行文中总起的“序”,联结不同部分的位面,化零为整,形成完整统一的整体性结构。在不同材质间的交换过程中,我们需要一个断节来表达一个材质的结束和另一个材质的开始,在此项目中,这种断节可被输出为镜面的展示,或是金属的表达,亚金属的特殊材料贯穿空间的始末,展示工艺效果的同时,也提供沉浸式的豪宅奢华体验。从功能角度入手思考建筑的形体状态,分析功能场景存在的目的,也同时从空间本身无法改变的形态基础倒推功能布局,引起分离与聚焦之间的关系博弈,这种正向与反向思考的交锋,让场景在自然而然的推演中得到视觉呈现于使用状态间的平衡。
-
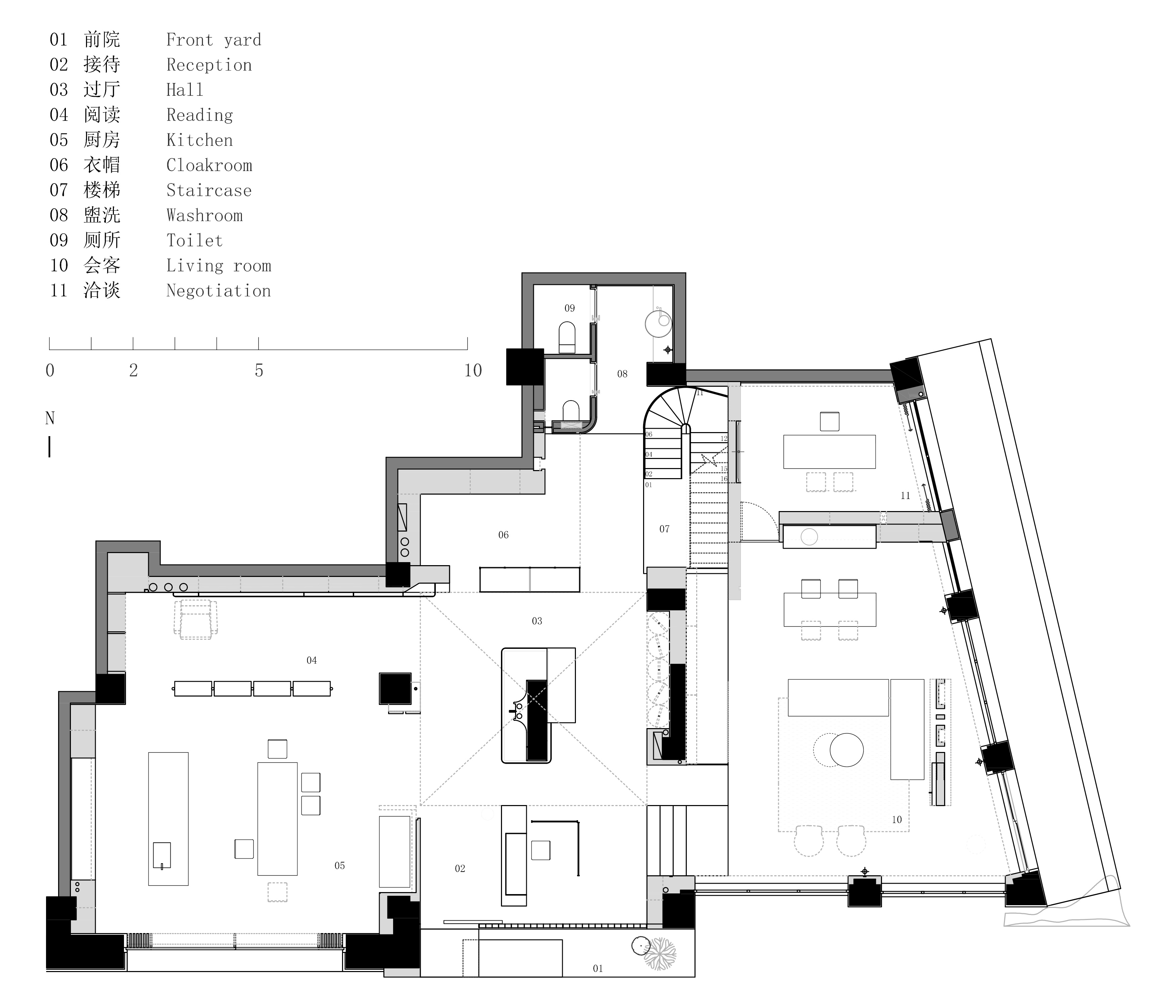
空间布局:通过主入口的迎宾台之后,我们来到一个四通八达的情绪转换空间,以建筑中心的圆作为一切的起始,辐射四散,对应不同入口,转换为不同的使用场景。
简单地通过明与暗的主题色,将场景一分为二,左侧深色空间承载厨房与阅读区域功能,右侧米色调空间朝向巨大的270°落地窗,带来丰沛的光线感受,如此,在展厅空间的商业表达逻辑下,我们得以预见产品在不同风格环境中的落地效果。
-
设计选材:项目的木饰面来自于卢赛世家,以“缔造幸福生活”为核心理念的品牌,每一件产品均取材自全球八大原木采购基地,甄选大自然百年孕育的稀缺珍贵木材,传承精益求精的工匠精神,应用流行的美学色彩搭配,精致的细节处理,令空间浑然一体。商业空间的设计逻辑该如何呈现品牌形象的思考,竞向认为首先要解决场景的功能。
-
用户体验:在这里,生命与自然,活跃的人类行为轨迹与稳定的建筑结构,在设计的笔法下交锋,不仅以空间规划人的行走路径,更以人本身的行为习惯去思考场景串联的必然目的,如此,得到一个以圆为中心的凝缩,再自然释放到四周各成独立的场景搭建。
0
0

认证 · 让您身份增值