-
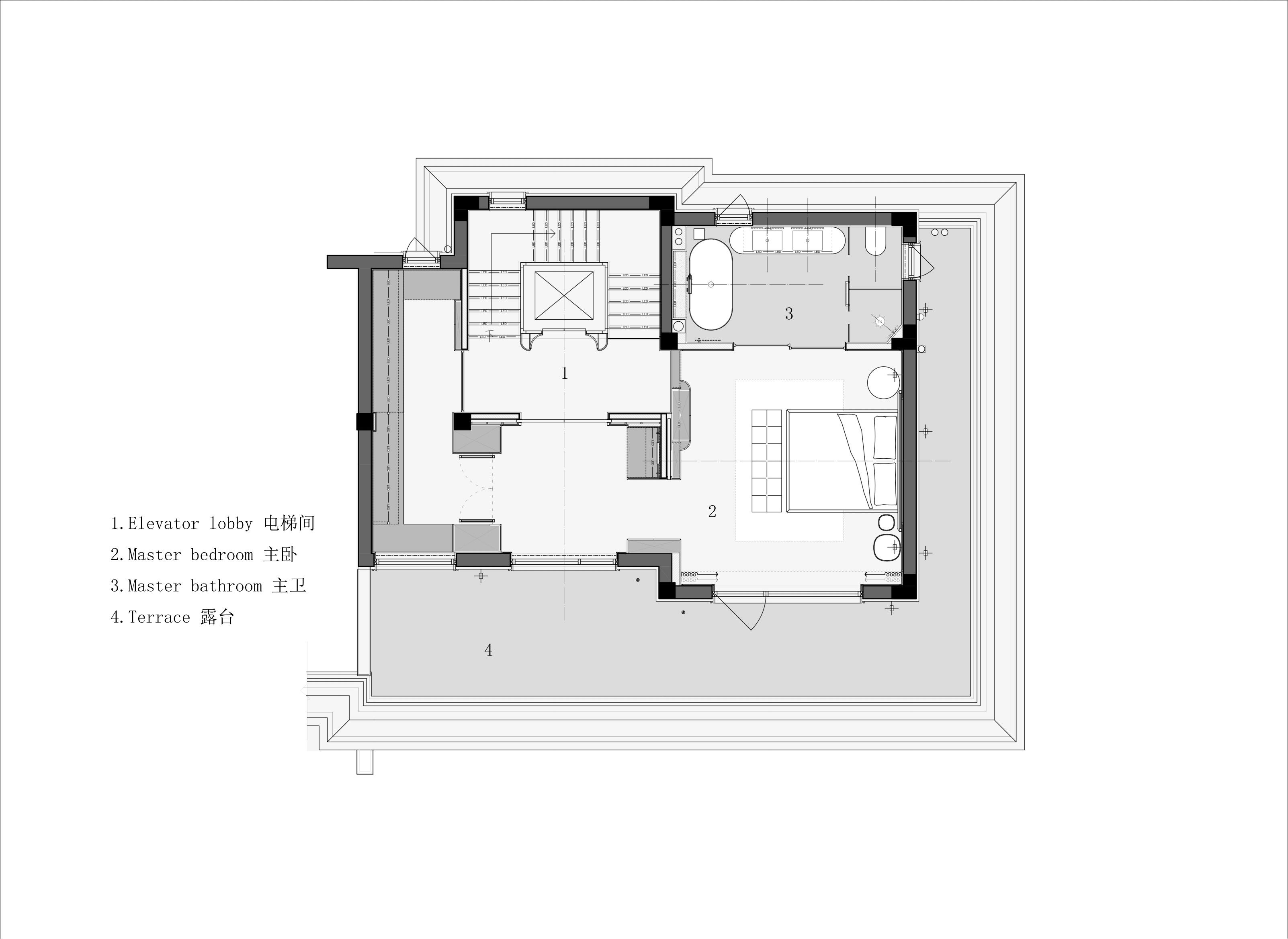
项目定位:本案是湖州绿城·翠麓合院的样板房,外部结构以庭院为引,建筑作为主体,汀步连接一方闲亭,构成富有生命力的自然交互场。主建筑向外延伸露台,合理的开窗设计获得别墅应有的大气开阖,也让家和自然之间衍生天然的亲密关系。
-
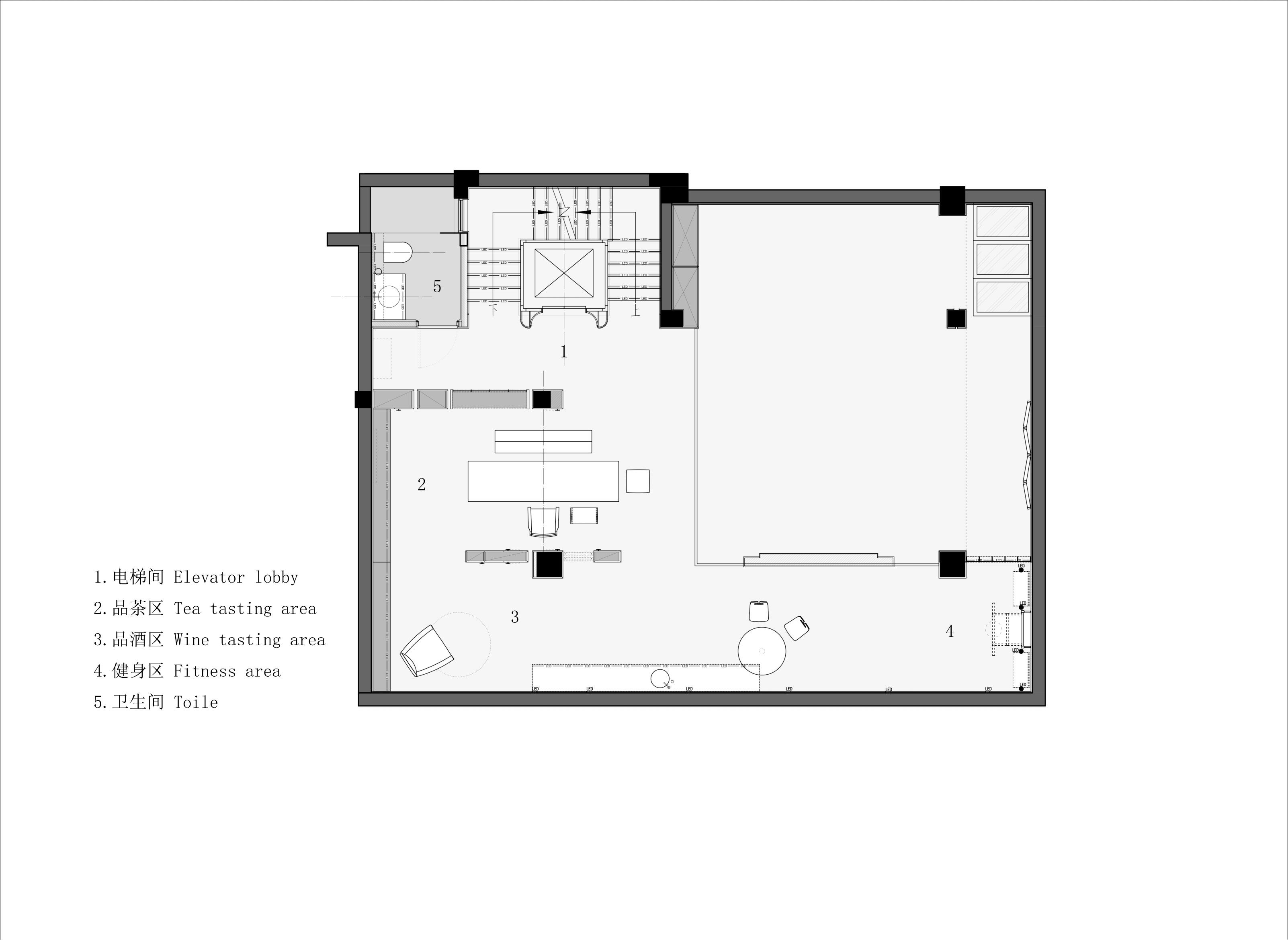
空间意境:室内设计的灵感来源于安达仕酒店的顶奢美学概念,提取东西方文化内涵,借设计之由,以西方的仪式秩序为“形”,东方的优雅内敛为“意”,在东西脉络的交界处制造平衡点,打破了线性空间的固有逻辑,缔造一场“隐于形的诗意”,从中感受时光的沉淀与革新。侧墙铺展光膜,立面嵌合格栅,掩映于微光之中,视觉上形成明暗相协的层次切面,塑造朗阔秩序。夹层和地下室共同组成宴客社交的完整链路,同时根据男女主人的生活喜好与需求进行功能分布。为男主人设置专属的品酒区,女主人喜好喝茶健身,各自独享一份舒适。这一分区的调度,同步也为不同性别、喜好的客人们设置恰宜的尺度感,带来舒适的社交体验。夹层原始层高较矮,通过顶部的镜面反射,配合墙体光束的秩序排布,结构上延展纵深,给予开阔视感。狭长的廊道贯穿整体场域,动线末端置入洗手台,红色洞石释放出动态的指引力量,在秩序中穿梭,经材质美学微妙叠加,演绎质感芳华的情景剧。
-
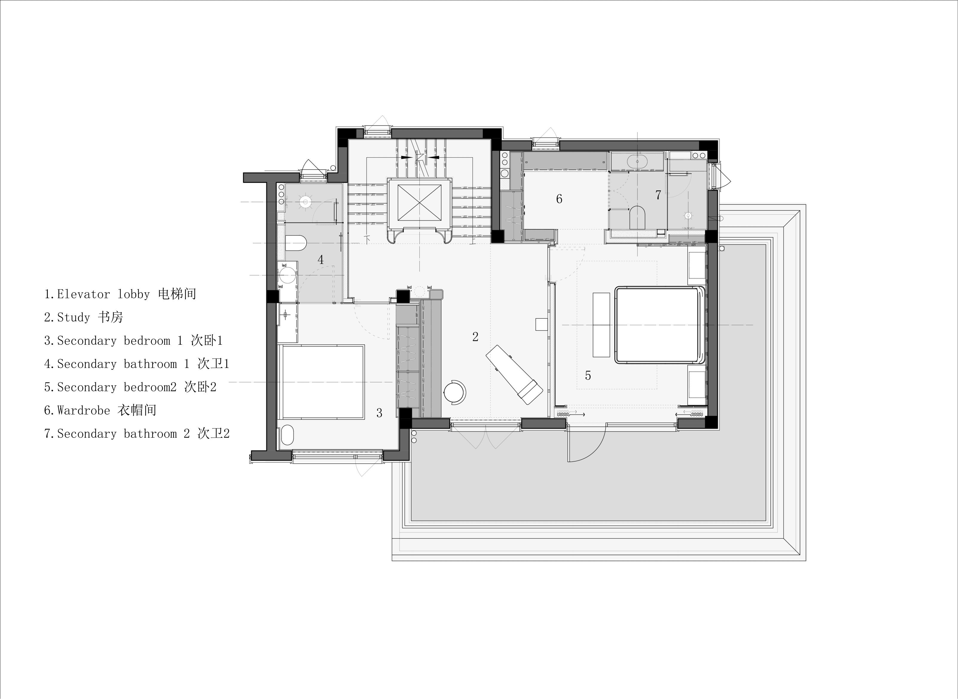
空间布局:设计师从交流的属性出发,调度更具专属性的空间形态。别墅共为地面三层,地下两层挑空,通过对空间关系、动线布局、层界连接等内容的全面梳理,转承更舒适的生活节奏。地下室集客厅、水吧台等休闲属性,夹层设施健身区、茶室、品酒区,互相连接打造宴客与社交枢纽,借层高优势纵横挑空结构,搭建上下界面的交互与穿透。设计将场景的营造从框架落于细节,逐步调节功能性解决方案。吧台区巧妙融合承重柱,引入线形灯随柱体游走、连接、垂落,弱化柱体突兀的存在感,构成一处轻盈灵动的艺术装置,协调了整体感官。
-
设计选材:地下空间铺展大面积的黑橡木,区别普通单一的材质,沉淀更具质感的暗调,与简白的对冲下带来明暗的层次感。软装搭配古典蓝,复古的红洞石作衬,规划结构与陈列的序然,既有东方古典的韵味又不失现代感,构建新的秩序与美学。
-
用户体验:感官,从不局限于一个维度。将视角从具象的容器与元素中脱离,捕捉每一寸表层之下的内质,无所谓东方与西方、经典与现代、简约与奢华,以不受潮流约束的折衷思维,去剖析每一段时间线下隐藏的共性:以一场长期可持续的生活方式,探得生命中真正的优雅与价值。
0
0

认证 · 让您身份增值
135