-
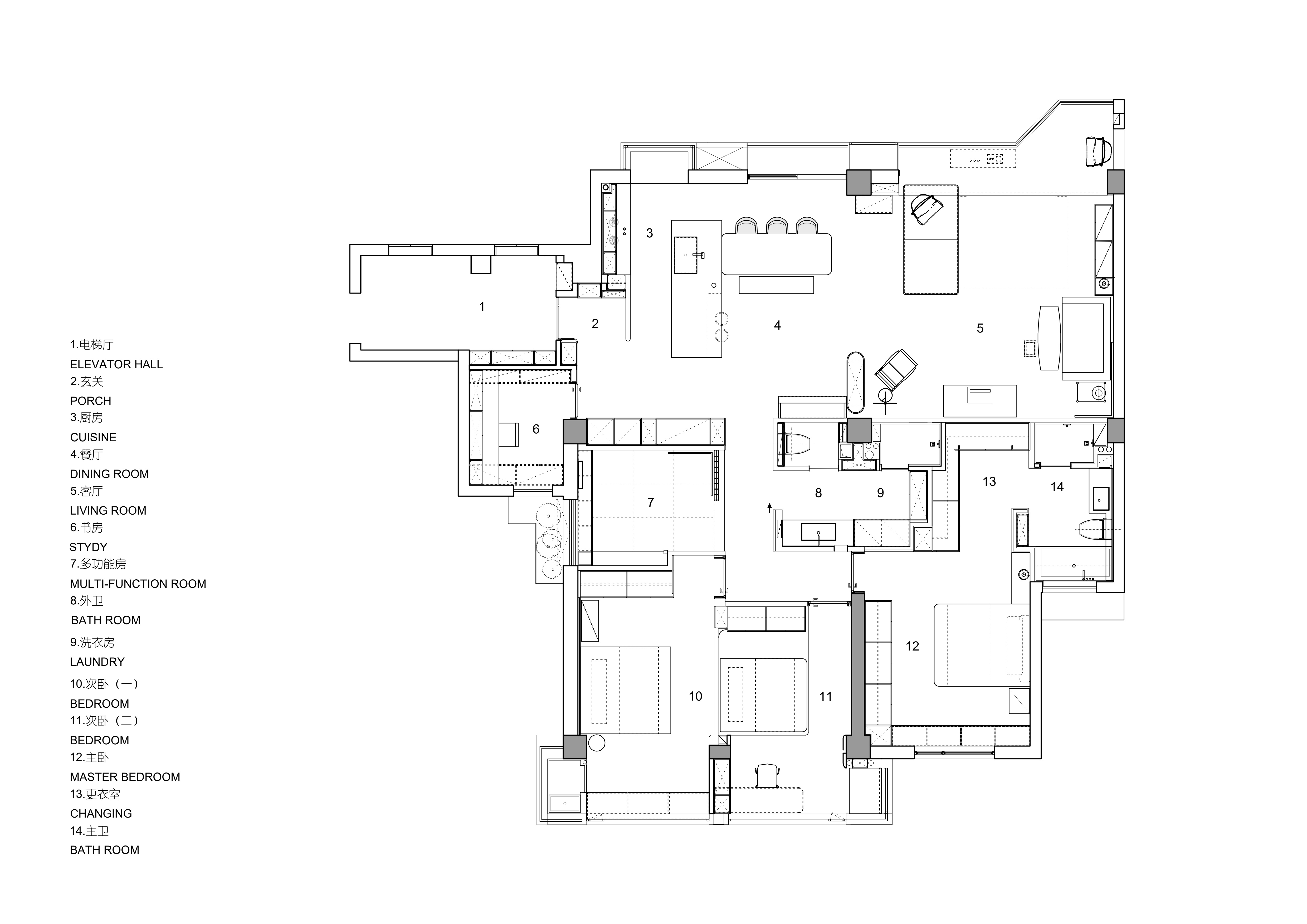
项目定位:身居都市,亦能抱览山野灵秀,感知阳光与四时变幻。自然以一种轻快灵巧的方式与生活发生联系,将设计师对自宅的万般期待汇入其中。入口通幽迂回,顺势进入窗前的豁然开朗,经地面抬升独立一处闲适观雨的方寸之地,在结构的「收」与「放」之间,徐徐展开生活的静谧叙事。
-
空间意境:轻便可移动的家具打破传统客厅模式,在这个规整的四方体中,可以自由设定边界与流动形态。屋主时常根据自己的喜好与需求切换家具组合,让情绪场自然发生。“喝茶时把屏风立在阳台遮挡一些光,吃饭的时候也可以挪到餐厅做简单隔断。平时我也喜欢把沙发移到窗前,安静地坐着发会儿呆。所以每当朋友一走进我家,通过屋子里的摆设就能察觉到我当下的情绪动态。人与空间交织产生的情愫,会在这里一点一点奇妙地生长。”“有时会把餐厅的椅子直接搬到旁边的小阳台,让自己沉浸在阳光与风景的包围中,安静、认真地享受一顿美味时光。每一件家具都有它的功能所在,我希望所有的家具在不同的场景下能实现更灵活的运用,可以让我们找到自己最舒适的状态。”酒柜和吧台联动一体,是家人和朋友的聚会空间。天色渐暗,点几盏暖灯,调一杯微醺小酒,几道下酒餐辅佐,在蓝调布鲁斯的舒缓音乐中,约三俩好友闲情聊天。有时自己独坐窗前望向远处的繁华,烟火与相聚,都能得到妥帖的照应与安放。书房独立于公共动线之外,静辟于隐形门之后,可以全身心专注学习办公。茶室经地面抬高,室内置一小几,需有光、有影、有自然,为生活静辟一份素闲。设计借区域相邻之势,在墙体穿透一处移动暗格,视线可以直通厨房。懒得走动时,可以通过暗格传递酒水、饭菜,玩味场域之间的联动,意趣横生。空间的自由度并不取决于场域面积的大小,即使结构纵深折转,通过对生活习惯与细节的动态考量,也能为空间带来更丰富的变量。每天入寝前的仪式感,就是穿过长长的艺术走廊,缓缓向卧室延伸。进入起居室,延续动线的顺畅引导,洗漱、泡澡、淋浴、护理等流程都贴合着日常动态习惯。在衣帽间换上舒适的睡衣,躺床上翻一翻未看完的书,随着窗帘慢慢闭合,准备迎接新的一天。
-
空间布局:设计并未对空间框架做过多修饰,把发挥余地尽数呈现给一件件独具形制的家具、从各地搜罗来的器物与艺术品。软皮躺椅那片角落,是屋主的精神专属地。有仪式感地打开黑胶唱片,挑选一本书,在椅子上轻松一躺,累了就望一望远处那片山野,时间仿佛变得更慢了。
-
设计选材:木头的温厚触感与色泽,皆是岁月的陈酿。空间大面积铺展木元素,平时不需要过多的打理,任由它随着时间、空气、阳光慢慢发生变化,逐渐滋养出独属于这个空间的气味与印记,将家的故事娓娓道来。
-
用户体验:生活空间并不需要过于精心把握尺度比例,在日常的活动场景中尊重并保留家庭记忆与生活习惯,不知不觉间,新的生活以及新的场域精神,就在这里悄然开启。
0
0

认证 · 让您身份增值
141