-
项目定位:「意樂岛」——音译自法语La villa en l'île,意为顺随心意的宁静岛屿。在温岭石塘,这处被涛声不断凿刻的礁岩半岛,渔汛裹挟咸湿的海风,呼啸过鳞次栎比的石厝,海浪拍击于石墙的缝隙,留下晶莹的盐粒与凹陷的刻痕,此地的光阴比别处更懂得如何凝固。法语的音调在舌尖转圜后留下音律的错节,我们以建筑作为思想的锚点,刺破“民宿”与“酒店”的固有边界——不是建造栖所,而是在潮汐的平仄起伏中,为现代人打造一场让人心驰神往的“岛屿奇遇之旅”。
-
空间意境:用几何的错落形式与柔软的线条语言,将空间的过道演变为回廊式的结构设计,让行走其中的过程变得更富有仪式感与隔绝感,分界旅行与日常的参差,带来富有变化且具有新奇感的居住体验。将自然的阳光与植被纳入设计的考量,使之成为视觉的点缀语言,将海岸的风与拍打礁石的浪涛声作为日常的协奏,光阴流逝的痕迹被建筑的材质记忆,并从中提取渔镇的基因,让居住的意义回归到自然、质朴,又具有生命力的日常。设计简单地遵循着“把最好的光线与景观留给最值得停留的空间”这一质朴的诉求,转圜场景的方位与动线,留下具有自然意义与现世温暖的灵魂居所。意樂岛不是避世乌托邦,而是现实与诗意的缓冲带。当黄昏的微光熨烫闪烁的海面;当海风穿过石厝,穿过树木枝叶的缝隙抵达,掀起轻柔缱绻的纱幔;当凝视的目光彼此交错凝固……这些被建筑石墙收藏的时间痕迹,终将在某个定格的瞬间,还原成值得一遍一遍反复品味的生活原浆。
-
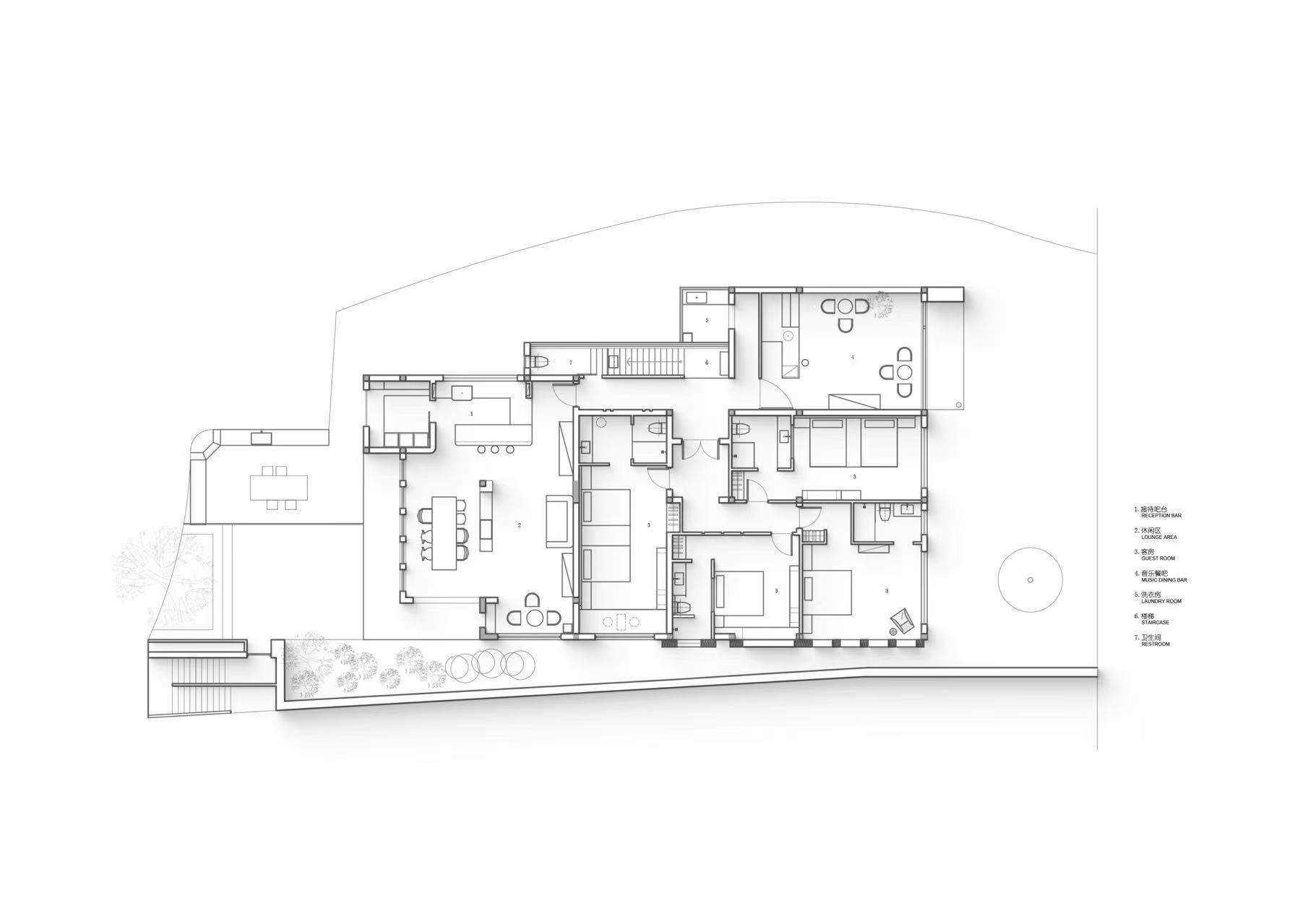
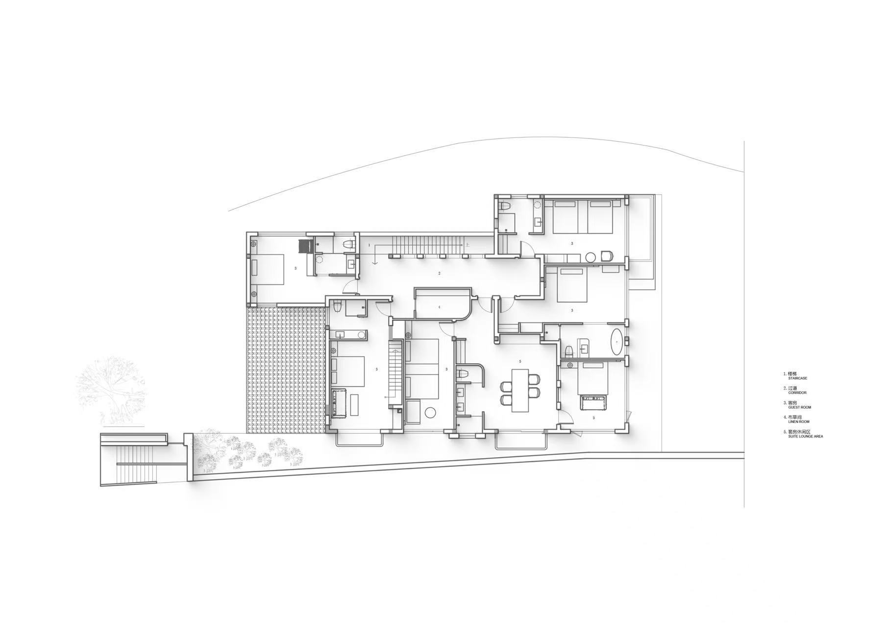
空间布局:在十间卧房的规划里,一间留作屋主的自住空间,剩余的作为经营性的客房使用,同时置入客餐厅、咖啡吧、公共阳台等必要的主体功能,使之形成完整的居住闭环,为所居山海提供更具现实生活感的解读方式。
-
设计选材:我们拒绝「修旧如旧」的伪饰,转而用当代设计解构渔镇基因:自老房拆下的虎皮石被重新切割打磨后,融入先锋的几何式建筑形式,钢筋混凝土的骨骼之外,粗粝的海砂包裹在地的建筑思考。空间与周遭石厝融为一体,又特立独行,亦代表当下的生活状态与传统渔村的交锋与交融。
-
用户体验:意樂岛不是避世乌托邦,而是现实与诗意的缓冲带。当黄昏的微光熨烫闪烁的海面;当海风穿过石厝,穿过树木枝叶的缝隙抵达,掀起轻柔缱绻的纱幔;当凝视的目光彼此交错凝固……这些被建筑石墙收藏的时间痕迹,终将在某个定格的瞬间,还原成值得一遍一遍反复品味的生活原浆。
0
0

认证 · 让您身份增值
58