-
项目定位:在城市中创造一处可以“像动物一样蜷缩起来”的家宅空间,是此案的精神内核。项目虽落址于温州市中心的繁华地带,但仍然希望通过设计的构思让其具有“隐于都市”的藏匿感与庇护性,为居住者提供一处向内沉潜的精神之所。
-
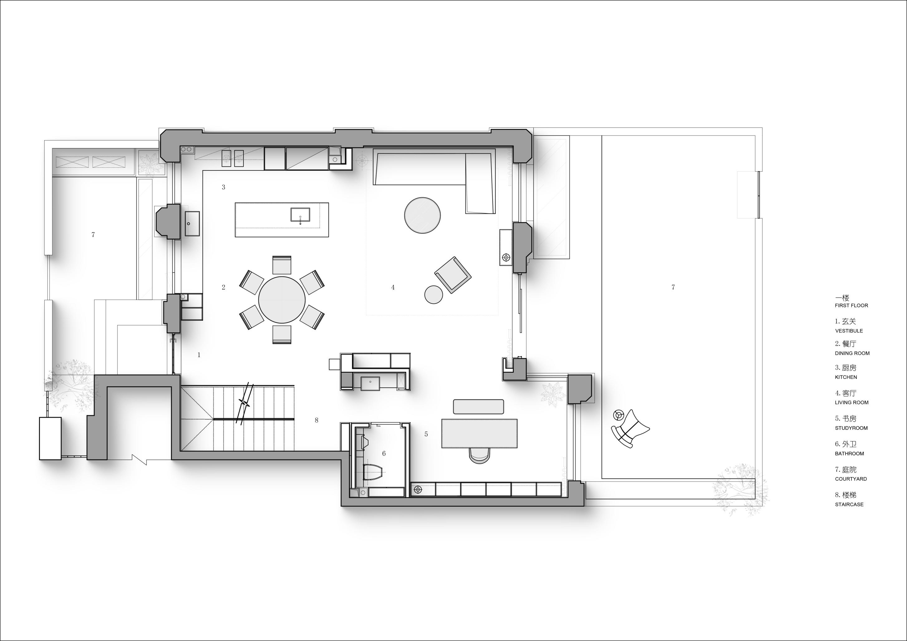
空间意境:一层作为公共核心区,设计希望最大化利用室外的庭院风景,通过大面积落地窗与玻璃移门系统,有效拆解了室内外的物理隔阂,使庭院葱郁的景致得以无缝渗透、融入室内。自此,空间、人、自然三者间达成无声而深刻的共鸣。设计中尽可能摒弃了多余的装饰与阻隔,以极其克制的态度,寻求场景构建的精准平衡。客厅沙发后方,开放式茶室以材质转换实现对区域的软性分隔,从墙面延伸至天花,均覆以温润的原木色饰面,营造出一种被自然材质包裹的沉浸氛围,在保障功能分区独立性的同时,完整维系了视觉的通透感与窗外景观的连续性。随着木质踏步的悬空楼梯向上延伸,理性的公区属性逐渐向温馨的私密空间过渡,自然延伸出木地板达成对情绪感知的划分,从而明晰功能区域间的界限。在楼梯转角设置一节向上的踏步,巧妙地形成一处相对独立的角落,两面落地窗为此地提供丰沛的照度,树梢的绿意笼罩,形成自然的切面,一张懒人沙发完成对这处特殊角落的最后勾勒。如此,一个仅供一人消遣的阅读场景便构建完成。当空间不再强迫人扮演社会角色时,真正的居住自由才正式开始。
此案以克制的设计语言,在市中心织就一张静谧的网,它不抗拒喧嚣,却让每一次归家都成为一次向自我的探寻过程,最终,空间超越了容器属性,成为滋养生活的梦想洞穴。
-
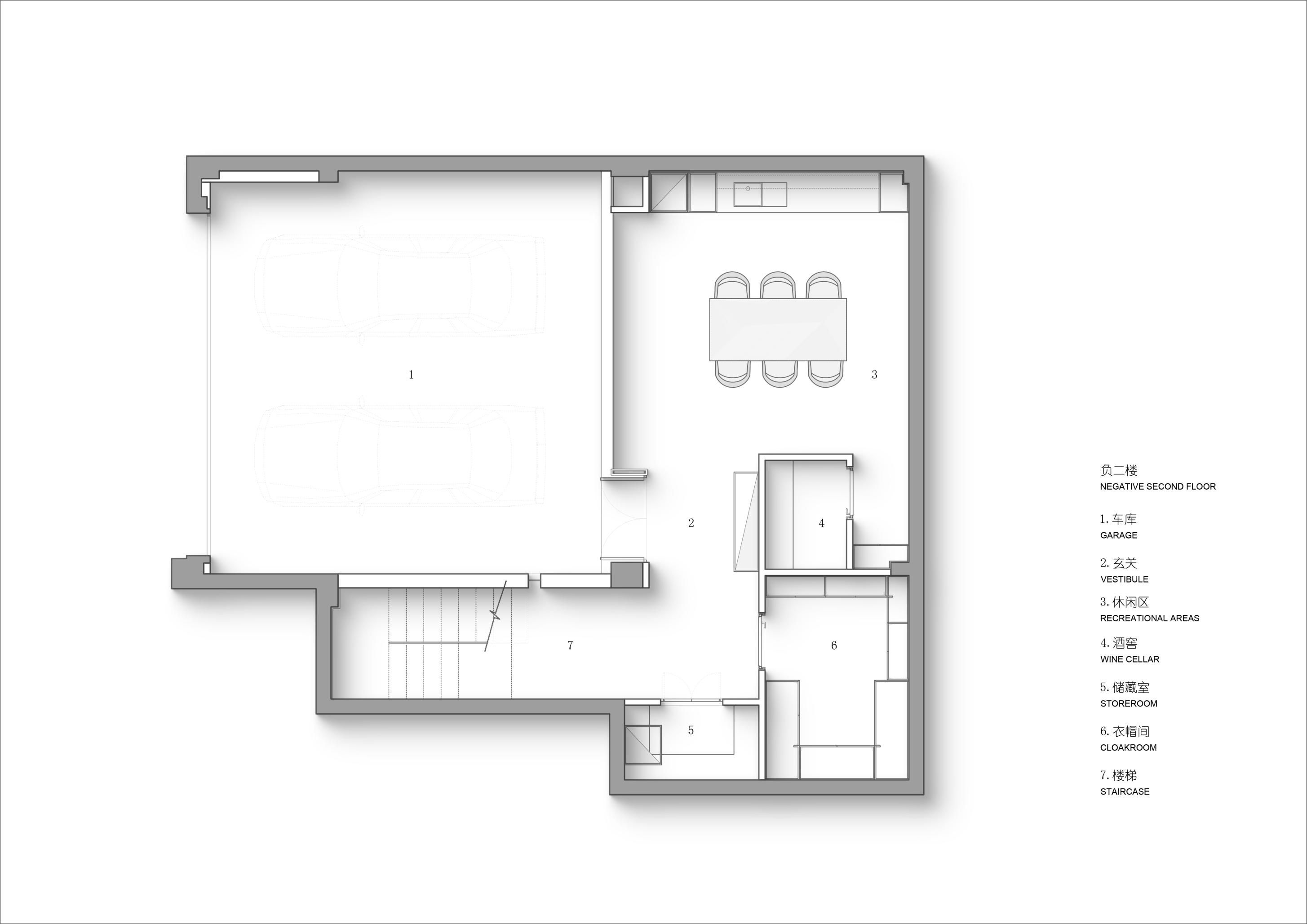
空间布局:夹层侧面采用通透玻璃,自下而上形成清晰的几何层次,同时引入一层的自然天光,带来向上的呼吸感。负一层设置酒柜与长桌,同时满足吃茶与喝酒的功能,但在座椅的选择上更倾向于营造“温柔的包裹感”,通过休闲沙发的置入,完成对生活本身自由性的解读。得益于地下空间的优越层高,我们得以通过夹层空间的引入,为场景赋予层次感与艺术性。
-
设计选材:开放式茶室以材质转换实现对区域的软性分隔,从墙面延伸至天花,均覆以温润的原木色饰面,营造出一种被自然材质包裹的沉浸氛围
-
用户体验:在家宅里,在家庭房间里,梦想庇护的人梦想着小屋、鸟巢、角落这些他可以像在洞里的动物一样蜷缩起来的地方。于是他生活在人类形象之外的地方。
0
0

认证 · 让您身份增值
51