华为智能展厅
45
作品说明
- 项目类型:展示
- 项目地点:温州市
- 建筑面积:380㎡
- 项目造价:220万元
- 竣工时间:2024年11月
-
项目定位:在设计的原初混沌中,光被赋予了造物的权柄。
华为智能展厅,正是以光为笔,在极简的纯白画布上,勾勒出空间的无限可能。这不仅是一场照明实验,更是一次关于感知的深度启蒙,一次对空间本质的哲学叩问。
-
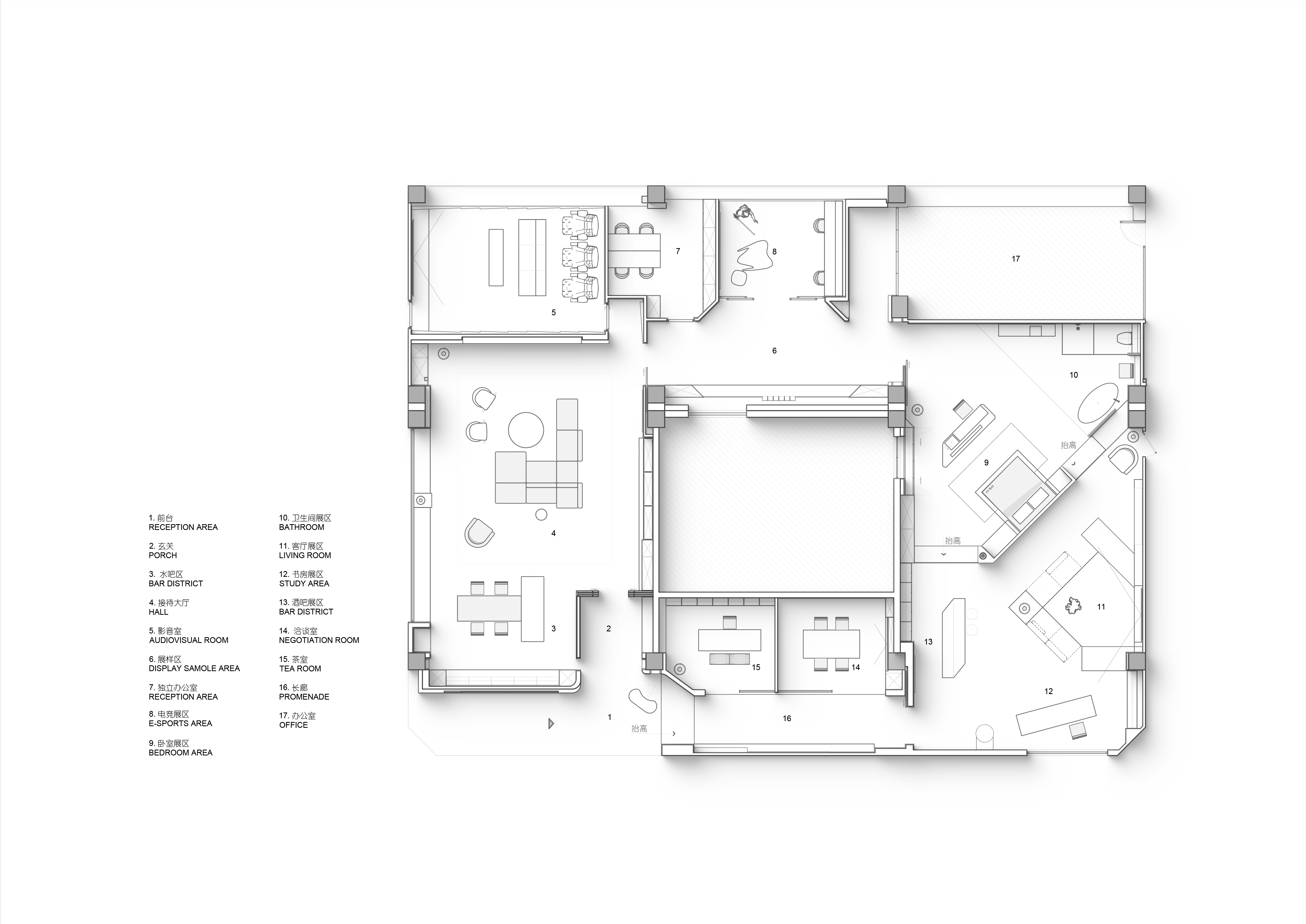
空间意境:步入展厅,两条路径悄然分野。对于目标明确、追求效率的访客,选择直行,一条路径直抵核心的接待与洽谈区。而针对初次到访的客户,右行踏入充满科技感的“光之甬道”,从而进入到一场精心策划的感知觉醒之旅。空间本身是极致的留白,所有实体皆为光的载体退让。按键启动,模式切换,光影瞬变。可以是白光覆盖,光谱精准模拟晨间情境,激活唤醒状态;也可以霓虹闪烁,表达夜晚派对的恣意与欢愉,任凭情绪沉沦;或是跌入黑暗,仅余临界微光与地脚线的线性指引,提供沉浸式的影音体验……华为智能展厅的光学实验,其价值远不止于一场炫目的灯光秀,更是一次光的权力宣言。光作为家居空间设计的核心要素,正在成为场景搭建与人类感知的绝对法则,服务于更具未来感的生活情境,为日常的生活节奏带来更多样的变化形式。霓虹实验,探索的不仅是视觉体验,更是我们对空间与光关系的认知。
此次华为智能展厅的空间设计,揭示光除了传统的辅助角色之外,同样可以担任核心叙事者,为商业空间构建新奇的体验印记,其效力远超传统展示媒介。当商业目的对象步出展厅,回望那扇门,改变的将不仅仅是对一处商业展厅的理解,更是在构想未来之家时,心中那束不可或缺的、充满无限可能的光。
-
空间布局:通道的尽头豁然开朗,一个关于家的“光学实验室”便徐徐展开。客厅、餐厨空间、卧室、卫浴、电竞室、影音室……以精妙的洄游动线串联。自然向内行走的过程,开始感知相同场景在不同灯光作用下的神奇体验。
-
设计选材:可以霓虹闪烁,表达夜晚派对的恣意与欢愉,任凭情绪沉沦;或是跌入黑暗,仅余临界微光与地脚线的线性指引,提供沉浸式的影音体验……华为智能展厅的光学实验
-
用户体验:为商业空间构建新奇的体验印记,其效力远超传统展示媒介。当商业目的对象步出展厅,回望那扇门,改变的将不仅仅是对一处商业展厅的理解,更是在构想未来之家时,心中那束不可或缺的、充满无限可能的光。
0
0

认证 · 让您身份增值