东方墨蘭
234
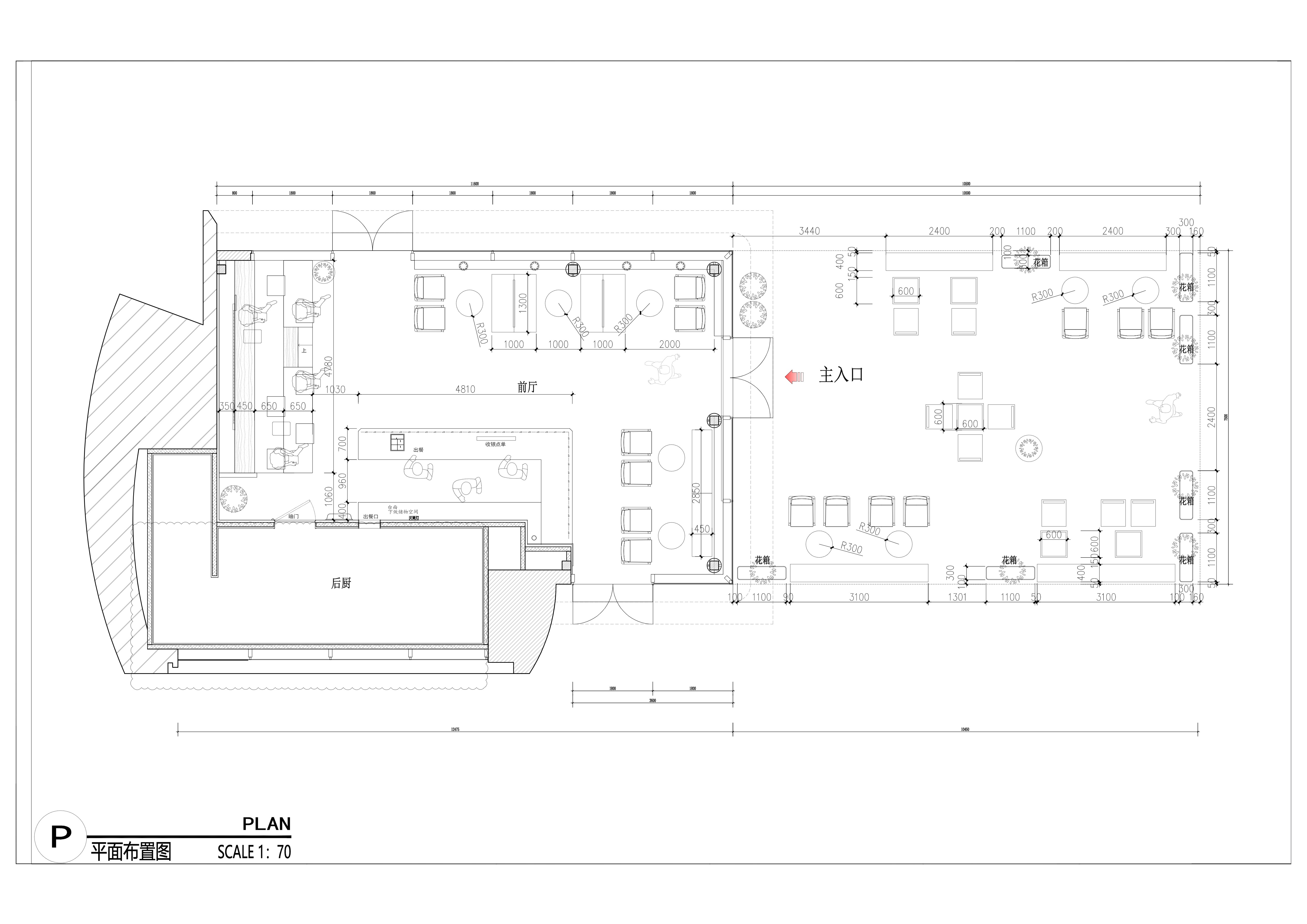
作品说明
- 项目类型:餐饮
- 项目地点:苏州市
- 建筑面积:180㎡
- 项目造价:63万元
- 参与设计师:NEO设计组
- 竣工时间:2025.09
- 设计机构:无锡市麦设计建筑设计顾问有限公司
-
项目定位:本项目定位为 “当代东方美学茶空间”。它不仅仅是一个提供茶饮的场所,更是一个融合了传统茶文化与现代设计语言的沉浸式体验空间。项目旨在打破传统茶馆的刻板印象,吸引年轻一代消费者,通过空间设计传递 “慢生活” 的东方哲学,打造一个集品茗、社交、文化体验于一体的城市第三空间。
-
空间意境:空间场景的创新点在于构建了一个 “墨竹秘境” 的沉浸式叙事空间。设计团队以 “竹” 为核心元素,通过大量的竹艺装置、竹编肌理和竹制家具,结合光影效果,营造出一种仿佛置身于竹林深处的自然意境。同时,将传统茶事流程艺术化、可视化,让访客在行走和停留中,都能感受到茶文化的熏陶,实现了从 “喝茶” 到 “体验茶” 的场景升级。
-
空间布局:空间布局的创新点在于采用了 “茴” 字形的回游动线设计。这种布局打破了传统茶馆的直线型或行列式布局,通过曲折的路径引导访客在空间中漫游,每一次转折都能发现新的景致,如转角的茶席、悬挂的艺术装置或透过窗格看到的竹影,从而延长了体验时间,增强了空间的趣味性和探索感,实现了 “步移景异” 的东方园林式体验。
-
设计选材:设计选材的创新点在于以低碳环保为原则,兼顾经济性与美学效果。项目大量使用竹材作为主要装饰材料,竹材生长迅速、可再生,符合低碳理念,且价格相对低廉,降低了材料成本。同时,竹材天然的纹理和温润的质感,为空间增添了自然气息。地面和部分墙面则采用了回收肌理石,这种材料不仅具有独特的艺术质感,而且通过回收利用减少了资源消耗,体现了可持续设计的理念。
-
用户体验:项目投入使用后,凭借其独特的设计风格和沉浸式的体验,迅速成为苏州中心的热门打卡地。用户评价其 “将东方美学与现代生活完美结合”,认为这里 “既有传统茶馆的雅致,又不失现代空间的舒适与活力”。许多用户表示,在这里可以暂时逃离城市的喧嚣,享受一段宁静的品茶时光,同时也乐于将这里作为与朋友聚会、交流的场所。空间的设计成功地提升了品牌形象,吸引了更多年轻消费者,实现了商业价值与文化价值的双赢。
0
0

认证 · 让您身份增值