建发朗云
39
作品说明
- 项目地点:南昌市
- 建筑面积:120㎡
- 项目造价:40万元
- 主案设计师: 袁达
- 竣工时间:2025
-
项目定位:整体设计需求,轻法,追求法式的线条和对称感,空间联动和结构层次,光线明亮通透,软装慵懒浪漫,考虑融入局部中国风元素,设计兼顾颜值和功能,生活动线合理,收纳有条不絮。配色以白色,暖色木质色为主,接受小面积的黑色与跳色度喜欢柔和,有生机的色彩。吊顶简单大气,不占层高。
-
空间意境:核心创新点在于剥离传统法式的繁复雕花与厚重奢华感,以“轻复古+现代简约”的融合逻辑重构空间,在保留法式浪漫精髓的同时适配当代简约生活需求。让浪漫氛围与现代生活的实用性完美兼容,同时还能通过少量个性化软装单品彰显居住者的审美个性,避免风格的同质化。
-
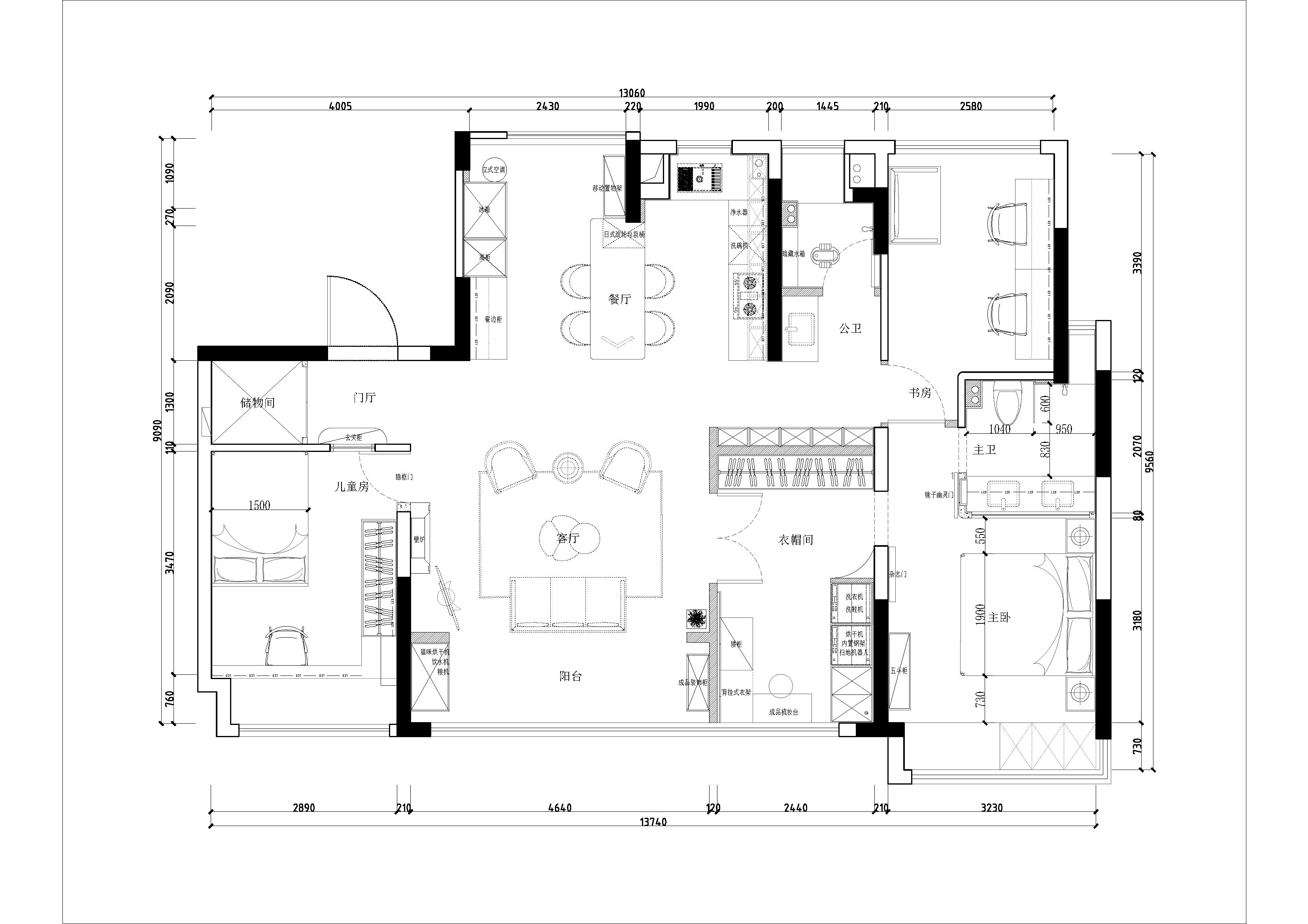
空间布局:原户型四房两厅两卫,南面有大阳台,北面有小阳台,因业主需求只要三房,刚需,未来育有一子,进门右手边考虑八百库收纳,独立玄关,进门房间保留房间功能,北面阳台打通,餐厨一体结合,做开放式厨房,客厅不按传统布局布置,可移动电视,维合式客厅布局,增加壁炉营造法式氛围感,南面中间房间缩小,扩大客厅开间,南面中间房间作为步入式衣帽间兼具洗衣房功能,全房通铺凡尔赛木纹砖塞,北面书房作为多功能书房,书房和主卧互通,既保留通风效果又能够出入方便。
-
设计选材:轻法式风格在低碳与经济性层面的创新点,在于用“简化造型+本土轻量材料+”替代传统法式的繁复装饰与高价主材,以低成本、低损耗的方式还原法式浪漫质感
-
用户体验:兼具浪漫质感与高性价比的优势。摒弃了传统法式的昂贵与繁复,用简化的石膏线条、平价乳胶漆和棉麻软装,就能打造出清新治愈的法式氛围。硬装省钱、软装灵活
0
0

认证 · 让您身份增值