青山印
45
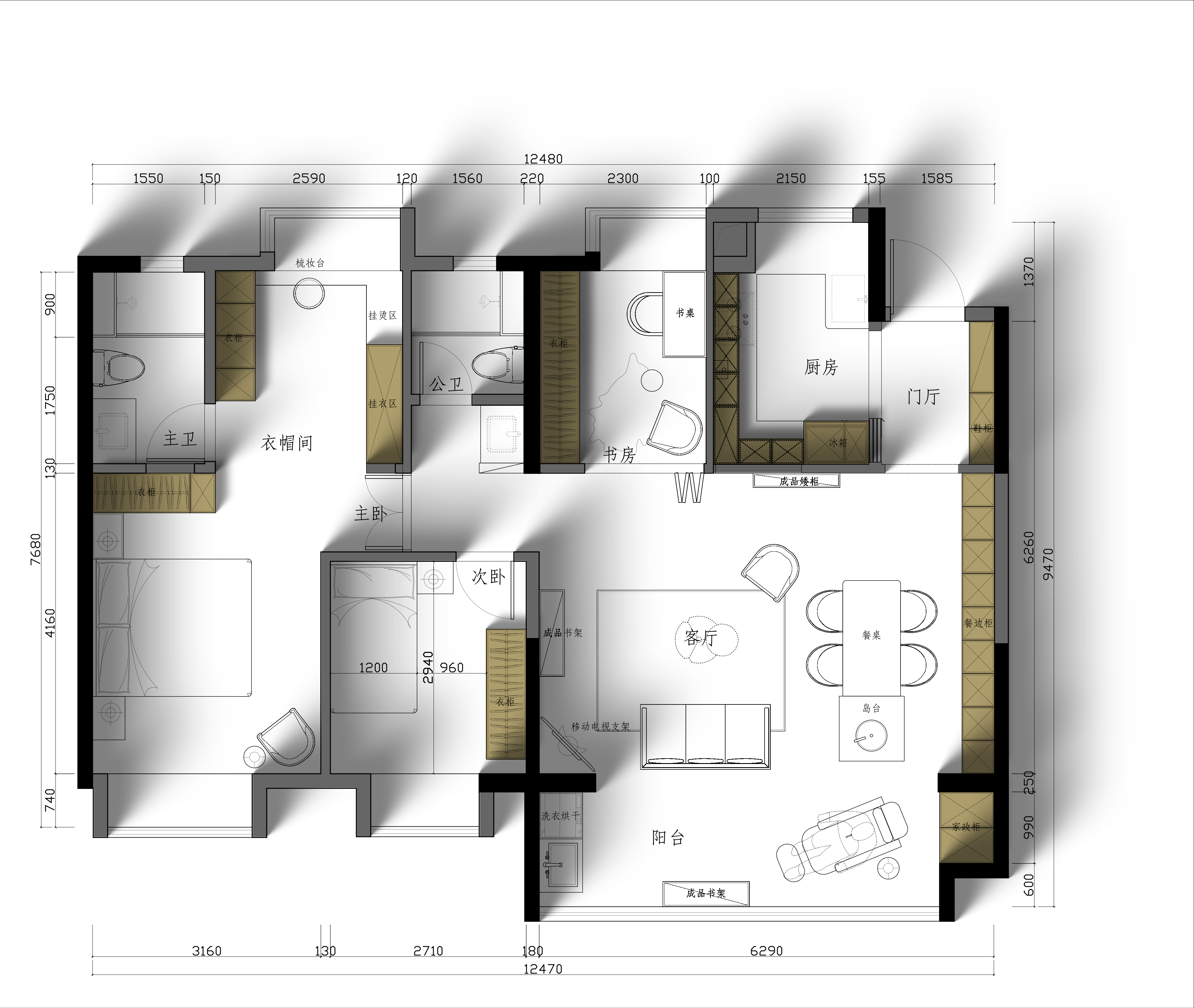
作品说明
- 项目类型:住宅公寓
- 项目地点:南昌市
- 建筑面积:112㎡
- 项目造价:40万元
- 主案设计师: 袁达
- 竣工时间:2025
-
项目定位:整体装饰定位在复古风,运用了一些复古元素,增加复古氛围,软装,灯饰,局部硬装,有个性的壁炉元素,木质藤编柜门,有个性的复古小砖,等,营造出复古氛围。
-
空间意境:原有户型一小四房,根据客户需求,只留有两个朝南房间作为卧室功能,南北主卧结合北面房间做一个套房功能,北面房间做为主卧独立衣帽间功能,改变之前从主卧进卫生间的门,改成从侧面衣帽间进,解决了卫生间门对主卧床的风水问题,原有客卫还是考虑干湿分离,中间北面房间,作为公共书房功能,原有大横厅还是继续做客餐厅一体功能,南面阳台解决洗衣晾晒,休闲等功能,不做常规的电视背景,做移动电视,客厅家具摆放可以随时调节,原有厨房动线比较饶,厨房收纳也不是很多,先改造,有独立的门厅,从门厅直接进厨房,动线更合理,厨房和大横厅直接新开了一个小窗口,增加了趣味性,以及有传菜备菜功能,橱柜增加成了u型,有更多的台面可操作。
-
空间布局:四房改两房的核心创新点在于打破传统多居室的割裂格局,以“大尺度通透+复合功能模块”重构居住空间,适配当代家庭对互动性、个性化与舒适度的高阶需求。
-
设计选材:复古风格在低碳与经济型层面的创新,核心是用“旧物再生+低成本复刻+简约施工”替代昂贵的复古原品与复杂造型,以环保理念降低装修成本,同时保留复古格调
-
用户体验:“低成本出效果”的高性价比,既营造出浓郁的复古氛围感,又大幅降低了装修预算,还契合当下的低碳环保趋势。
0
0

认证 · 让您身份增值