-
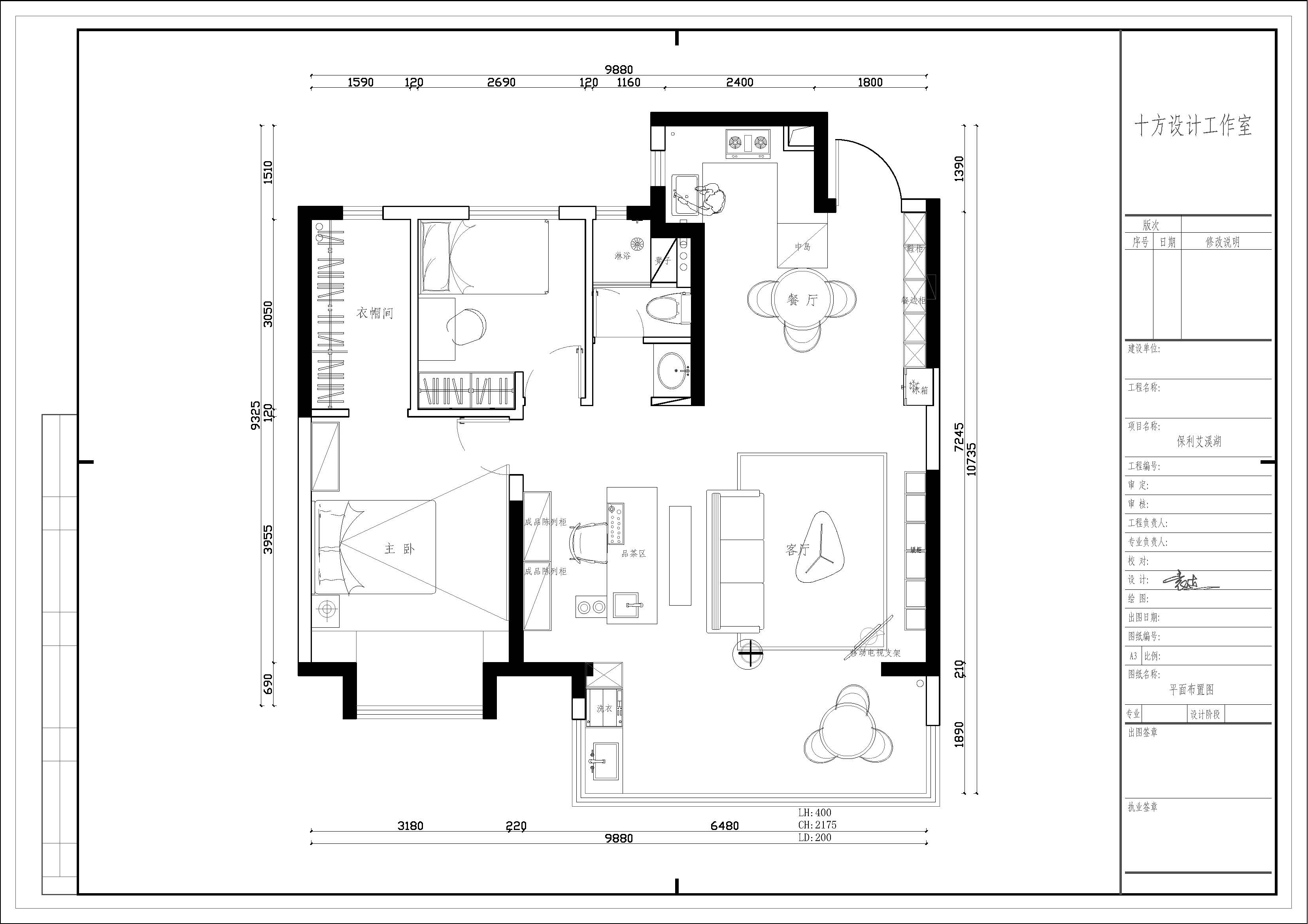
项目定位:本案属于刚需中间户型,小三房两卫,客户需求,一人养老房,需要个次卧客房功能,可以把主卫改成独立衣帽间,兴趣爱好,喝茶养花,尽量不做全屋定制,家具买成品柜,注重材料环保,客厅考虑大横厅,通透感,客卫干湿分离,吊顶保留功能性吊顶,尽可能保留层高,不做任何背景墙,设计的改造,开放式厨房,做了岛台的延伸,保留正常厨房使用功能的情况下,南面大阳台就有就餐区,去掉中间房间,保留大横厅效果,休闲和喝茶办公一体。整体风格定位,混搭,温馨自然通透,搭配材质,木亚麻,粗陶,藤,能够提升高级感和质感
-
空间意境:Japandi风格的核心创新点在于将日式侘寂的极简克制与北欧风的温暖实用做有机融合,打破两种风格原本的地域与功能边界,具体体现在材质、色彩、功能布局与线条设计的创新表达上——它摒弃日式传统单一的竹、麻、纸材质和北欧风偏爱的纯色木材,创新组合温润实木、哑光陶土、柔软羊毛与亚麻织物,既保留日式的自然质朴,又融入北欧的亲和触感;色彩上以日式的米白、浅灰、原木色为基底,加入北欧风低饱和的奶油黄、雾蓝、豆沙粉等柔和色调,弱化侘寂风的清冷感,同时避免北欧风的色彩杂乱;空间布局在日式“留白”的基础上植入北欧风的人性化功能设计,比如模块化收纳家具、可移动低矮边几,兼顾侘寂风的空灵意境与现代家庭的日常使用需求;线条则融合日式的直线条简洁感与北欧的曲线柔和感,家具多采用直线框架+圆润边角的设计,摒弃日式传统家具的厚重感与北欧风部分单品的夸张造型,更契合当代极简审美。
-
空间布局:创新点在于打破传统隔断式的空间边界,以“一体化+多功能”重构空间逻辑,适配当代人对开阔动线、复合场景和个性化生活方式的需求,体现在空间重构、功能整合、动线优化与细节设计的突破上,摒弃三室一厅各自独立的功能局限,通过拆除非承重墙实现客大横厅,打造出兼具社交互动与独处静谧的通透大空间
-
设计选材:低碳和经济性选材上的创新点,在于用低成本再生材料、本土自然材料替代传统高价原生材质,同时以“残缺即美”的风格内核减少加工损耗,既契合低碳环保理念,又大幅降低预算,利用材料本身的斑驳纹理天然契合侘寂的质朴感;墙面不做复杂找平与刷漆,直接采用低成本的硅藻土、稻草漆,这类材料不仅低碳环保、透气性好,施工简单还能省掉人工费用,其自带的肌理感也完美适配侘寂风的美学特质;软装方面用棉麻旧布料、手工粗陶残次品、藤编边角料制作抱枕、收纳筐与装饰摆件,既减少新材料的消耗,又能以低成本营造出岁月沉淀的氛围,同时还会采用可拆装的模块化家具替代固定装修,降低后期改造的材料浪费,真正实现低碳与经济的双重价值。
-
用户体验:这种融合日式侘寂与北欧实用的风格,既有着极简设计带来的通透静谧感,又因温润的木材、柔软的织物和人性化的功能布局,让空间不会显得清冷疏离,很适合追求舒适居家氛围的人群。
0
0

认证 · 让您身份增值
31