-
项目定位:以 “悠然见谷 世外桃源” 为核心灵魂,打造兼具自然意境与沉浸式体验的高端购物中心。立足 “幽谷画意” 的整体基调,融合四季更迭的自然美感与冰系独特景观,旨在为消费者构建一个远离喧嚣、兼具购物、休闲、社交、亲子互动等多元功能的复合型生活空间,成为区域内具有差异化竞争力的自然主题商业地标。
-
空间意境:以 “溪 - 枝 - 果 - 花 - 叶 - 露 - 云” 分层递进,搭配冰系元素,设全龄卫浴、宴会厅等功能区。
双主题融合四季自然与冰系景观,垂直空间元素递进叙事,创新材质兼顾功能与质感,风格与业态精准适配,打造独特沉浸感。 -
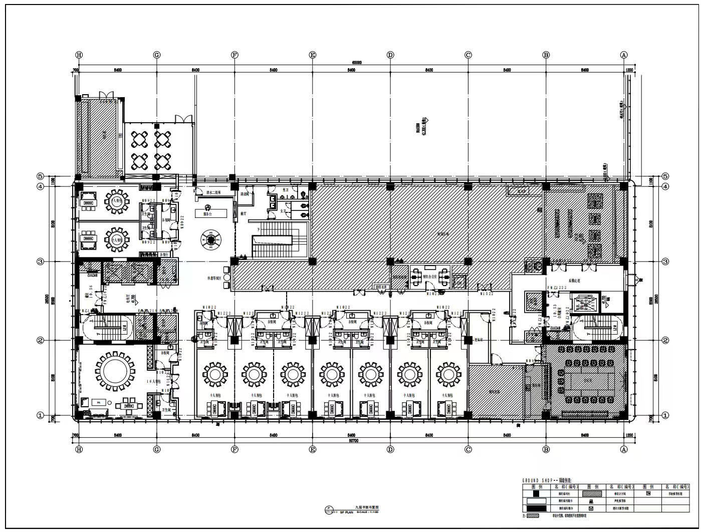
空间布局:整体遵循 “垂直分层 + 功能聚焦” 原则,以 “溪 - 枝 - 果 - 花 - 叶 - 露 - 云” 的自然元素为楼层核心标识,搭配冰裂、冰墩等冰系元素,形成主题递进的垂直空间。各楼层合理规划商铺、扶梯、客梯等基础功能区,强化 “热点 + 重要节点 + 次热点” 的动线节奏;配套全龄化卫浴体系(含母婴室、儿童卫生间等)及 8F 宴会厅,完善便民与高端社交功能,实现动线流畅性与功能多样性的统一。
-
设计选材:用基础装饰材质与创新功能材质。 选用 A 级防火、防水的功能性材质,减少后期维护中的材料损耗与环保隐患。
基础材质(铝板类)兼具装饰性与通用性,采购与施工成本可控;创新材质(彩色透光水泥)通过 “功能集成” 实现经济性,其发光、定制化特性可替代额外装饰构件,减少材料冗余,兼顾效果与成本效益,避免过度设计造成的浪费。 -
用户体验:以 “悠然见谷 世外桃源” 为核心,从多维度打造舒适、多元、沉浸式的用户体验。
空间体验上,垂直分层的自然与冰系主题元素营造独特沉浸感,动线流畅且节点设计富有探索感,让购物过程兼具观赏性与趣味性。
功能体验上,覆盖全龄需求,配备母婴室、亲子间、儿童卫生间、无障碍设施等细分卫浴场景,增设存包处、休息区等便民配套,8F 宴会厅拓展高端社交功能,满足购物、休闲、社交、亲子等多元需求。
细节体验上,选材兼顾质感与实用性,彩色透光水泥等创新材质提升空间高级感,业态与风格精准适配,让不同客群都能获得适配自身需求的舒适消费场景,实现功能与体验的双重优化。
0
0

认证 · 让您身份增值
760