-
项目定位:本项目以“都市核心区高端持续照料社区(CCRC)”为定位,专为追求品质的活跃长者及需照护群体服务。项目独特融合海派文化底蕴与现代康养理念,通过“医康养乐一体化”模式提供全周期服务,并凭借城市核心区位优势,让长者在熟悉的生活圈内享受高品质养老,自然维系原有社会连结。
-
空间意境:本项目以“海派雅韵融合现代简约”的风格突破传统,在公共空间中巧妙融入石库门、艺术装饰等本地文化元素,居住单元则采用明亮温馨的现代设计。通过空中花园与庭院连廊,打造立体渗透的景观体系,营造步移景异的沉浸体验。同时设置老上海风情沙龙、静修茶室等多主题公共空间,激发情感共鸣与社会参与,重塑了高端康养的环境体验。
-
空间布局:昆仑邸康养社区以提升长者自主性与便利性为核心进行空间规划。采用“垂直社区”分层布局,按独立生活、协助生活及专业护理等需求分区,实现高效照护衔接。公共区域通过无障碍环形动线连接餐厅、康体中心等多功能节点,促进长者自然流动与社交。设计注重公私过渡,居住单元保障私密性,公共空间则开放通透,形成“静-动”有序的节奏,平衡个人独处与社群互动。
-
设计选材:昆仑邸在选材上系统融合了环保、安全与经济性:广泛采用本土竹木、低VOC涂料及环保地板,从源头减少碳足迹;同时注重适老细节与耐久性,如防滑地面、防撞墙体与抗菌表面,在提升安全的同时降低长期维护成本;并结合高性能保温、Low-E玻璃与太阳能照明等节能技术,实现全生命周期的低碳运营与经济性平衡。
-
用户体验:该项目运营后获得积极反馈,有效提升了长者生活品质。用户普遍评价其“不像传统养老院,更像高品质住宅区”,对环境与丰富活动表示满意。便捷的康养设施与多元化课程促进了长者身心健康,开放式的公共空间设计也显著增强了社交互动与归属感。同时,家庭友好的探访环境与活动安排促进了代际交流。此外,合理的功能布局与耐用材料也提升了运营效率,为社区长期可持续发展提供了支持。
建筑外立面
生活融合区以浅暖色调为主,辅以蓝点缀,和谐舒适;布局上书架、休憩区有序分布,动线流畅;空间感方面,挑高设计搭配曲面造型与大窗,开阔通透,光影交织,营造出静谧雅致的阅读氛围。
生活融合区布局上,书架呈环绕与穿插式分布,形成半开放阅读隔间,休憩区桌椅依空间曲线灵活布置,动线自然流畅。
生活融合区布局上,书架呈环绕与穿插式分布,形成半开放阅读隔间,休憩区桌椅依空间曲线灵活布置,动线自然流畅。
生活融合区的挑高天花板与柔和曲面吊顶弱化了空间边界。自然光透过大窗与室内光影交织,在书架与桌面上落下斑驳光影。弧形门洞进一步增添趣味与纵深感,共同营造出一处静谧舒适、富于诗意的阅读天地。
生活融合区空间感塑造上,挑高的天花板配以柔和的曲面吊顶,弱化空间边界,大窗引入的自然光与室内灯光交织,在书架与桌面上投下斑驳光影。
餐厅以浅绿与白色为主调,搭配深色桌椅与绿植,营造清新氛围。空间通过层次天花、巧妙灯光、艺术装饰画与特色窗格丰富细节,拱形门洞与玻璃隔断则延伸了视觉体验,共同打造出优雅舒适的用餐环境。
餐厅以浅绿与白色为主调,搭配深色桌椅与绿植,营造清新氛围。空间通过层次天花、巧妙灯光、艺术装饰画与特色窗格丰富细节,拱形门洞与玻璃隔断则延伸了视觉体验,共同打造出优雅舒适的用餐环境。
餐厅局部,桌椅的藤编元素带来自然质感,与现代金属、玻璃材质相结合,刚柔并济。灯光设计兼顾功能与氛围,主灯与辅助灯光配合,营造出温馨且富有格调的用餐环境,整体尽显优雅舒适。
餐厅局部,桌椅的藤编元素带来自然质感,与现代金属、玻璃材质相结合,刚柔并济。灯光设计兼顾功能与氛围,主灯与辅助灯光配合,营造出温馨且富有格调的用餐环境,整体尽显优雅舒适。
活动区色彩搭配上淡雅宁静,浅蓝墙面与浅木色桌椅相得益彰,绿色瓷砖背墙增添一抹清新。布局规整且富有变化,拱形壁龛与开放式搁架组合,既展示物品又增加空间层次感,桌椅排列有序,适应不同使用场景。
活动区色彩搭配上淡雅宁静,浅蓝墙面与浅木色桌椅相得益彰,绿色瓷砖背墙增添一抹清新。布局规整且富有变化,拱形壁龛与开放式搁架组合,既展示物品又增加空间层次感,桌椅排列有序,适应不同使用场景。
活动区在材质选择上,木质的温润、瓷砖的光泽、金属的精致相互融合。整体风格兼具传统韵味与现代简约,为书法练习等文化活动提供了静谧雅致的环境。
活动区在材质选择上,木质的温润、瓷砖的光泽、金属的精致相互融合。整体风格兼具传统韵味与现代简约,为书法练习等文化活动提供了静谧雅致的环境。
健身房以浅木色与白色为主调,橙色健身器材点缀其中,营造出温暖且活力的氛围。
护理户型的设计秉持人性化、舒适与安全并重的理念,充分考虑到使用者的特殊需求,尤其是行动不便或需要护理的人群,力求在有限的空间内打造便捷、温馨且无障碍的居住环境。
护理户型的设计秉持人性化、舒适与安全并重的理念,充分考虑到使用者的特殊需求,尤其是行动不便或需要护理的人群,力求在有限的空间内打造便捷、温馨且无障碍的居住环境。
一室户型约现代的风格,空间布局紧凑合理,充分利用每一寸面积,满足日常生活的基本需求,同时注重舒适性与美观性的平衡。
一室户型约现代的风格,同时融入了音乐元素作为装饰亮点,营造出个性且温馨的居住氛围。
一室一厅户型的设计在简约现代的基调上,巧妙融入个性元素,营造出舒适且富有品味的居住环境。整体色彩以中性色为主,营造出宁静、温和的氛围。
一室一厅户型的设计在简约现代的基调上,巧妙融入个性元素,营造出舒适且富有品味的居住环境。整体色彩以中性色为主,营造出宁静、温和的氛围。
两室一厅户型保持统一性与现代感,以浅色系为主色调,搭配局部的亮色点缀,营造出清新、舒适且富有活力的居住氛围。空间布局合理,动线流畅,各个功能区既相互独立又紧密联系,提升了居住的便利性和舒适度。
两室一厅户型保持统一性与现代感,以浅色系为主色调,搭配局部的亮色点缀,营造出清新、舒适且富有活力的居住氛围。空间布局合理,动线流畅,各个功能区既相互独立又紧密联系,提升了居住的便利性和舒适度。
两室一厅户型保持统一性与现代感,以浅色系为主色调,搭配局部的亮色点缀,营造出清新、舒适且富有活力的居住氛围。空间布局合理,动线流畅,各个功能区既相互独立又紧密联系,提升了居住的便利性和舒适度。
两室一厅户型卫生间采用干湿分离布局,淋浴区独立设置,确保空间干燥整洁。配备白色安全扶手及镜柜,兼顾安全性与储物便利。墙面毛巾与置物架整齐有序,结合暖黄色灯带,营造出温馨而实用的盥洗空间。
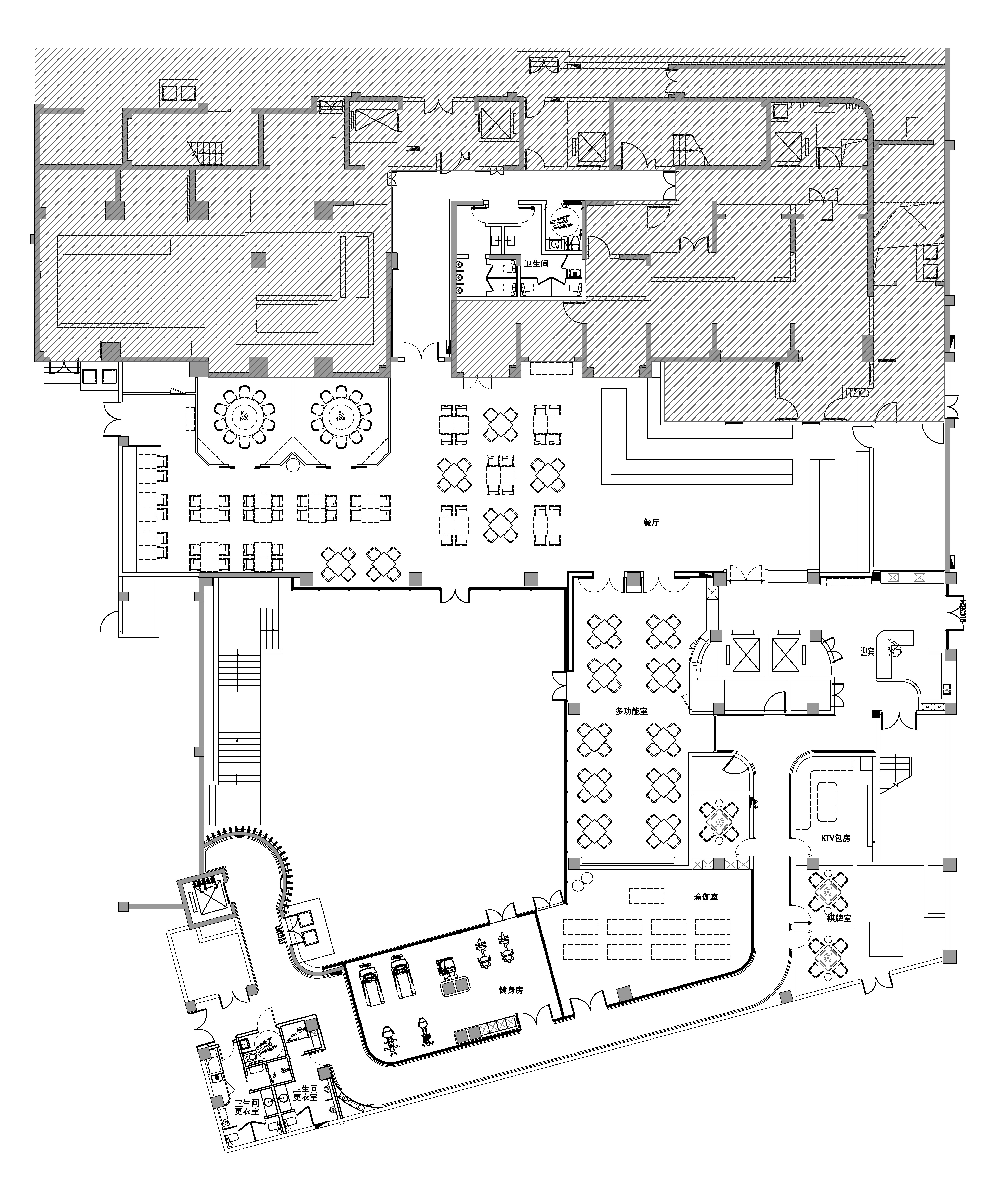
4号楼一层平面图
3号楼4号楼负一层平面图
0
0

认证 · 让您身份增值
269