上海张江之尚创享中心
303 - 项目类型:展示
- 项目地点:上海市
- 建筑面积:1100㎡
- 项目造价:250万元
- 竣工时间:2024年
- 设计机构:上海禾易设计
-
项目定位:项目定位为“历史记忆与科创精神交融的多元交流平台”。此项目基于原浦东水泥厂工业遗存进行改造,不仅是对建筑的物质更新,更是对张江从工业到科创演进历程的文化叙事。设计以“清创与登台”为理念,强调对原有工业痕迹的尊重与再现,而非覆盖或虚构,旨在打造一个兼具历史情感、艺术活力与未来愿景的创享枢纽。
-
空间意境:设计采用“工业遗存+极简现代”融合的风格语言。空间以银灰为主色调,搭配简约线条与几何形态,营造科技感与纯粹感。同时保留水泥柱、斑驳墙面、老物件等历史印记,通过光影设计与绿植点缀,为冷峻的工业基调注入温度与生机,形成“冷静与温暖、历史与未来”的对话场景。
-
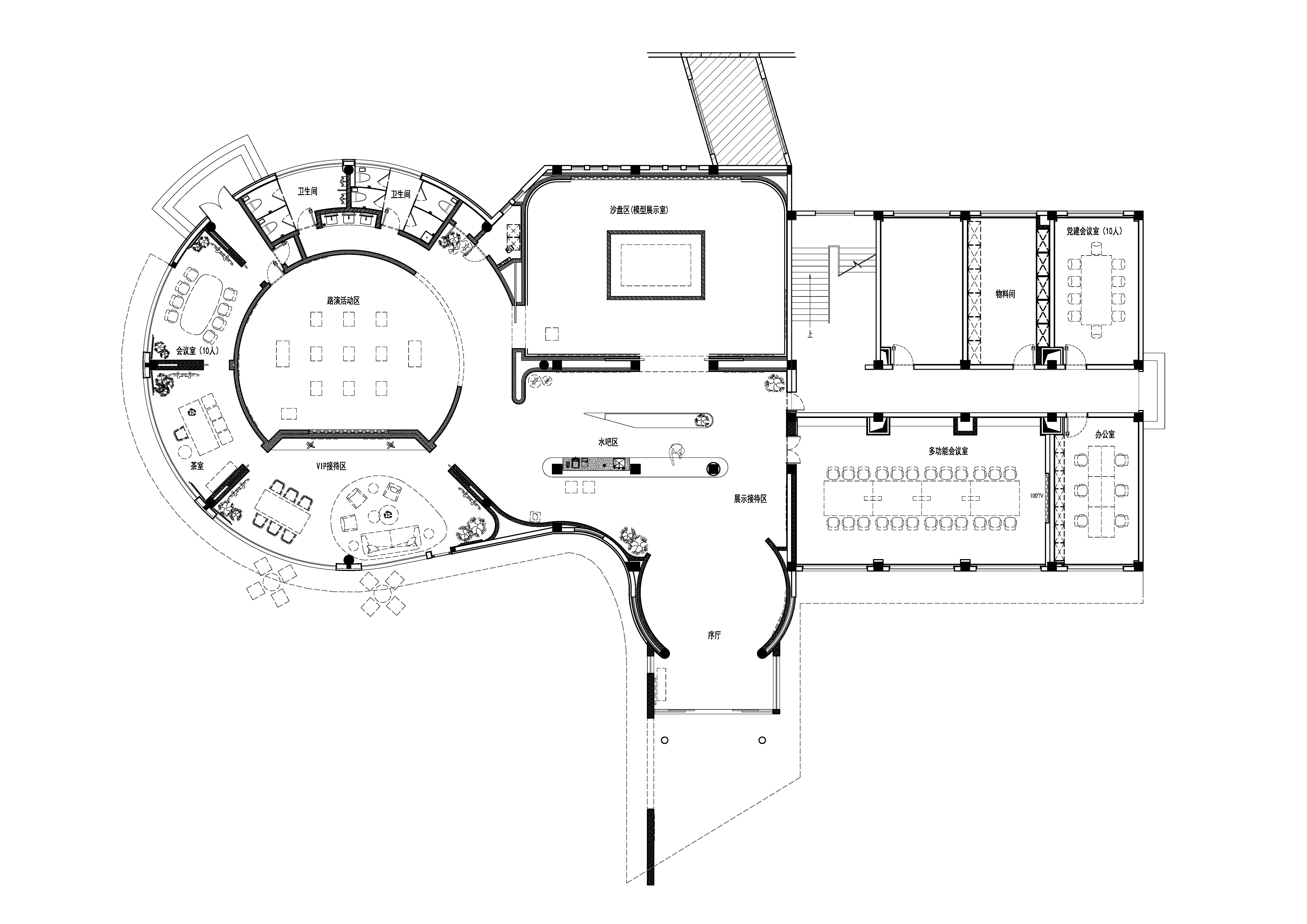
空间布局:布局以“叙事性流线”为核心,引导访客从历史展陈区逐步过渡至未来展望区,最终抵达洽谈休息区,完成“过去—未来—当下”的空间体验序列。动线清晰且富于节奏,功能分区包括:入口展示区、历史展陈区、沙盘与路演区、VIP室、茶室、会议室等,实现展示、交流、会议等多功能复合,提升空间使用效率与体验层次。
-
设计选材:选材强调“新旧对话”与可持续性:
保留与再利用:原有水泥结构、砖墙、工业构件等被大量保留,减少新建材消耗,降低碳足迹。
环保新材:选用低碳、可回收的现代材料,如环保涂料、再生金属等,体现绿色更新理念。
经济性控制:在有限的成本内,通过设计手法提升空间质感,如通过灯光、软装与艺术陈列增强氛围,避免过度装饰。 -
用户体验:空间投入使用后,成为张江区域重要的文化与科创活动载体。用户反馈普遍认可其“历史与未来交织”的氛围营造,认为空间既有工业遗存的厚重感,又不失现代办公与展示的舒适性与开放性。尤其通过虚拟演绎、立体展陈等手法,增强了对园区规划与产业布局的理解,提升了参观的互动性与启发性。
建筑入口门头改造
建筑入口门头改造
入口门头改造,现代材质融合自然,简约而富有意境。
入口序厅,现代材质融合自然,简约而富有意境。
入口序厅,粗犷材质搭配绿植,营造自然氛围。
展示接待区,简约曲线空间,勾勒出现代与科技极简与无垠。素净的色调,回应着历史的峥嵘与壮丽。
展示接待区,简约曲线空间,勾勒出现代与科技极简与无垠。素净的色调,回应着历史的峥嵘与壮丽。
展示接待区,简约曲线空间,勾勒出现代与科技极简与无垠。素净的色调,回应着历史的峥嵘与壮丽。
展示接待区,水泥厂曾经的印记,经设计的艺术化整合后,传承着对过去工业历史的致敬。
展示接待区,斑驳的路牌与泛黄的奖状,镌刻着往昔的辉煌;一张张饭票,承载着一代人的集体记忆;工厂的铃声仿佛仍在回响,敲击着时代的节奏;手绘的宣传报、传递的计时器,印记着朴素而炽热的岁月;老电视里,仍放映着生产的热潮与工人们的笑泪往事。
展示接待区展示细节,工厂里回荡的铃铛声,敲击出整个时代的节奏;比赛时分传递的计时器,记录了多少专注与欢笑;工人们亲手绘制的宣传报,印刻着朴素却炽热的热情等等
路演活动区入口,混凝土柱与金属扶手、柔和的墙面等材质结合,形成强烈对比,既展现工业风的原始质感,又融入现代设计的精致感,营造独特视觉张力。
路演活动区,而对未来的规划,也作为展示内容被精心融合到整个空间内。有立体展陈、有虚拟演绎,它们以独特方式,生动地为访客解读着——对未来的期许。
VIP接待区,当访客完成对历史与未来的观览,步入休息洽谈区,便意味着回归当下。空间采用大面积弧形玻璃窗,消融室内外界限,引入自然景观成为室内一景,营造开阔通透的视觉体验。
VIP接待区,软装搭配上,棕色皮质沙发与单椅搭配木质茶几,材质碰撞增添质感。家具造型简约,线条流畅,符合现代审美,同时保证舒适性。
VIP接待区,软装搭配上,棕色皮质沙发与单椅搭配木质茶几,材质碰撞增添质感。家具造型简约,线条流畅,符合现代审美,同时保证舒适性。
茶室,突破传统茶室较为封闭的布局,以大面积通透的垂直纱帘取代实体墙,模糊室内外界限,将自然景观以柔和方式引入,创造独特视觉体验。
茶室,利用纱帘的透光性,使自然光线经过滤后以均匀、柔和的光影效果洒入室内,营造出动态且富有诗意的光影氛围,随时间变化呈现不同美感。
沙盘区(模型展示室),采用曲面天花板打破传统格局,营造流动的未来感;墙面影像与实体模型虚实结合,增强了展示的沉浸感与信息传达效果。
多功能会议室,以暖木与浅灰色调平衡,营造温馨而沉稳的氛围。利用长走廊引导视线至内部大屏,形成视觉轴线,增强纵深感与整体连贯性。
一层平面图
0
0

认证 · 让您身份增值