金华十二衫房开元名庭度假酒店
153 - 项目类型:酒店
- 项目地点:金华市
- 建筑面积:7000㎡
- 项目造价:2500万元
- 竣工时间:2024年
- 设计机构:上海禾易设计
-
项目定位:酒店定位为集自然体验、文化艺术与休闲度假于一体的高端生态度假酒店。项目坐落于燕雨湖综合开发区内,被金色稻田环绕,强调“与自然共生”的理念。设计以十二棵杉树为精神象征,贯穿整体空间叙事,融合乡村记忆与现代美学,旨在打造一处既能感受田野四季变化,又能体验静谧山居生活的目的地。
-
空间意境:酒店空间设计融合自然与人文,通过大量采用夯土、竹编、旧木、麻布等质朴材料,在乡土温暖中注入现代简约气质。同时,借助大面积落地窗、格栅与半透屏风,将室外稻田、竹林与山溪景观引入室内,塑造出随时间变化的光影剧场,如大堂中斑驳的阳光与墙面上摇曳的树影。艺术装置进一步强化空间叙事,以杉树形态为主题的手工织物点缀墙面,描绘乡间小径与林木意象,不仅呼应“十二杉树”的视觉符号,也唤起来自土地与自然的情感联结。
-
空间布局:在空间布局上,酒店注重功能复合与流动性,使会议室兼具书店功能、咖啡厅融合阅读、社交与观景,极大提升了空间的使用弹性与场景适应性。通过错层设计、挑高空间以及弧形楼梯的运用,既增强了视觉层次与仪式感,也保持了整体通透连贯的空间体验。此外,大堂、餐厅、酒吧及客房等不同功能区,借助材质、色调与光影的自然过渡,形成了一条“移步换景”的流畅动线,使客人在空间中行进时,不断感受到场景的转换与情绪的递进。
-
设计选材:在选材与细节处理上,设计秉持可持续理念,大量选用夯土、旧木、竹编等本土可再生材料,降低环境负荷的同时,呼应地域肌理。整体色调以浅木色、豆绿等低饱和度色彩为基础,与窗外自然景致和谐相融,共同营造出宁静放松的氛围。此外,空间中融入手工编织织物、金属镂空灯罩等精湛工艺细节,既提升了视觉的艺术层次,也延续了在地手工艺的温情与记忆,使空间在低调中蕴含人文深度。
-
用户体验:酒店为用户营造出深度的沉浸式自然体验:无论是在咖啡厅欣赏四季更迭的稻田风光,还是在客房内感受树影婆娑与远山溪流的静谧,皆可实现“身在室内,心在自然”的舒心境界。空间设计兼顾多元场景,既适于独自阅读静思,也满足朋友聚会、会议办公等多样化需求,灵活适应度假与商务的不同情境。更重要的是,通过材质、光影与艺术的细腻交融,空间唤起人们对土地、森林与传统生活的温情记忆,从而建立起深厚的情感联结与归属感。
建筑(网络照片)
大堂接待,设计巧融自然现代之韵,创特色光影格局,以精微细节雕琢舒适雅致空间。
大堂接待,设计巧融自然现代之韵,创特色光影格局,以精微细节雕琢舒适雅致空间。
大堂接待,大胆将传统木屋的斜屋顶与阁楼结构融入现代室内空间,打破时空界限,使传统建筑元素在现代语境下焕发出新的活力,创造出独特的空间形态。
大堂接待,以传统编织纹样为灵感的墙面装饰布局,打破常规单调;细节处光影、材质搭配精妙,共筑典雅美境。
大堂吧,以竹为材构建庞大天窗框架,打破传统建筑结构形式,既展现竹材独特韧性美,又营造出通透、自然的顶部景观,让室内外空间产生微妙互动。
大堂吧采用竹制格栅门进行空间分隔,在保持通透流动的同时,亦注入东方韵味与自然肌理。墙面以多重材料塑造立体森林景致,打破传统平面装饰,将自然元素艺术化呈现,赋予空间视觉张力与沉浸氛围。
大堂吧,采用竹制格栅门作为空间分隔,既保留了空间的通透感与流动性,又增添了东方韵味与自然质感,形成独特的空间划分方式。
大堂吧,通过不同高度、形式的隔断与家具组合,营造出半开放、多层次的空间格局,既保证私密性,又增强空间互动性与流动性。
早餐厅以木质格栅与圆形镂空结合的隔断为特色,在有效划分区域的同时,赋予空间通透的韵律与趣味。木质、藤编、陶瓷等自然材质相互融合,在对比中达成和谐,共同塑造出既质朴自然又不失精致的整体氛围。
早餐厅以木质格栅与圆形镂空结合的隔断为特色,在有效划分区域的同时,赋予空间通透的韵律与趣味。木质、藤编、陶瓷等自然材质相互融合,在对比中达成和谐,共同塑造出既质朴自然又不失精致的整体氛围。
早餐厅以橙棕色小瓷砖铺就半墙,既保护墙面,又以其色调与质感注入复古自然的格调。阳光透过玻璃窗,在木质桌椅与编织椅面上洒落斑驳光影,随时间流转而变幻,为空间增添动态美感与温暖氛围。
早餐厅,靠窗设置卡座与餐桌,在满足用餐功能的同时,将窗外开阔的田野与远山景观纳入视野,打造出“景中用餐,餐中赏景”的独特体验。
会议室,标识牌材质与墙面质感相协调,粗糙墙面凸显标识的精致,形成质感对比,强化视觉焦点,同时展现出自然质朴的风格。
会议室,将大型书架与休憩卡座相结合,打破传统展示与休息区域分离的模式,既满足了书籍、装饰品展示需求,又提供了舒适的阅读休憩空间,实现功能复合化。
会议室,在整体沉稳的色调中,选用鲜亮的绿色餐椅作为点缀,形成强烈的色彩对比,瞬间吸引视线,为空间注入活力与生机,打破传统餐厅色彩搭配的常规。
会议室,在整体沉稳的色调中,选用鲜亮的绿色餐椅作为点缀,形成强烈的色彩对比,瞬间吸引视线,为空间注入活力与生机,打破传统餐厅色彩搭配的常规。
酒吧采用黑色金属框架悬挂式酒架,线条简洁、形态几何,赋予空间现代通透的视觉焦点。酒瓶于木质吧台整齐排列,标签统一朝外,既便于识别,亦通过丰富的品牌与款式陈列,展现专业品藏。
酒吧,采用大型圆形网状吊灯,以独特造型成为空间视觉中心。网状结构在灯光映照下产生丰富光影效果,同时其排列方式营造出空间的韵律感与通透感,打破传统吊灯的单一样式。
酒吧,红砖的粗糙质感、黑色金属的硬朗、皮质座椅的光滑以及藤编椅的编织纹理相互对比,丰富了空间的触觉和视觉感受,展现出自然与工业风格的巧妙结合。
酒吧,楼梯台阶材质在光影下展现出细腻的纹理,与黑色金属扶手的精致形成对比。扶手的金属网眼设计不仅增加了安全性,还透过光线形成独特的光影图案,丰富了视觉层次。
包房将电视嵌入墙面,融入整体简洁风格,兼顾用餐娱乐需求。斜顶设计打破常规,增强空间立体感。深色木地板、藤编椅、墙面软包与金属吊灯相映成趣,不同材质碰撞丰富触感与视觉层次,呈现自然与现代的融合格调。
包房内,木质餐桌、藤编椅、深色墙面与金属吊灯相映成趣,不同材质的搭配丰富视觉与触感,自然与现代风格于此融合。大面积窗户将室外绿意引入,树木与室内交织如画,让用餐者在室内亦沉浸于自然气息之中。
客房,采用开放式布局,将客厅与部分餐饮或休闲区域相连,打破传统空间的封闭感,增强了空间的通透感与互动性,使整个区域显得更加宽敞明亮。
客房采用绿色天花板,大胆呼应窗外竹林,为空间注入自然活力。大面积落地窗将竹景引入室内,窗台绿植进一步延伸自然氛围,让人于室内沉浸于盎然绿意之中。
客房采用绿色天花板,大胆呼应窗外竹林,为空间注入自然活力。大面积落地窗将竹景引入室内,窗台绿植进一步延伸自然氛围,让人于室内沉浸于盎然绿意之中。
客房通过大面积落地窗将竹林景观引入室内,窗台绿植进一步延伸自然意境。木地板的温润、织物的柔软、装饰画的肌理与金属壁灯的光泽交织融合,不同材质和谐共生,营造出自然与现代平衡的感官体验。
客房内,绿色天花板与玻璃砖彼此呼应,与木质墙面的暖色调大胆碰撞,营造出活泼而富有层次的空间氛围。木质纹理、玻璃光泽与编织盘的粗粝质感相互交织,在触觉与视觉上展现了自然材质与人工材质的和谐共生。
客房内,绿色天花板与玻璃砖彼此呼应,与木质墙面的暖色调大胆碰撞,营造出活泼而富有层次的空间氛围。木质纹理、玻璃光泽与编织盘的粗粝质感相互交织,在触觉与视觉上展现了自然材质与人工材质的和谐共生。
客房,绿色天花板与绿色小瓷砖墙面相呼应,为空间注入自然活力元素,与木质地板、家具的暖色调形成鲜明对比又和谐统一,创造出独特的视觉效果,打破传统空间色彩的单调感。
客房卫生间设大面积窗配百叶帘,灵活调节光线与隐私,同时将窗外绿意引入室内。使用者洗漱时亦可观赏自然景致,一改传统卫生间的封闭昏暗,营造明亮通透的全新体验。
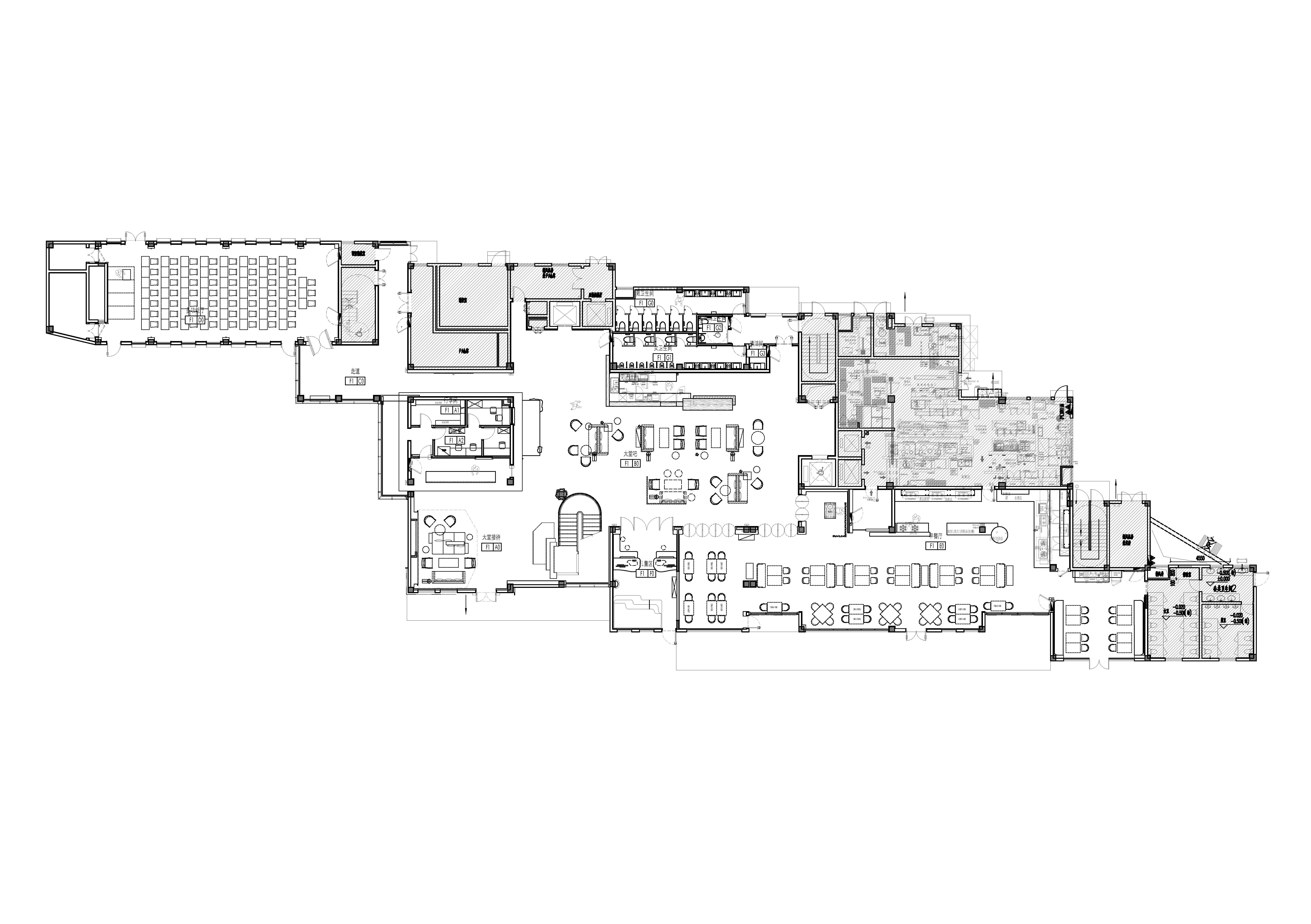
5号楼一层平面图
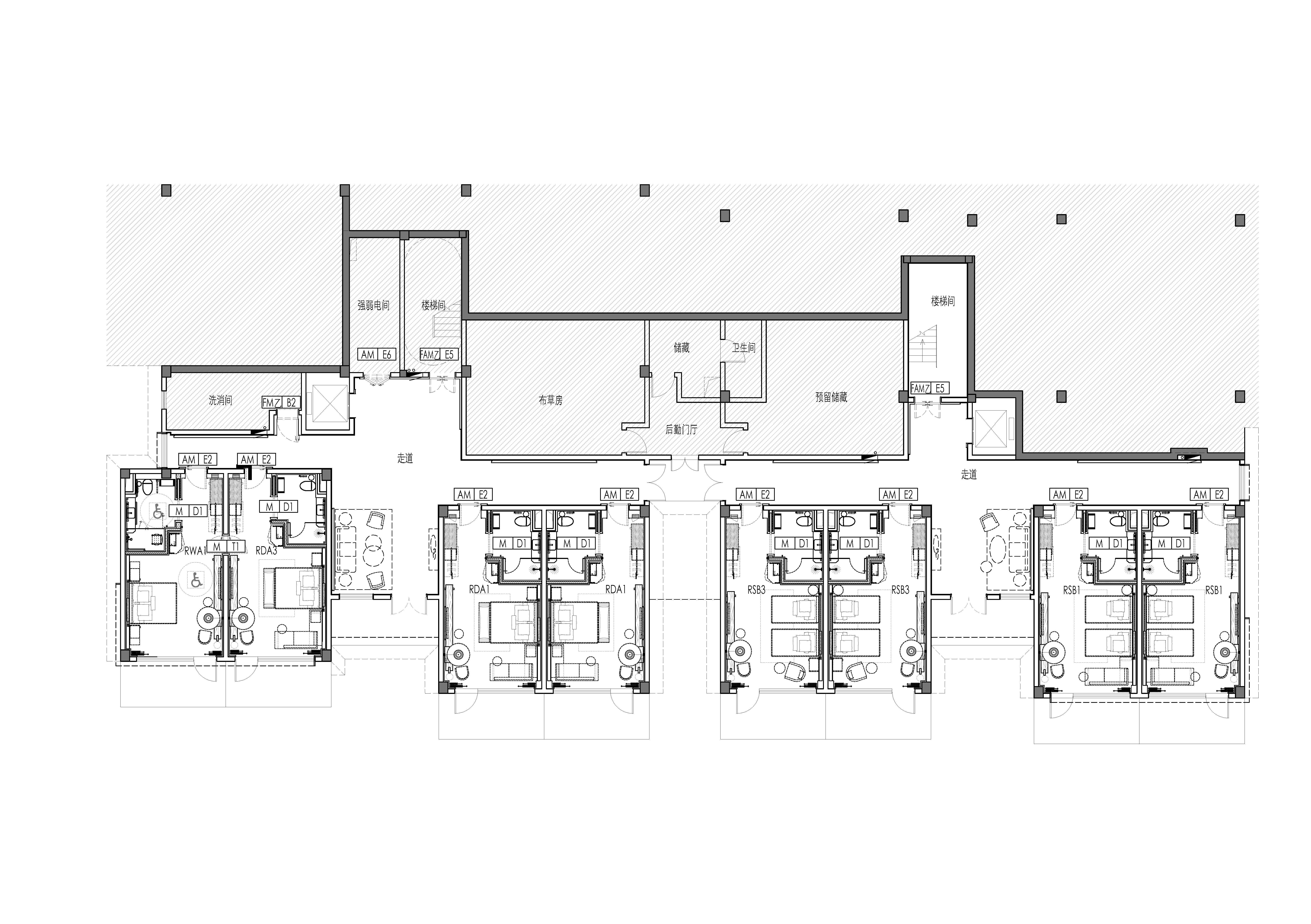
3号楼一层平面图
0
0

认证 · 让您身份增值