-
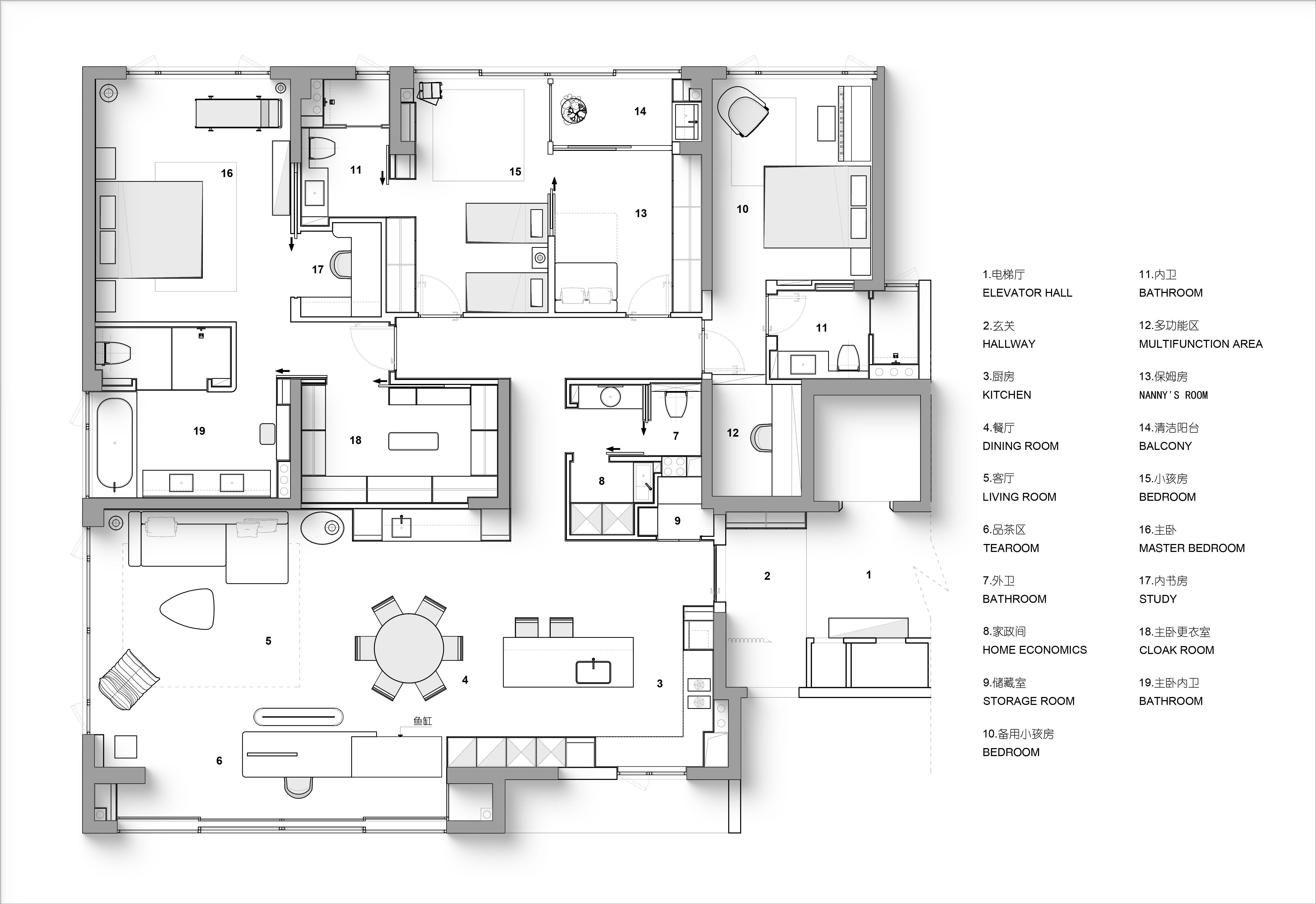
项目定位:当一处居所被赋予承载一个四口之家的多元生活时,设计就不再只是风格的表达,而更专注于对生活本质的探索。面对居住者本身多元的兴趣爱好,如何在有限的面积中获得功能性的平衡,又如何在丰盈的场景中让喧嚣退隐,将静谧定位为可被感知的日常,是此次设计的重点。
-
空间意境:面对窗外近邻这一城市居住的典型困境,设计以一道可开合的木格栅屏风作为对隐私的回应,光线经由格栅的宣纸过滤后,形成柔和的漫射,在遮挡窗外视线的同时,为茶室注入悠然的韵味。公共区域的完全贯通,打破了功能分区的传统界限,客厅、餐厅、厨房、茶室形成了连续的空间序列,视线与动线在其中自由穿梭。音乐角、茶席与鱼缸……这些承载着主任爱好的元素,被精心编织进空间的脉络中,彼此连贯呼应,形成一种内在的循环节奏。在无实体隔墙的开放式平面中,色彩的明暗变化便成为了界定空间功能的隐形语言,从客厅区域的浅米白、原木色,到餐厅区域逐渐加深的色调,色彩在空间中形成了如同自然光线带来的微妙渐变,而一抹突兀却恰到好处的亮红色吧椅,打破了中性色调的平衡,为空间注入灵动的活力,暗示着生活本身应有的生动。主卧套房以纯粹的米白与原木材质构筑,摒弃一切冗余的装饰,在这里,设计退居幕后,将空间完全交还给居住者本身的身体感知。套房内整合睡眠区域、三分离式卫生间、更衣空间以及功能简单的书房,构成了一个完整的生活系统,不仅提高了生活效率,更重要的是,它创造了一个完全自足的私密领域,夫妻二人可以在此完成大部分的日常所需,无需频繁地穿越公共区域,从而获得真正意义上的精神独立与安宁。儿童房的设计体现了设计师对更长远的居住时间的考量。通过可开合的联动门系统,联通保姆房与儿童房,在孩子幼年时期便于集中照料;而等到孩子成年后,打开开合结构并入保姆房,形成完整独立的卧房,与另一个备用房间一起,为两个孩子提供各自独立的私享空间。
-
空间布局:公共区域的完全贯通,打破了功能分区的传统界限,客厅、餐厅、厨房、茶室形成了连续的空间序列,视线与动线在其中自由穿梭。音乐角、茶席与鱼缸……这些承载着主任爱好的元素,被精心编织进空间的脉络中,彼此连贯呼应
-
设计选材:浅米白、原木色,到餐厅区域逐渐加深的色调,色彩在空间中形成了如同自然光线带来的微妙渐变,而一抹突兀却恰到好处的亮红色吧椅,打破了中性色调的平衡,为空间注入灵动的活力,材质的触感、光线的温度、空气的流动……这些细微的感知被不断放大,成为了空间的主角。
-
用户体验:设计并没有去追求形式上的风格或宁静,而是试图在喧嚣的都市中,开辟一处直面生活本身的现实化领域,以克制的姿态,为一家四口构筑了一个能够容纳光阴与情感的背景式空间。
0
0

认证 · 让您身份增值
98