-
项目定位:木槿花的特性在於其韌性,日出而開、日落而更替,卻始終保持優雅。本案靈感汲取自木槿花瓣的「重疊與弧線」。我們看見都市生活中,居住者面對結構樑柱帶來的壓迫感(痛點),如同花苞破土前的阻力。
因此,我們以「弧形」作為空間的流動頻率,將剛硬的樑柱轉化為如花瓣般的包裹感。透過低彩度的特殊塗料,營造出一種「晨霧中的木槿花瓣」質感,讓空間不再只是冰冷的建材堆疊,而是具有溫度的生活容器。那抹靛藍色的沙發,則是花蕊中的深邃,點亮了整片靜謐,讓居住者與毛孩能在這片寧靜中,重新找回生活的共鳴。 -
空间意境:【核心意象:追求視覺降噪與情緒安定的當代生活者】
.視覺減法追求者: 他們厭惡瑣碎的裝飾,偏好能在大量「消色調」中找尋生活重心的空間,追求一種極致的視覺降噪體驗。
.物種共生實踐者: 將寵物視為平等的空間使用者,核心需求在於建立一個無須妥協、能讓不同物種自由交互的共生介面。
.高感性專業人士: 具備深厚的審美底蘊,比起表象的華麗,更在意材質觸感與結構線條在不同光影下的層次演變。 -
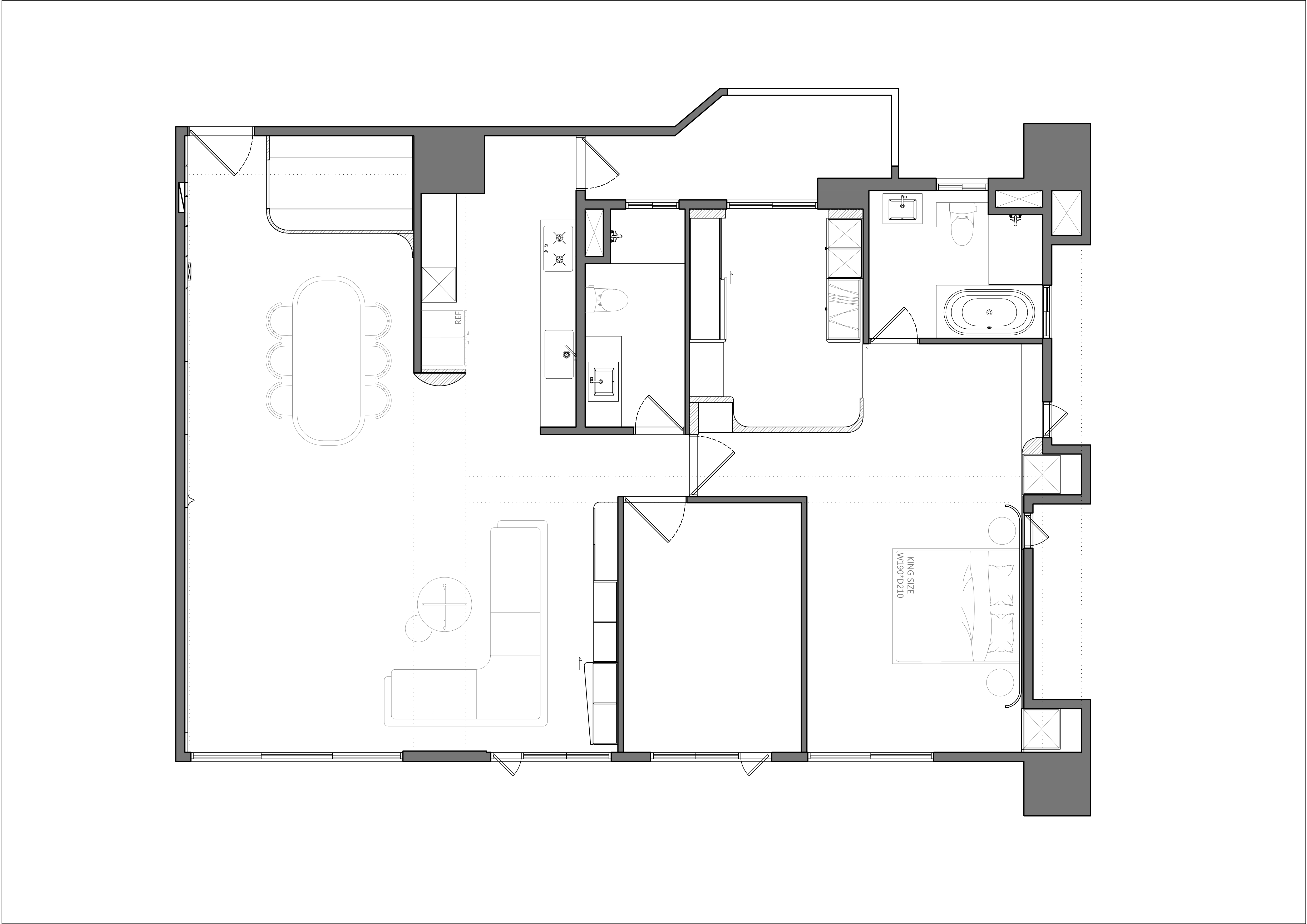
空间布局:.結構壓迫的曲線解構: 原始空間的大樑是視覺上的斷點。我們運用圓弧穹頂語彙,將剛硬的重力感轉化為有機的延展力。這不只是修飾,而是重新引導天花板的視覺流向,讓空間在垂直與水平維度達成動態平衡。
.開放場域的視覺錨定: 為了避免大面積淺色調導致的視覺漂浮,我們巧妙置入靛藍色模組化沙發。這抹深色成為空間的重力點,在通透的格局中建立明確的中心感,平衡了整體場域的情緒飽和度。
.多維度的動線融合: 解決人與寵物在空間中的路徑衝突。透過開放式介面與轉角處的弧面引導,建立了無阻礙的自由路徑。讓光、空氣與居住者的活動不再受限於傳統隔間,提升了場域的使用動能。 -
设计选材:.觸覺層次堆疊: 選用具備細微紋理的暖灰特殊塗料,透過材質的顆粒質感與自然光影互動,賦予牆面深邃的生命力。
.幾何語彙的共鳴: 從圓形窗洞到樑柱曲線,空間中重複出現的幾何秩序展現了《木槿》的設計邏輯,在規律中尋求變化,於理性中置入情緒感官。
.間接採光的層次演繹: 透過大幅度柔焦窗飾與隱藏光源,讓室內照度呈現如建築體般的光影漸層,捨棄直白照射,改以反射光線強化空間的厚度。 -
用户体验:.投入使用後的效果: 居住者回饋,空間展現了極佳的穩定性。無論是繁忙的工作後或是與毛孩的互動時光,場域都能精準地承載不同情緒。圓弧設計讓光線散佈更加均勻,空間顯現出一種澄淨的律動感。
.用戶體驗: 橡樹空間設計精準捕捉了我們對『安定』的渴求。這不只是一個房子,而是一個能讓思緒沉澱、讓行為自由流動的容器。即使在最煩躁的時刻,回到這個被弧線包裹的空間,整個人就能立刻校正回穩。
0
0

认证 · 让您身份增值
184